|
|
Hachioji, Tokyo
東京都八王子市
|
|
JR Yokohama Line "Hachioji Minamino" walk 19 minutes
JR横浜線「八王子みなみ野」歩19分
|
|
[Town of Keio four seasons 26th 6-10 Building] Residential area calm atmosphere drifts
【京王四季の街第26期6-10号棟】穏やかな雰囲気が漂う住宅街
|
|
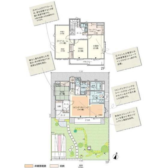
Site 54 square meters of room! Large 4LDK of building area of about 37 square meters! Per front road is 6.0m public roads, And out is a breeze of car! For Zenshitsuminami direction, Sunny!
ゆとりの敷地54坪!建物面積約37坪の大型4LDK!前面道路は6.0m公道につき、車の出し入れ楽々です!全室南向きの為、日当たり良好!
|
Features pickup 特徴ピックアップ | | Year Available / Immediate Available / 2 along the line more accessible / Land 50 square meters or more / System kitchen / Bathroom Dryer / Siemens south road / Or more before road 6m / Japanese-style room / Washbasin with shower / Face-to-face kitchen / 2-story / Warm water washing toilet seat / Underfloor Storage / TV monitor interphone / Walk-in closet / Floor heating 年内入居可 /即入居可 /2沿線以上利用可 /土地50坪以上 /システムキッチン /浴室乾燥機 /南側道路面す /前道6m以上 /和室 /シャワー付洗面台 /対面式キッチン /2階建 /温水洗浄便座 /床下収納 /TVモニタ付インターホン /ウォークインクロゼット /床暖房 |
Price 価格 | | 49,750,000 yen 4975万円 |
Floor plan 間取り | | 4LDK 4LDK |
Units sold 販売戸数 | | 1 units 1戸 |
Land area 土地面積 | | 181.5 sq m (54.90 tsubo) (Registration) 181.5m2(54.90坪)(登記) |
Building area 建物面積 | | 123.75 sq m (37.43 tsubo) (Registration) 123.75m2(37.43坪)(登記) |
Driveway burden-road 私道負担・道路 | | Nothing, South 6m width (contact the road width 11m) 無、南6m幅(接道幅11m) |
Completion date 完成時期(築年月) | | March 2013 2013年3月 |
Address 住所 | | Hachioji, Tokyo seven countries 5 東京都八王子市七国5 |
Traffic 交通 | | JR Yokohama Line "Hachioji Minamino" walk 19 minutes JR Yokohama Line "Hachioji Minamino" bus 5 minutes Minamino Chome MinamiAyumi 4 minutes JR横浜線「八王子みなみ野」歩19分 JR横浜線「八王子みなみ野」バス5分みなみ野五丁目南歩4分
|
Contact お問い合せ先 | | Keio Real Estate Co., Ltd. Mejirodai office TEL: 0800-603-0037 [Toll free] mobile phone ・ Also available from PHS Caller ID is not notified Please contact the "saw SUUMO (Sumo)" If it does not lead, If the real estate company 京王不動産(株)めじろ台営業所TEL:0800-603-0037【通話料無料】携帯電話・PHSからもご利用いただけます 発信者番号は通知されません 「SUUMO(スーモ)を見た」と問い合わせください つながらない方、不動産会社の方は
|
Building coverage, floor area ratio 建ぺい率・容積率 | | Fifty percent ・ Hundred percent 50%・100% |
Time residents 入居時期 | | Immediate available 即入居可 |
Land of the right form 土地の権利形態 | | Ownership 所有権 |
Structure and method of construction 構造・工法 | | Wooden 2-story 木造2階建 |
Use district 用途地域 | | One low-rise 1種低層 |
Other limitations その他制限事項 | | Height district, Quasi-fire zones 高度地区、準防火地域 |
Overview and notices その他概要・特記事項 | | Facilities: Public Water Supply, This sewage, City gas 設備:公営水道、本下水、都市ガス |
Company profile 会社概要 | | <Seller> Minister of Land, Infrastructure and Transport (12) No. 001608 (one company) Real Estate Association (Corporation) metropolitan area real estate Fair Trade Council member Keio Real Estate Co., Ltd. Mejirodai office Yubinbango193-0833 Hachioji, Tokyo Mejirodai 1-1-1 Keio Mejirodai apartment D Building first floor <売主>国土交通大臣(12)第001608号(一社)不動産協会会員 (公社)首都圏不動産公正取引協議会加盟京王不動産(株)めじろ台営業所〒193-0833 東京都八王子市めじろ台1-1-1 京王めじろ台マンションD棟1階 |