New Homes » Kanto » Tokyo » Hamura
 
| | Tokyo Hamura 東京都羽村市 |
| JR Ome Line "Fussa" bus 9 minutes Ayumi Matsuyama 4 minutes JR青梅線「福生」バス9分松山歩4分 |
| ■ Every Saturday and Sunday is in local sales meetings! 10:00 ~ 17:00 ■ Leisurely life in a quiet residential area ■ primary school ・ Junior high school near ■ Parallel parking two possible ■毎週土日は現地販売会開催中です!10:00 ~ 17:00■静かな住宅街でのんびり生活■小学校・中学校近く■並列駐車2台可能 |
Features pickup 特徴ピックアップ | | Parking two Allowed / Land 50 square meters or more / Super close / Facing south / System kitchen / Bathroom Dryer / All room storage / A quiet residential area / LDK15 tatami mats or more / Around traffic fewer / Japanese-style room / Shaping land / Washbasin with shower / Face-to-face kitchen / Barrier-free / Toilet 2 places / Bathroom 1 tsubo or more / 2-story / Double-glazing / Warm water washing toilet seat / Nantei / Underfloor Storage / The window in the bathroom / All rooms are two-sided lighting / Flat terrain 駐車2台可 /土地50坪以上 /スーパーが近い /南向き /システムキッチン /浴室乾燥機 /全居室収納 /閑静な住宅地 /LDK15畳以上 /周辺交通量少なめ /和室 /整形地 /シャワー付洗面台 /対面式キッチン /バリアフリー /トイレ2ヶ所 /浴室1坪以上 /2階建 /複層ガラス /温水洗浄便座 /南庭 /床下収納 /浴室に窓 /全室2面採光 /平坦地 | Event information イベント情報 | | Local tours (please visitors to direct local) schedule / Every Saturday and Sunday time / 10:00 ~ 17:00 現地見学会(直接現地へご来場ください)日程/毎週土日時間/10:00 ~ 17:00 | Price 価格 | | 33,800,000 yen 3380万円 | Floor plan 間取り | | 4LDK 4LDK | Units sold 販売戸数 | | 1 units 1戸 | Total units 総戸数 | | 1 units 1戸 | Land area 土地面積 | | 175.24 sq m (measured) 175.24m2(実測) | Building area 建物面積 | | 103.51 sq m (measured) 103.51m2(実測) | Driveway burden-road 私道負担・道路 | | Nothing, North 4m width 無、北4m幅 | Completion date 完成時期(築年月) | | April 2014 2014年4月 | Address 住所 | | Tokyo Hamura Futaba Town 2 東京都羽村市双葉町2 | Traffic 交通 | | JR Ome Line "Fussa" bus 9 minutes Ayumi Matsuyama 4 minutes JR青梅線「福生」バス9分松山歩4分
| Related links 関連リンク | | [Related Sites of this company] 【この会社の関連サイト】 | Person in charge 担当者より | | Person in charge of real-estate and building Nomura Sint Age: 30 Daigyokai experience: You will politely to tell 5 years fine information of Fussa grew up a so region from childhood. Motto, We are satisfied with all of our customers, Nomura is we try always really like kind correspondence can tell that it was good in charge. 担当者宅建野村真都年齢:30代業界経験:5年子供の頃から福生市育ちなので地域の細かい情報も丁寧にお伝えさせて頂きます。モットーは、全てのお客様に満足して頂き、野村が担当で本当に良かったとお話し頂けます様に親切対応を常に心がけております。 | Contact お問い合せ先 | | TEL: 0800-602-4449 [Toll free] mobile phone ・ Also available from PHS Caller ID is not notified Please contact the "saw SUUMO (Sumo)" If it does not lead, If the real estate company TEL:0800-602-4449【通話料無料】携帯電話・PHSからもご利用いただけます 発信者番号は通知されません 「SUUMO(スーモ)を見た」と問い合わせください つながらない方、不動産会社の方は
| Time residents 入居時期 | | Consultation 相談 | Land of the right form 土地の権利形態 | | Ownership 所有権 | Structure and method of construction 構造・工法 | | Wooden 2-story 木造2階建 | Overview and notices その他概要・特記事項 | | Contact: Nomura Sint, Facilities: Public Water Supply, This sewage, Individual LPG, Building confirmation number: 20886, Parking: car space 担当者:野村真都、設備:公営水道、本下水、個別LPG、建築確認番号:20886、駐車場:カースペース | Company profile 会社概要 | | <Marketing alliance (agency)> Governor of Tokyo (1) No. 091845 Century 21 (Ltd.) wing Home Yubinbango205-0014 Tokyo Hamura Hanehigashi 1-10-1 <販売提携(代理)>東京都知事(1)第091845号センチュリー21(株)ウイングホーム〒205-0014 東京都羽村市羽東1-10-1 |
 Rendering (appearance)
完成予想図(外観)
Local photos, including front road前面道路含む現地写真  Local (12 May 2013) Shooting
現地(2013年12月)撮影
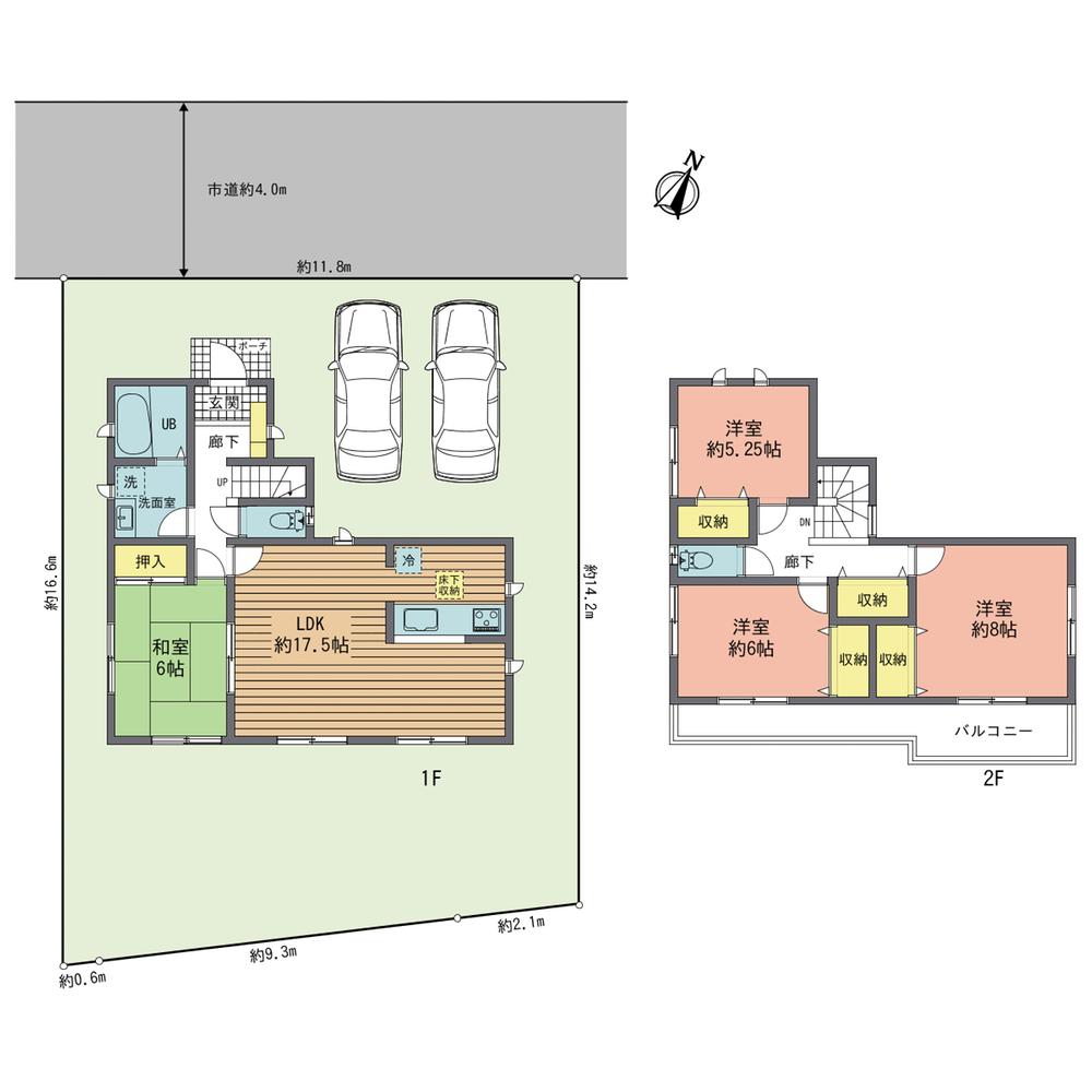
Floor plan間取り図  33,800,000 yen, 4LDK, Land area 175.24 sq m , Building area 103.51 sq m
3380万円、4LDK、土地面積175.24m2、建物面積103.51m2
Local photos, including front road前面道路含む現地写真  Local (12 May 2013) Shooting
現地(2013年12月)撮影
Supermarketスーパー  Kaneman until Ishihata shop 261m
カネマン石畑店まで261m
 Local guide map
現地案内図
Local photos, including front road前面道路含む現地写真  Local (12 May 2013) Shooting
現地(2013年12月)撮影
Supermarketスーパー  922m until Ozamu Value Hamura shop
オザムバリュー羽村店まで922m
 1202m until Super Alps Hamura shop
スーパーアルプス羽村店まで1202m
Junior high school中学校  Hamura Municipal Hamura 250m to the third junior high school
羽村市立羽村第三中学校まで250m
Primary school小学校  Hamura 337m to stand Musashino elementary school
羽村市立武蔵野小学校まで337m
Location
|