New Homes » Kanto » Tokyo » Higashikurume


Tokyo Higashikurume
Seibu Ikebukuro Line "Higashi Kurume" walk 15 minutes
■ There is a feeling of opening per popular corner lot ■ Site spacious about 44.1 square meters ■ Floor heating, Enhanced specifications such as thermal insulation glass ■
Features pickup
Pre-ground survey / Parking two Allowed / LDK18 tatami mats or more / Facing south / System kitchen / Bathroom Dryer / Yang per good / A quiet residential area / Corner lot / Japanese-style room / Shaping land / Washbasin with shower / Face-to-face kitchen / Toilet 2 places / Bathroom 1 tsubo or more / 2-story / Double-glazing / Zenshitsuminami direction / Underfloor Storage / The window in the bathroom / TV monitor interphone / All room 6 tatami mats or more / Water filter / City gas / Floor heating
Price
45,800,000 yen
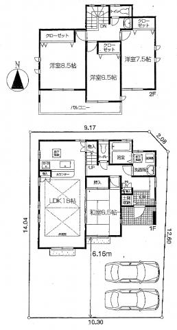
Floor plan
4LDK
Units sold
1 units
Total units
1 units
Land area
145.85 sq m (44.11 tsubo) (Registration)
Building area
114.26 sq m (34.56 tsubo) (Registration)
Driveway burden-road
Nothing
Completion date
January 2014
Address
Tokyo Higashikurume Hikawadai 2
Traffic
Seibu Ikebukuro Line "Higashi Kurume" walk 15 minutes
Seibu Ikebukuro Line "Kiyose" walk 22 minutes
Person in charge
Rep Hirakawa Yu Yu Age: 20 Daigyokai Experience: 7 years [Sales] We have been growing the needs of our customers. days, Although there is in the study, We will be happy to help in all sincerity. I will do my best to be gathered trust and smile!
Contact
TEL: 0800-602-5712 [Toll free] mobile phone ・ Also available from PHS
Caller ID is not notified
Please contact the "saw SUUMO (Sumo)"
If it does not lead, If the real estate company
Building coverage, floor area ratio
40% ・ 80%
Time residents
January 2014
Land of the right form
Ownership
Structure and method of construction
Wooden 2-story
Use district
One low-rise
Overview and notices
Contact: Hirakawa Yu Yu, Facilities: Public Water Supply, This sewage, City gas, Building confirmation number: HPA-1301486-1, Parking: car space
Company profile
<Mediation> Saitama Governor (1) No. 022059 (Ltd.) My Town Seibu Yubinbango352-0035 Saitama Prefecture Niiza Kurihara 5-6-24


Local appearance photo

Local appearance photo. 44 square meters of the site area is clear, It is a popular corner lot
44 square meters of the site area is clear, It is a popular corner lot

Floor plan

Floor plan. 45,800,000 yen, 4LDK, Land area 145.85 sq m , Building area 114.26 sq m
45,800,000 yen, 4LDK, Land area 145.85 sq m , Building area 114.26 sq m

Local photos, including front road

Local photos, including front road. Car space Thank 2 car
Car space Thank 2 car

Kindergarten ・ Nursery

kindergarten ・ Nursery. 240m to the light nursery
240m to the light nursery

Primary school

Primary school. Higashikurume 320m until the sixth elementary school
Higashikurume 320m until the sixth elementary school

Convenience store

Convenience store. MINISTOP Niiza until Shinbori shop 480m
MINISTOP Niiza until Shinbori shop 480m

Park

park. 859m to Kamiyama park
859m to Kamiyama park



Location