New Homes » Kanto » Tokyo » Higashiyamato


Tokyo Higashiyamato
Tama Monorail "Kamikitadai" walk 14 minutes
☆ Southwest corner lot ☆ Dairaito method
Green is a rich environment not far to Higashiyamato Sayama green space. The building is Japanese-style room 5.5 quires is adjacent to the Pledge LDK16.375, Family ties even up the main bedroom is also spacious 9 Pledge in spacious space living-in stairs. Contact us feel free to
Features pickup
Corresponding to the flat-35S / Immediate Available / System kitchen / Bathroom Dryer / Yang per good / All room storage / LDK15 tatami mats or more / Or more before road 6m / Corner lot / Japanese-style room / Starting station / Shaping land / Barrier-free / Bathroom 1 tsubo or more / 2-story / South balcony / Double-glazing / Underfloor Storage / The window in the bathroom / TV monitor interphone / Water filter / All rooms are two-sided lighting
Price
22,800,000 yen
Floor plan
4LDK
Units sold
1 units
Total units
6 units
Land area
100.1 sq m (registration)
Building area
98.12 sq m (measured)
Driveway burden-road
Nothing, South 15m width, West 6.5m width
Completion date
October 2013
Address
Tokyo Higashiyamato Imokubo 1
Traffic
Tama Monorail "Kamikitadai" walk 14 minutes
Related links
[Related Sites of this company]
Person in charge
Person in charge of real-estate and building Konno Koichi Age: 30 Daigyokai experience: in order to help with the same eyes as the five-year customer, We have to take care of Kominyukeshon with customers.
Contact
TEL: 0800-603-0559 [Toll free] mobile phone ・ Also available from PHS
Caller ID is not notified
Please contact the "saw SUUMO (Sumo)"
If it does not lead, If the real estate company
Building coverage, floor area ratio
40% ・ 80%
Time residents
Immediate available
Land of the right form
Ownership
Structure and method of construction
Wooden 2-story
Use district
One low-rise, Residential
Overview and notices
Contact: Konno Koichi, Facilities: Public Water Supply, This sewage, Parking: car space
Company profile
<Mediation> Minister of Land, Infrastructure and Transport (3) No. 006,185 (one company) National Housing Industry Association (Corporation) metropolitan area real estate Fair Trade Council member Asahi Housing Corporation Tachikawa shop Yubinbango190-0012 Tokyo Tachikawa Akebonocho 2-9-1 Kikuya Kawaguchi building the fourth floor


Living
Living

Local appearance photo
Local appearance photo

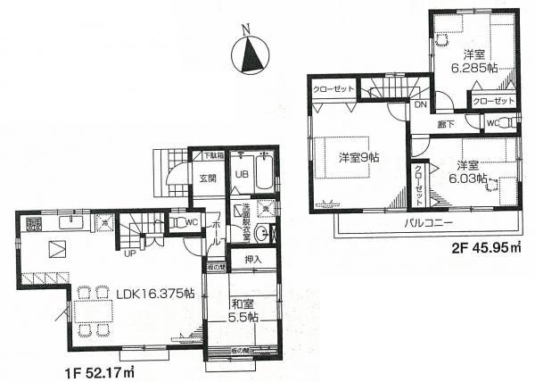
Floor plan

Floor plan. 22,800,000 yen, 4LDK, Land area 100.1 sq m , Building area 98.12 sq m
22,800,000 yen, 4LDK, Land area 100.1 sq m , Building area 98.12 sq m

Bathroom
Bathroom

Kitchen
Kitchen

Entrance
Entrance

Wash basin, toilet
Wash basin, toilet

Toilet
Toilet

Balcony
Balcony

Other introspection
Other introspection

Other introspection
Other introspection

Other introspection
Other introspection

Other introspection
Other introspection

Other introspection
Other introspection

Other introspection
Other introspection

Other introspection
Other introspection



Location