New Homes » Kanto » Tokyo » Higashiyamato


Tokyo Higashiyamato
Seibu Haijima Line "Higashiyamato" walk 10 minutes
Station 10-minute walk North-South double-sided road About 19 square meters of shaping land Elementary school about 80m Junior high school about 320m Super close shopping is convenient
Price
13.5 million yen
Building coverage, floor area ratio
60% ・ 150%
Sales compartment
1 compartment
Land area
65.95 sq m (registration)
Driveway burden-road
Nothing, South 3.6m width, North 3.6m width
Land situation
Vacant lot
Address
Tokyo Higashiyamato Nangai 2
Traffic
Seibu Haijima Line "Higashiyamato" walk 10 minutes
Tama Monorail "Sakura Road" walk 18 minutes
Seibu Haijima Line "Tamagawa" walk 27 minutes
Related links
[Related Sites of this company]
Contact
TEL: 0800-603-9891 [Toll free] mobile phone ・ Also available from PHS
Caller ID is not notified
Please contact the "saw SUUMO (Sumo)"
If it does not lead, If the real estate company
Land of the right form
Ownership
Building condition
With
Time delivery
Consultation
Land category
Residential land
Use district
One middle and high
Other limitations
Setback: upon 5.6 sq m , Setback Yes Water and sewerage ・ Gas buried pipe required retraction
Overview and notices
Facilities: Public Water Supply, This sewage, City gas
Company profile
<Mediation> Governor of Tokyo (3) No. 082486 (Corporation) Tokyo Metropolitan Government Building Lots and Buildings Transaction Business Association (Corporation) metropolitan area real estate Fair Trade Council member THR housing distribution group (Ltd.) JAPAN housing center Tachikawa Yubinbango190-0022 Tokyo Tachikawa Nishikicho 2-6-2 Stella NK building first floor


Local land photo

Local land photo. Local Photos
Local Photos

Local land photo. Local Photos
Local Photos

Local photos, including front road

Local photos, including front road. Local Photos
Local Photos

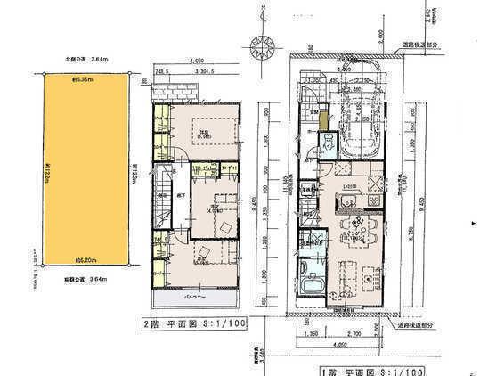
Compartment figure

Compartment figure. Land price 13.5 million yen, Land area 65.95 sq m compartment view ・ Building reference plan
Land price 13.5 million yen, Land area 65.95 sq m compartment view ・ Building reference plan

Local photos, including front road

Local photos, including front road. Local Photos
Local Photos

Shopping centre

Shopping centre. Supermarket 385m until Inageya Higashiyamato shop
Supermarket 385m until Inageya Higashiyamato shop

Shopping centre. Higashiyamato 340m to stand second junior high school
Higashiyamato 340m to stand second junior high school

Other Environmental Photo

Other Environmental Photo. Higashiyamato stand up to the second elementary school 172m
Higashiyamato stand up to the second elementary school 172m



Location