New Homes » Kanto » Tokyo » Hino
 
| | Hino City, Tokyo 東京都日野市 |
| Tama Monorail "Manganji" walk 9 minutes 多摩都市モノレール「万願寺」歩9分 |
| "Hino Manganji 1-chome ・ All seven buildings " Site that location all building clear of Tama monorail Manganji Station 9 minute walk, Face-to-face kitchen bounce of conversation, Yang per good on the south-facing, Flat 35S, Defects insurance 「日野市万願寺1丁目・全7棟」 多摩モノレール万願寺駅徒歩9分の立地全棟ゆとりある敷地、会話のはずむ対面キッチン、南向きで陽当り良好、フラット35S、瑕疵保険 |
| ■ 1 Building All rooms are two-sided lighting, 14.5 Pledge LDK, Living stairs, The main bedroom 7.5 Pledge ■ Building 2 Corner lot, 21 Pledge LDK, Living stairs, Western-style 2 room 7.5 Pledge, All rooms 6 quires more leeway there Mato ■ Building 3 18.7 Pledge LDK, Living stairs, All rooms are Western-style ・ 6 Pledge more leeway there Mato ■ 4 Building All rooms are two-sided lighting, 21.6 Pledge LDK, Master Bedroom 8 pledge, All rooms 6 quires more leeway there Mato ■ 5 Building South road, Shaping land, All rooms are two-sided lighting, 20.4 Pledge LDK, Walk-in closet with two pledge to main bedroom 8.2 Pledge ■ 6 Building South road, Shaping land, 21.2 Pledge LDK, The main bedroom 7.5 Pledge, All rooms are Western-style ■ 7 Building Popular corner lot, All rooms are two-sided lighting, 20 Pledge LDK, The main bedroom 9 Pledge, All rooms 6 quires more leeway there Mato ■1号棟 全室2面採光、14.5帖LDK、リビング階段、主寝室7.5帖■2号棟 角地、21帖LDK、リビング階段、洋室2部屋7.5帖、全室6帖以上のゆとりある間取■3号棟 18.7帖LDK、リビング階段、全室洋室・6帖以上のゆとりある間取■4号棟 全室2面採光、21.6帖LDK、主寝室8帖、全室6帖以上のゆとりある間取■5号棟 南道路、整形地、全室2面採光、20.4帖LDK、主寝室8.2帖に2帖のウォークインクローゼット付■6号棟 南道路、整形地、21.2帖LDK、主寝室7.5帖、全室洋室■7号棟 人気の角地、全室2面採光、20帖LDK、主寝室9帖、全室6帖以上のゆとりある間取 |
Features pickup 特徴ピックアップ | | Corresponding to the flat-35S / Vibration Control ・ Seismic isolation ・ Earthquake resistant / Parking two Allowed / LDK18 tatami mats or more / Super close / Facing south / System kitchen / Yang per good / All room storage / Siemens south road / Or more before road 6m / Corner lot / Japanese-style room / Shaping land / Face-to-face kitchen / Toilet 2 places / Bathroom 1 tsubo or more / 2-story / South balcony / Double-glazing / Otobasu / Warm water washing toilet seat / Underfloor Storage / The window in the bathroom / TV monitor interphone / Ventilation good / Dish washing dryer / Walk-in closet / All room 6 tatami mats or more / Water filter / Living stairs / City gas / All rooms are two-sided lighting フラット35Sに対応 /制震・免震・耐震 /駐車2台可 /LDK18畳以上 /スーパーが近い /南向き /システムキッチン /陽当り良好 /全居室収納 /南側道路面す /前道6m以上 /角地 /和室 /整形地 /対面式キッチン /トイレ2ヶ所 /浴室1坪以上 /2階建 /南面バルコニー /複層ガラス /オートバス /温水洗浄便座 /床下収納 /浴室に窓 /TVモニタ付インターホン /通風良好 /食器洗乾燥機 /ウォークインクロゼット /全居室6畳以上 /浄水器 /リビング階段 /都市ガス /全室2面採光 | Price 価格 | | 39,800,000 yen ~ 45,800,000 yen 3980万円 ~ 4580万円 | Floor plan 間取り | | 3LDK ・ 4LDK 3LDK・4LDK | Units sold 販売戸数 | | 7 units 7戸 | Total units 総戸数 | | 7 units 7戸 | Land area 土地面積 | | 120.93 sq m ・ 120.94 sq m (36.58 tsubo ・ 36.58 tsubo) (measured) 120.93m2・120.94m2(36.58坪・36.58坪)(実測) | Building area 建物面積 | | 87.96 sq m ~ 100.44 sq m (26.60 tsubo ~ 30.38 tsubo) (measured) 87.96m2 ~ 100.44m2(26.60坪 ~ 30.38坪)(実測) | Driveway burden-road 私道負担・道路 | | Road width: 5.5m ~ 6m Including on-site extension part in Building 3 land area, Including 3 Building alley part about 36.42m2 道路幅:5.5m ~ 6m 3号棟土地面積に敷地延長部分含む、3号棟内路地部分約36.42m2含む | Completion date 完成時期(築年月) | | January 2014 will 2014年1月予定 | Address 住所 | | Hino City, Tokyo Manganji 1 東京都日野市万願寺1 | Traffic 交通 | | Tama Monorail "Manganji" walk 9 minutes 多摩都市モノレール「万願寺」歩9分 | Related links 関連リンク | | [Related Sites of this company] 【この会社の関連サイト】 | Person in charge 担当者より | | Rep Uehara Yuji Age: also do my best hard to 20s everything 担当者上原 祐史年齢:20代何事にも一生懸命がんばります | Contact お問い合せ先 | | TEL: 0800-809-8309 [Toll free] mobile phone ・ Also available from PHS Caller ID is not notified Please contact the "saw SUUMO (Sumo)" If it does not lead, If the real estate company TEL:0800-809-8309【通話料無料】携帯電話・PHSからもご利用いただけます 発信者番号は通知されません 「SUUMO(スーモ)を見た」と問い合わせください つながらない方、不動産会社の方は
| Most price range 最多価格帯 | | 41 million yen ・ 44 million yen (each 2 units) 4100万円台・4400万円台(各2戸) | Building coverage, floor area ratio 建ぺい率・容積率 | | Kenpei rate: 50%, Volume ratio: 100% 建ペい率:50%、容積率:100% | Time residents 入居時期 | | January 2014 2014年1月 | Land of the right form 土地の権利形態 | | Ownership 所有権 | Structure and method of construction 構造・工法 | | Wooden 2-story 木造2階建 | Use district 用途地域 | | One low-rise 1種低層 | Land category 地目 | | Residential land, Hybrid land 宅地、雑種地 | Overview and notices その他概要・特記事項 | | Contact: Uehara Yuji, Building confirmation number: No. 13UDI3S Ken 01503 other, Facilities: city gas ・ Public Water Supply ・ Public sewage 担当者:上原 祐史、建築確認番号:第13UDI3S建01503号他、設備:都市ガス・公営水道・公共下水 | Company profile 会社概要 | | <Mediation> Governor of Tokyo (7) No. 050689 (Corporation) Tokyo Metropolitan Government Building Lots and Buildings Transaction Business Association (Corporation) metropolitan area real estate Fair Trade Council member Century 21 (Ltd.) house Engineering Management sales Yubinbango192-0073 Hachioji, Tokyo Teramachi 69 <仲介>東京都知事(7)第050689号(公社)東京都宅地建物取引業協会会員 (公社)首都圏不動産公正取引協議会加盟センチュリー21(株)住宅工営販売〒192-0073 東京都八王子市寺町69 |
Local appearance photo現地外観写真  1 Building 2013 December 24, shooting
1号棟 2013年12月24日撮影
 Building 2 2013 December 24, shooting
2号棟 2013年12月24日撮影
Local photos, including front road前面道路含む現地写真  1 Building ・ Building 2 2013 December 24, shooting
1号棟・2号棟 2013年12月24日撮影
 Building 2 ・ 4 Building ・ 7 Building 2013 December 24, shooting
2号棟・4号棟・7号棟 2013年12月24日撮影
Local appearance photo現地外観写真  Building 3 2013 December 24, shooting
3号棟 2013年12月24日撮影
Local photos, including front road前面道路含む現地写真  Building 3 ・ 5 Building ・ 6 Building ・ 7 Building 2013 December 24, shooting
3号棟・5号棟・6号棟・7号棟 2013年12月24日撮影
Local appearance photo現地外観写真  5 Building 2013 December 24, shooting
5号棟 2013年12月24日撮影
 6 Building 2013 December 24, shooting
6号棟 2013年12月24日撮影
 7 Building 2013 December 24, shooting
7号棟 2013年12月24日撮影
Floor plan間取り図  (1 Building), Price 41,800,000 yen, 4LDK, Land area 120.94 sq m , Building area 95.58 sq m
(1号棟)、価格4180万円、4LDK、土地面積120.94m2、建物面積95.58m2
 (Building 2), Price 43,800,000 yen, 3LDK, Land area 120.93 sq m , Building area 96.39 sq m
(2号棟)、価格4380万円、3LDK、土地面積120.93m2、建物面積96.39m2
 (3 Building), Price 39,800,000 yen, 3LDK, Land area 120.94 sq m , Building area 87.96 sq m
(3号棟)、価格3980万円、3LDK、土地面積120.94m2、建物面積87.96m2
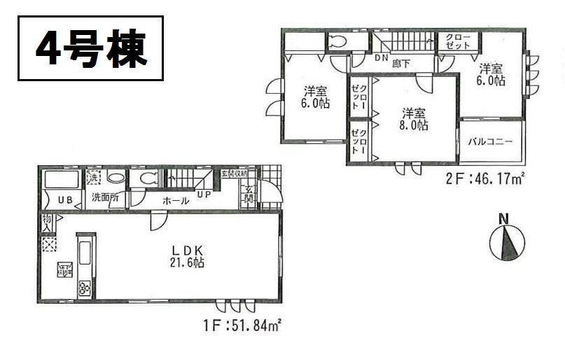
 (4 Building), Price 41,800,000 yen, 3LDK, Land area 120.93 sq m , Building area 98.01 sq m
(4号棟)、価格4180万円、3LDK、土地面積120.93m2、建物面積98.01m2
 (5 Building), Price 44,800,000 yen, 3LDK, Land area 120.93 sq m , Building area 99.22 sq m
(5号棟)、価格4480万円、3LDK、土地面積120.93m2、建物面積99.22m2
 (6 Building), Price 44,800,000 yen, 3LDK, Land area 120.94 sq m , Building area 96.38 sq m
(6号棟)、価格4480万円、3LDK、土地面積120.94m2、建物面積96.38m2
 (7 Building), Price 45,800,000 yen, 3LDK, Land area 120.93 sq m , Building area 100.44 sq m
(7号棟)、価格4580万円、3LDK、土地面積120.93m2、建物面積100.44m2
The entire compartment Figure全体区画図  Compartment figure
区画図
Same specifications photo (kitchen)同仕様写真(キッチン)  (1 Building) construction cases Photos
(1号棟)施工例写真
Same specifications photos (living)同仕様写真(リビング)  (1 Building) construction cases Photos
(1号棟)施工例写真
Same specifications photo (bathroom)同仕様写真(浴室)  (1 Building) construction cases Photos
(1号棟)施工例写真
Supermarketスーパー  820m until Inageya Hino Manganji Ekimae
いなげや日野万願寺駅前店まで820m
Location
|