New Homes » Kanto » Tokyo » Hino
 
| | Hino City, Tokyo 東京都日野市 |
| JR Chuo Line "Hino" 15 minutes Midorigaoka walk 3 minutes by bus JR中央線「日野」バス15分緑ケ丘歩3分 |
| "Hino Shinmachi 4-chome ・ All three buildings. " The final 1 buildings 4LDK with selling solar power system, Two Allowed parallel by car space vehicle, Flat 35, Wood utilization point object properties 「日野市新町4丁目・全3棟」 最終1棟の販売太陽光発電システム付4LDK、カースペース車種により並列2台可、フラット35、木材利用ポイント対象物件 |
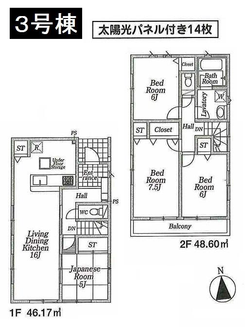
| ■ Building 3 All rooms are two-sided lighting, Face-to-face kitchen, 16 Pledge LDK, Continuous with the living Japanese-style room is 2WAY type, Western-style all rooms 6 quires more, The main bedroom 7.5 Pledge, Housework Rakudo line adopted, Car out also to achieve a strong high-strength abode to smooth front 6m road <earthquake and disaster Dairaito method, Exterior wall siding, All room pair glass to exhibit the effect to prevent dew condensation excellent thermal insulation properties> ◆ The wood utilization point: cedar, Grant points to the new construction, etc. of wooden houses that utilize local materials such as cypress, Points can be exchanged with the Agriculture, Forestry and Fisheries etc. and Regional Options ■3号棟 全室2面採光、対面キッチン、16帖LDK、リビングと連続する和室は2WAYタイプ、洋室全室6帖以上、主寝室7.5帖、家事楽動線採用、車の出し入れもスムーズな前面6m道路<地震や災害に強い高強度な住まいを実現するダイライト工法、外壁サイディング、断熱性に優れ結露対策に効果を発揮する全居室ペアガラス>◆木材利用ポイントとは:スギ、ヒノキなどの地域材を活用した木造住宅の新築等にポイントを付与し、ポイントは地域の農林水産品等やオプションと交換できます |
Features pickup 特徴ピックアップ | | Solar power system / Parking two Allowed / Immediate Available / Facing south / System kitchen / Bathroom Dryer / Yang per good / All room storage / LDK15 tatami mats or more / Or more before road 6m / Japanese-style room / Washbasin with shower / Face-to-face kitchen / Toilet 2 places / Bathroom 1 tsubo or more / 2-story / South balcony / Otobasu / Warm water washing toilet seat / Underfloor Storage / The window in the bathroom / TV monitor interphone / Ventilation good / City gas / All rooms are two-sided lighting 太陽光発電システム /駐車2台可 /即入居可 /南向き /システムキッチン /浴室乾燥機 /陽当り良好 /全居室収納 /LDK15畳以上 /前道6m以上 /和室 /シャワー付洗面台 /対面式キッチン /トイレ2ヶ所 /浴室1坪以上 /2階建 /南面バルコニー /オートバス /温水洗浄便座 /床下収納 /浴室に窓 /TVモニタ付インターホン /通風良好 /都市ガス /全室2面採光 | Price 価格 | | 35,800,000 yen 3580万円 | Floor plan 間取り | | 4LDK 4LDK | Units sold 販売戸数 | | 1 units 1戸 | Total units 総戸数 | | 3 units 3戸 | Land area 土地面積 | | 124.27 sq m (37.59 square meters) 124.27m2(37.59坪) | Building area 建物面積 | | 94.77 sq m (28.66 square meters) 94.77m2(28.66坪) | Driveway burden-road 私道負担・道路 | | Road width: north 6m 道路幅:北側6m | Completion date 完成時期(築年月) | | November 2013 2013年11月 | Address 住所 | | Hino City, Tokyo Shinmachi 4 東京都日野市新町4 | Traffic 交通 | | JR Chuo Line "Hino" 15 minutes Midorigaoka walk 3 minutes by bus JR Chuo Line "Hino" 8 minutes Sakae-cho 5-chome, walk 7 minutes by bus JR中央線「日野」バス15分緑ケ丘歩3分 JR中央線「日野」バス8分栄町5丁目歩7分
| Related links 関連リンク | | [Related Sites of this company] 【この会社の関連サイト】 | Person in charge 担当者より | | Rep Watanabe Katsutoshi Age: Thanks to the encounter with 30s all customers 担当者渡邊 勝俊年齢:30代全てのお客様との出会いに感謝します | Contact お問い合せ先 | | TEL: 0800-809-8309 [Toll free] mobile phone ・ Also available from PHS Caller ID is not notified Please contact the "saw SUUMO (Sumo)" If it does not lead, If the real estate company TEL:0800-809-8309【通話料無料】携帯電話・PHSからもご利用いただけます 発信者番号は通知されません 「SUUMO(スーモ)を見た」と問い合わせください つながらない方、不動産会社の方は
| Building coverage, floor area ratio 建ぺい率・容積率 | | Kenpei rate: 50%, Volume ratio: 100% 建ペい率:50%、容積率:100% | Time residents 入居時期 | | Immediate available 即入居可 | Land of the right form 土地の権利形態 | | Ownership 所有権 | Structure and method of construction 構造・工法 | | Wooden 2-story 木造2階建 | Use district 用途地域 | | One low-rise 1種低層 | Land category 地目 | | Residential land, Hybrid land 宅地、雑種地 | Other limitations その他制限事項 | | The first kind altitude district, Law Article 22 section 第一種高度地区、法第22条区域 | Overview and notices その他概要・特記事項 | | Contact: Watanabe Katsutoshi, Building confirmation number: No. H25SHC111153, Facilities: city gas ・ Public Water Supply ・ This sewage 担当者:渡邊 勝俊、建築確認番号:第H25SHC111153号、設備:都市ガス・公営水道・本下水 | Company profile 会社概要 | | <Mediation> Governor of Tokyo (7) No. 050689 (Corporation) Tokyo Metropolitan Government Building Lots and Buildings Transaction Business Association (Corporation) metropolitan area real estate Fair Trade Council member Century 21 (Ltd.) house Engineering Management sales Yubinbango192-0073 Hachioji, Tokyo Teramachi 69 <仲介>東京都知事(7)第050689号(公社)東京都宅地建物取引業協会会員 (公社)首都圏不動産公正取引協議会加盟センチュリー21(株)住宅工営販売〒192-0073 東京都八王子市寺町69 |
Local appearance photo現地外観写真  Building 3
3号棟
Livingリビング  Building 3
3号棟
Kitchenキッチン  Building 3
3号棟
Livingリビング  Building 3
3号棟
Non-living roomリビング以外の居室  Building 3
3号棟
Bathroom浴室  Building 3
3号棟
Wash basin, toilet洗面台・洗面所  Building 3
3号棟
Toiletトイレ  Building 3
3号棟
Local appearance photo現地外観写真  Building 3
3号棟
 Building 3
3号棟
Parking lot駐車場  Building 3 Two Allowed parallel by car space vehicle
3号棟 カースペース車種により並列2台可
Local photos, including front road前面道路含む現地写真  Beautiful streets of a quiet residential area, And out of the car at the front 6m road is smooth
閑静な住宅街の美しい街並、前面6m道路で車の出し入れもスムーズです
Floor plan間取り図  (3 Building), Price 35,800,000 yen, 4LDK, Land area 124.27 sq m , Building area 94.77 sq m
(3号棟)、価格3580万円、4LDK、土地面積124.27m2、建物面積94.77m2
The entire compartment Figure全体区画図  Front 6m road car out also smooth, Parallel two You can park by car.
車の出し入れもスムーズな前面6m道路、車種により並列2台駐車可能です。
Supermarketスーパー  1300m until Inageya Hino Sakaemachi shop
いなげや日野栄町店まで1300m
 1900m until Super Alps Utsugi table shop
スーパーアルプス宇津木台店まで1900m
Primary school小学校  610m to Hino Municipal Hino third elementary school
日野市立日野第三小学校まで610m
Junior high school中学校  1360m to Hino Municipal Osakaue junior high school
日野市立大坂上中学校まで1360m
Hospital病院  955m until Matsuura internal medicine clinic
松浦内科医院まで955m
Park公園  290m to Midorigaoka Park
緑ケ丘公園まで290m
Location
|