New Homes » Kanto » Tokyo » Hino
 
| | Hino City, Tokyo 東京都日野市 |
| JR Chuo Line, "Toyoda" walk 20 minutes JR中央線「豊田」歩20分 |
| ○ season glad floor heating in the future is standard equipment! 4LDK of ○ building 100 sq m more than clear! ○ parking space 2 cars! Building imposing completed! I'd love to, Please visit on this occasion. ○これからに季節に嬉しい床暖房が標準装備!○建物100m2超のゆとりの4LDK!○駐車スペース2台分!建物堂々完成!是非、この機会にご覧ください。 |
| Documentation for your claim ・ Local guidance are accepted by telephone. Home Trade Center Co., Ltd. Head Office toll-free number 0120-43-8848 資料のご請求・現地のご案内はお電話でも受け付けております。ホームトレードセンター株式会社 本店 フリーダイアル 0120-43-8848 |
Features pickup 特徴ピックアップ | | Parking two Allowed / Immediate Available / 2 along the line more accessible / LDK18 tatami mats or more / System kitchen / Bathroom Dryer / All room storage / Around traffic fewer / Shaping land / Face-to-face kitchen / Barrier-free / Bathroom 1 tsubo or more / 2-story / Zenshitsuminami direction / All living room flooring / Dish washing dryer / Water filter / A large gap between the neighboring house / roof balcony / Floor heating / Readjustment land within 駐車2台可 /即入居可 /2沿線以上利用可 /LDK18畳以上 /システムキッチン /浴室乾燥機 /全居室収納 /周辺交通量少なめ /整形地 /対面式キッチン /バリアフリー /浴室1坪以上 /2階建 /全室南向き /全居室フローリング /食器洗乾燥機 /浄水器 /隣家との間隔が大きい /ルーフバルコニー /床暖房 /区画整理地内 | Event information イベント情報 | | ■ Double campaign ■ [Your conclusion of a contract campaign] I received a document request or phone inquiries at Sumo, It will be awarded a gift card 100,000 yen only to customers who become your conclusion of a contract until 2013 October 31, at the regular remuneration. For more information to our staff! [Member registration campaign] You receive a Kuokado 1000 yen to customers on our home page to comply with the requirements of the following will be the member registration. ※ One-time-only 1 family ※ Enter all the member registration contents ※ Heisei registration of up to 25 years October 31, 2008 ■ダブルキャンペーン■【ご成約キャンペーン】スーモにて資料請求またはお電話のお問い合わせを頂き、正規報酬にて平成25年10月31日までにご成約になったお客様に限りギフトカード10万円分を進呈させて頂きます。詳しくは当社スタッフまで!【会員登録キャンペーン】当社ホームページに会員登録をして頂き下記の条件に適合したお客様にクオカード1000円分を進呈します。※1家族1回限り※会員登録内容を全て入力※平成25年10月31日までの登録 | Price 価格 | | 37,800,000 yen ~ 38,800,000 yen 3780万円 ~ 3880万円 | Floor plan 間取り | | 4LDK 4LDK | Units sold 販売戸数 | | 2 units 2戸 | Land area 土地面積 | | 135 sq m (measured) 135m2(実測) | Building area 建物面積 | | 105.16 sq m ~ 111.78 sq m (measured) 105.16m2 ~ 111.78m2(実測) | Driveway burden-road 私道負担・道路 | | Road width: 5m, Asphaltic pavement 道路幅:5m、アスファルト舗装 | Completion date 完成時期(築年月) | | In late September 2013 2013年9月下旬 | Address 住所 | | Hino City, Tokyo Nishihirayama 1 東京都日野市西平山1 | Traffic 交通 | | JR Chuo Line, "Toyoda" walk 20 minutes Keio Line "Hirayama Castle park" walk 12 minutes Keio Line "Naganuma" walk 13 minutes JR中央線「豊田」歩20分 京王線「平山城址公園」歩12分 京王線「長沼」歩13分
| Related links 関連リンク | | [Related Sites of this company] 【この会社の関連サイト】 | Person in charge 担当者より | | Person in charge of real-estate and building Hirokawa Hideyuki Age: 40 Daigyokai Experience: 17 years your edge ・ Cherish the Forrest Gump, Help we are able to satisfy our customers ・ I do suggestions. 担当者宅建廣川 秀行年齢:40代業界経験:17年ご縁・一期一会を大切に、お客様にご満足していただけるお手伝い・ご提案を致します。 | Contact お問い合せ先 | | TEL: 0800-602-4686 [Toll free] mobile phone ・ Also available from PHS Caller ID is not notified Please contact the "saw SUUMO (Sumo)" If it does not lead, If the real estate company TEL:0800-602-4686【通話料無料】携帯電話・PHSからもご利用いただけます 発信者番号は通知されません 「SUUMO(スーモ)を見た」と問い合わせください つながらない方、不動産会社の方は
| Building coverage, floor area ratio 建ぺい率・容積率 | | Kenpei rate: 60%, Volume ratio: 200% 建ペい率:60%、容積率:200% | Time residents 入居時期 | | Immediate available 即入居可 | Land of the right form 土地の権利形態 | | Ownership 所有権 | Use district 用途地域 | | One middle and high 1種中高 | Other limitations その他制限事項 | | Agricultural Land Act notification requirements, Height district, Quasi-fire zones 農地法届出要、高度地区、準防火地域 | Overview and notices その他概要・特記事項 | | Contact: Hirokawa Hideyuki 担当者:廣川 秀行 | Company profile 会社概要 | | <Mediation> Minister of Land, Infrastructure and Transport (1) No. 008 044 Home Trade Center Co., Ltd. Yubinbango180-0023 Musashino-shi, Tokyo Kyonan-cho, 3-13-14 <仲介>国土交通大臣(1)第008044号ホームトレードセンター(株)〒180-0023 東京都武蔵野市境南町3-13-14 |
Local appearance photo現地外観写真  From the back 1 Building, 2 Building site (October 2013) Shooting
奥から1号棟、2号棟現地(2013年10月)撮影
 Local (10 May 2013) Shooting
現地(2013年10月)撮影
Local photos, including front road前面道路含む現地写真  Local (10 May 2013) Shooting
現地(2013年10月)撮影
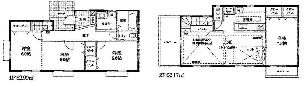
Floor plan間取り図  (Building 2), Price 37,800,000 yen, 4LDK, Land area 135 sq m , Building area 105.16 sq m
(2号棟)、価格3780万円、4LDK、土地面積135m2、建物面積105.16m2
Livingリビング  Building 2 LDK19 quires more than. Indoor (10 May 2013) Shooting
2号棟LDK19帖超。 室内(2013年10月)撮影
Bathroom浴室  Indoor (10 May 2013) Shooting
室内(2013年10月)撮影
Kitchenキッチン  Indoor (10 May 2013) Shooting
室内(2013年10月)撮影
Non-living roomリビング以外の居室  Building 2 1 Kaiyoshitsu
2号棟1階洋室
Entrance玄関  Local (10 May 2013) Shooting
現地(2013年10月)撮影
Wash basin, toilet洗面台・洗面所  Indoor (10 May 2013) Shooting
室内(2013年10月)撮影
Toiletトイレ  Indoor (10 May 2013) Shooting
室内(2013年10月)撮影
Parking lot駐車場  Local (10 May 2013) Shooting
現地(2013年10月)撮影
Balconyバルコニー  Building 2
2号棟
Primary school小学校  Takigo until elementary school 630m
滝合小学校まで630m
View photos from the dwelling unit住戸からの眺望写真  Building 2
2号棟
Livingリビング  1 Building
1号棟
Bathroom浴室  Indoor (10 May 2013) Shooting
室内(2013年10月)撮影
Kitchenキッチン  Indoor (10 May 2013) Shooting
室内(2013年10月)撮影
Non-living roomリビング以外の居室  Building 2 2 Kaiyoshitsu (8.5 quire)
2号棟2階洋室(8.5帖)
Entrance玄関  Local (10 May 2013) Shooting
現地(2013年10月)撮影
Junior high school中学校  1600m to Hirayama junior high school
平山中学校まで1600m
Location
|