New Homes » Kanto » Tokyo » Hino
 
| | Hino City, Tokyo 東京都日野市 |
| Tama Monorail "Manganji" walk 10 minutes 多摩都市モノレール「万願寺」歩10分 |
| "Hino Manganji 3-chome ・ All eight buildings " Station 10-minute walk, Three Allowed whole building 40 square meters of the shaped area by car space vehicle, Yang per well in Zenshitsuminami orientation, 4LDK of enhancement facilities, including dishwasher 「日野市万願寺3丁目・全8棟」 駅徒歩10分、カースペース車種により3台可全棟40坪の整形地、全室南向きで陽当り良好、食洗機など充実設備の4LDK |
| Located a 10-minute walk from Tama Monorail Manganji Station, And out of the front 6m road and the car is smooth. Yang per well in all building all Shitsuminami direction, There is clear from the 15 quires LDK, Widely-designed master bedroomese-style room, which is continuous with living has adopted a 2WAY type that can be out from two directions. Dishwasher and water purifier, Available to enhance facilities, including lift-down kitchen storage. 多摩モノレール万願寺駅より徒歩10分の立地、前面6m道路と車の出し入れもスムーズです。全棟全室南向きで陽当り良好、15帖からのゆとりあるLDK、広く設計された主寝室、リビングと連続する和室は2方向から出入り可能な2WAYタイプを採用しています。食洗機や浄水器、リフトダウン式キッチン収納など充実設備をご用意。 |
Features pickup 特徴ピックアップ | | Parking three or more possible / Super close / Facing south / System kitchen / Bathroom Dryer / Yang per good / All room storage / LDK15 tatami mats or more / Or more before road 6m / Japanese-style room / Shaping land / Face-to-face kitchen / Toilet 2 places / Bathroom 1 tsubo or more / 2-story / South balcony / Double-glazing / Zenshitsuminami direction / Otobasu / Warm water washing toilet seat / Underfloor Storage / The window in the bathroom / TV monitor interphone / Dish washing dryer / Water filter / City gas 駐車3台以上可 /スーパーが近い /南向き /システムキッチン /浴室乾燥機 /陽当り良好 /全居室収納 /LDK15畳以上 /前道6m以上 /和室 /整形地 /対面式キッチン /トイレ2ヶ所 /浴室1坪以上 /2階建 /南面バルコニー /複層ガラス /全室南向き /オートバス /温水洗浄便座 /床下収納 /浴室に窓 /TVモニタ付インターホン /食器洗乾燥機 /浄水器 /都市ガス | Price 価格 | | 45,800,000 yen 4580万円 | Floor plan 間取り | | 4LDK 4LDK | Units sold 販売戸数 | | 8 units 8戸 | Total units 総戸数 | | 8 units 8戸 | Land area 土地面積 | | 134.56 sq m ~ 134.71 sq m (40.70 tsubo ~ 40.74 square meters) 134.56m2 ~ 134.71m2(40.70坪 ~ 40.74坪) | Building area 建物面積 | | 99.36 sq m ~ 99.78 sq m (30.05 tsubo ~ 30.18 square meters) 99.36m2 ~ 99.78m2(30.05坪 ~ 30.18坪) | Driveway burden-road 私道負担・道路 | | Road width: 6m, West 43 Article 61 road 道路幅:6m、西側43条但書道路 | Completion date 完成時期(築年月) | | Mid-January 2014 2014年1月中旬予定 | Address 住所 | | Hino City, Tokyo Manganji 3 東京都日野市万願寺3 | Traffic 交通 | | Tama Monorail "Manganji" walk 10 minutes 多摩都市モノレール「万願寺」歩10分 | Related links 関連リンク | | [Related Sites of this company] 【この会社の関連サイト】 | Person in charge 担当者より | | Person in charge of real-estate and building Morita TakashiYu age: the 30's customers committed to help house hunting in the "same eyes" 担当者宅建森田 孝祐年齢:30代お客様とは「同じ目線」で家探しのお手伝いをすることをお約束します | Contact お問い合せ先 | | TEL: 0800-809-8309 [Toll free] mobile phone ・ Also available from PHS Caller ID is not notified Please contact the "saw SUUMO (Sumo)" If it does not lead, If the real estate company TEL:0800-809-8309【通話料無料】携帯電話・PHSからもご利用いただけます 発信者番号は通知されません 「SUUMO(スーモ)を見た」と問い合わせください つながらない方、不動産会社の方は
| Most price range 最多価格帯 | | 45 million yen (8 units) 4500万円台(8戸) | Building coverage, floor area ratio 建ぺい率・容積率 | | Kenpei rate: 50%, Volume ratio: 100% 建ペい率:50%、容積率:100% | Time residents 入居時期 | | January 2014 late schedule 2014年1月下旬予定 | Land of the right form 土地の権利形態 | | Ownership 所有権 | Structure and method of construction 構造・工法 | | Wooden 2-story 木造2階建 | Use district 用途地域 | | One low-rise 1種低層 | Land category 地目 | | field 畑 | Overview and notices その他概要・特記事項 | | Contact: Morita TakashiYu, Building confirmation number: TKK 確済 13-1325 issue other, Facilities: city gas ・ Public Water Supply ・ This sewage Others: 1 ~ 4 Building to be completed in 2014 mid-March 担当者:森田 孝祐、建築確認番号:TKK確済13-1325号他、設備:都市ガス・公営水道・本下水 その他:1 ~ 4号棟完成予定平成26年3月中旬 | Company profile 会社概要 | | <Mediation> Governor of Tokyo (7) No. 050689 (Corporation) Tokyo Metropolitan Government Building Lots and Buildings Transaction Business Association (Corporation) metropolitan area real estate Fair Trade Council member Century 21 (Ltd.) house Engineering Management sales Yubinbango192-0073 Hachioji, Tokyo Teramachi 69 <仲介>東京都知事(7)第050689号(公社)東京都宅地建物取引業協会会員 (公社)首都圏不動産公正取引協議会加盟センチュリー21(株)住宅工営販売〒192-0073 東京都八王子市寺町69 |
Local appearance photo現地外観写真  5 Building 2013 December 24, shooting
5号棟 2013年12月24日撮影
Local photos, including front road前面道路含む現地写真  5 ~ 8 Building 2013 December 24, shooting
5 ~ 8号棟 2013年12月24日撮影
Local appearance photo現地外観写真  6 Building 2013 December 24, shooting
6号棟 2013年12月24日撮影
 7 Building 2013 December 24, shooting
7号棟 2013年12月24日撮影
 8 Building 2013 December 24, shooting
8号棟 2013年12月24日撮影
 1 Building 2013 December 24, shooting
1号棟 2013年12月24日撮影
 Building 2 2013 December 24, shooting
2号棟 2013年12月24日撮影
 Building 3 2013 December 24, shooting
3号棟 2013年12月24日撮影
 4 Building 2013 December 24, shooting
4号棟 2013年12月24日撮影
Local photos, including front road前面道路含む現地写真  1 ~ 4 Building 2013 December 24, shooting
1 ~ 4号棟 2013年12月24日撮影
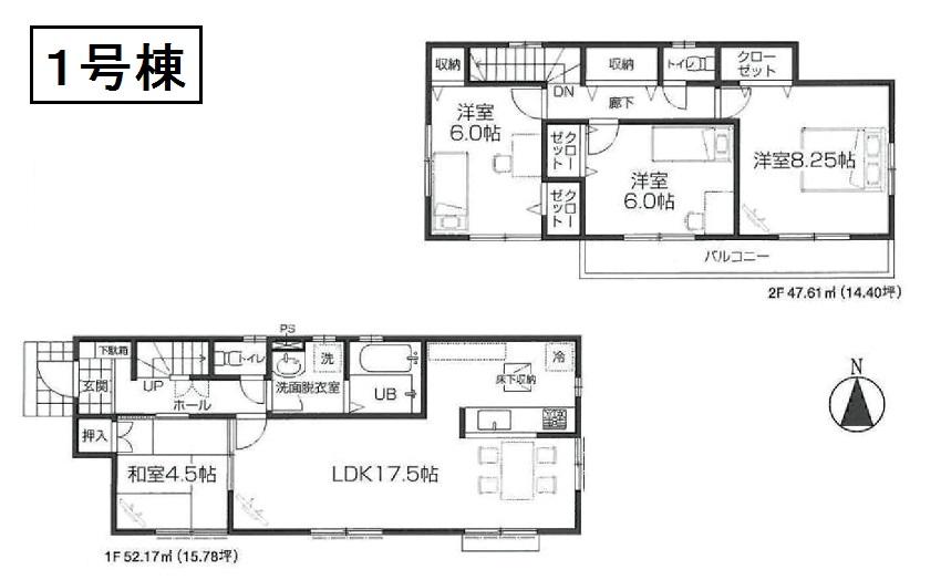
Floor plan間取り図  (1 Building), Price 45,800,000 yen, 4LDK, Land area 134.67 sq m , Building area 99.78 sq m
(1号棟)、価格4580万円、4LDK、土地面積134.67m2、建物面積99.78m2
 (Building 2), Price 45,800,000 yen, 4LDK, Land area 134.66 sq m , Building area 99.77 sq m
(2号棟)、価格4580万円、4LDK、土地面積134.66m2、建物面積99.77m2
 (3 Building), Price 45,800,000 yen, 4LDK, Land area 134.65 sq m , Building area 99.78 sq m
(3号棟)、価格4580万円、4LDK、土地面積134.65m2、建物面積99.78m2
 (4 Building), Price 45,800,000 yen, 4LDK, Land area 134.56 sq m , Building area 99.36 sq m
(4号棟)、価格4580万円、4LDK、土地面積134.56m2、建物面積99.36m2
 (5 Building), Price 45,800,000 yen, 4LDK, Land area 134.71 sq m , Building area 99.78 sq m
(5号棟)、価格4580万円、4LDK、土地面積134.71m2、建物面積99.78m2
 (6 Building), Price 45,800,000 yen, 4LDK, Land area 134.62 sq m , Building area 99.78 sq m
(6号棟)、価格4580万円、4LDK、土地面積134.62m2、建物面積99.78m2
 (7 Building), Price 45,800,000 yen, 4LDK, Land area 134.61 sq m , Building area 99.78 sq m
(7号棟)、価格4580万円、4LDK、土地面積134.61m2、建物面積99.78m2
 (8 Building), Price 45,800,000 yen, 4LDK, Land area 134.61 sq m , Building area 99.78 sq m
(8号棟)、価格4580万円、4LDK、土地面積134.61m2、建物面積99.78m2
 The entire compartment Figure
全体区画図
Same specifications photo (kitchen)同仕様写真(キッチン)  (6 Building) construction cases Photos
(6号棟)施工例写真
Supermarketスーパー  633m until Inageya Hino Manganji Ekimae
いなげや日野万願寺駅前店まで633m
Location
|