New Homes » Kanto » Tokyo » Hino
 
| | Hino City, Tokyo 東京都日野市 |
| Tama Monorail "Manganji" walk 9 minutes 多摩都市モノレール「万願寺」歩9分 |
| Pre-ground survey, Vibration Control ・ Seismic isolation ・ Earthquake resistant, Seismic fit, 2 along the line more accessible, LDK18 tatami mats or more, System kitchen, Bathroom Dryer, All room storage, A quiet residential area, Shaping land, Face-to-face kitchen, Toilet 2 places 地盤調査済、制震・免震・耐震、耐震適合、2沿線以上利用可、LDK18畳以上、システムキッチン、浴室乾燥機、全居室収納、閑静な住宅地、整形地、対面式キッチン、トイレ2ヶ所 |
| Ltd. Forest housing, Since we are the other in to offer the best selection of properties no, Certainly once contact us, Or please visit. ※ (still, When you visit will also serve as your reservation is for you seeing slowly to the customer Please note that. ) <Inquiry or reservation toll-free: 0120-215-515> 株式会社フォレストハウジングは、他には無い選りすぐりの物件をご用意させていただいておりますので、是非一度弊社にお問合せ、またはご来店くださいませ。※(尚、ご見学の際はお客様にゆっくりとご覧いただきますためにもご予約制となりますのでご了承ください。)<お問合せまたはご予約フリーダイヤル:0120-215-515> |
Features pickup 特徴ピックアップ | | Pre-ground survey / Vibration Control ・ Seismic isolation ・ Earthquake resistant / Seismic fit / 2 along the line more accessible / LDK18 tatami mats or more / System kitchen / Bathroom Dryer / All room storage / A quiet residential area / Shaping land / Face-to-face kitchen / Toilet 2 places / Bathroom 1 tsubo or more / 2-story / South balcony / Underfloor Storage / The window in the bathroom / Leafy residential area / City gas 地盤調査済 /制震・免震・耐震 /耐震適合 /2沿線以上利用可 /LDK18畳以上 /システムキッチン /浴室乾燥機 /全居室収納 /閑静な住宅地 /整形地 /対面式キッチン /トイレ2ヶ所 /浴室1坪以上 /2階建 /南面バルコニー /床下収納 /浴室に窓 /緑豊かな住宅地 /都市ガス | Price 価格 | | 39,800,000 yen ~ 45,800,000 yen 3980万円 ~ 4580万円 | Floor plan 間取り | | 3LDK ~ 4LDK 3LDK ~ 4LDK | Units sold 販売戸数 | | 7 units 7戸 | Total units 総戸数 | | 7 units 7戸 | Land area 土地面積 | | 120.93 sq m ~ 120.94 sq m 120.93m2 ~ 120.94m2 | Building area 建物面積 | | 87.96 sq m ~ 100.44 sq m 87.96m2 ~ 100.44m2 | Completion date 完成時期(築年月) | | 2014 end of January schedule 2014年1月末予定 | Address 住所 | | Hino City, Tokyo Manganji 1-1 東京都日野市万願寺1-1 | Traffic 交通 | | Tama Monorail "Manganji" walk 9 minutes Tama city monorail "Koshu Kaido" walk 17 minutes Keio "Takahatafudo" walk 26 minutes 多摩都市モノレール「万願寺」歩9分多摩都市モノレール「甲州街道」歩17分京王線「高幡不動」歩26分
| Related links 関連リンク | | [Related Sites of this company] 【この会社の関連サイト】 | Person in charge 担当者より | | Person in charge of Forest housing 担当者フォレストハウジング | Contact お問い合せ先 | | TEL: 0120-215515 [Toll free] Please contact the "saw SUUMO (Sumo)" TEL:0120-215515【通話料無料】「SUUMO(スーモ)を見た」と問い合わせください | Building coverage, floor area ratio 建ぺい率・容積率 | | Building coverage: 50%, Volume ratio: 100% 建ぺい率:50%、容積率:100% | Time residents 入居時期 | | Consultation 相談 | Land of the right form 土地の権利形態 | | Ownership 所有権 | Use district 用途地域 | | One low-rise 1種低層 | Other limitations その他制限事項 | | Regulations have by the Aviation Law 航空法による規制有 | Overview and notices その他概要・特記事項 | | Contact: Forest housing, Building confirmation number: No. 13UDI3S Ken 01505 other 担当者:フォレストハウジング、建築確認番号:第13UDI3S建01505号 他 | Company profile 会社概要 | | <Mediation> Governor of Tokyo (1) Article 092 282 issue (stock) Forest housing Yubinbango186-0004 Tokyo National City in 1-10-8 Noah National Building 3 Kaihigashishitsu <仲介>東京都知事(1)第092282号(株)フォレストハウジング〒186-0004 東京都国立市中1-10-8 ノア国立ビル3階東室 |
Local appearance photo現地外観写真  Local (11 May 2013) Shooting
現地(2013年11月)撮影
Local photos, including front road前面道路含む現地写真  Local (11 May 2013) Shooting
現地(2013年11月)撮影
Otherその他  Compartment figure
区画図
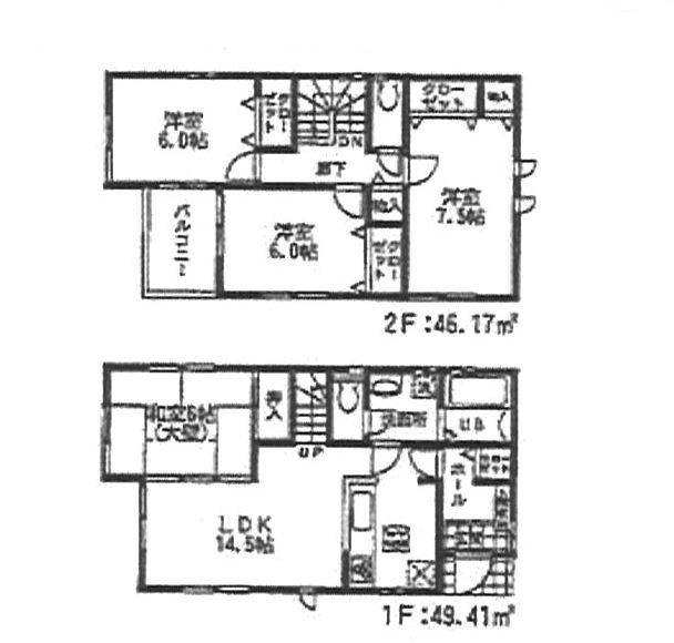
Floor plan間取り図  (1 Building), Price 41,800,000 yen, 4LDK, Land area 120.94 sq m , Building area 95.58 sq m
(1号棟)、価格4180万円、4LDK、土地面積120.94m2、建物面積95.58m2
Livingリビング  Indoor (11 May 2013) Shooting ※ It will be the example of construction.
室内(2013年11月)撮影※施工例となります。
Bathroom浴室  Indoor (11 May 2013) Shooting ※ It will be the example of construction.
室内(2013年11月)撮影※施工例となります。
Kitchenキッチン  Indoor (11 May 2013) Shooting ※ It will be the example of construction.
室内(2013年11月)撮影※施工例となります。
Non-living roomリビング以外の居室  Indoor (11 May 2013) Shooting ※ It will be the example of construction.
室内(2013年11月)撮影※施工例となります。
Entrance玄関  Local (11 May 2013) Shooting ※ It will be the example of construction.
現地(2013年11月)撮影※施工例となります。
Wash basin, toilet洗面台・洗面所  Indoor (11 May 2013) Shooting ※ It will be the example of construction.
室内(2013年11月)撮影※施工例となります。
Receipt収納  Indoor (11 May 2013) Shooting ※ It will be the example of construction.
室内(2013年11月)撮影※施工例となります。
Toiletトイレ  Indoor (11 May 2013) Shooting ※ It will be the example of construction.
室内(2013年11月)撮影※施工例となります。
Balconyバルコニー  Local (11 May 2013) Shooting ※ It will be the example of construction.
現地(2013年11月)撮影※施工例となります。
Supermarketスーパー  2234m to Super Value National shop
スーパーバリュー国立店まで2234m
Other introspectionその他内観  Indoor (11 May 2013) Shooting ※ It will be the example of construction.
室内(2013年11月)撮影※施工例となります。
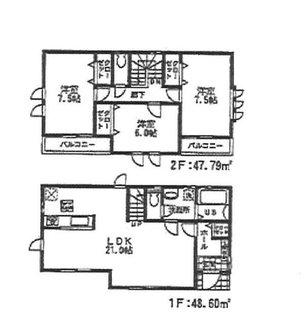
Floor plan間取り図  (Building 2), Price 43,800,000 yen, 3LDK, Land area 120.93 sq m , Building area 96.39 sq m
(2号棟)、価格4380万円、3LDK、土地面積120.93m2、建物面積96.39m2
Livingリビング  Indoor (11 May 2013) Shooting ※ It will be the example of construction.
室内(2013年11月)撮影※施工例となります。
Non-living roomリビング以外の居室  Indoor (11 May 2013) Shooting ※ It will be the example of construction.
室内(2013年11月)撮影※施工例となります。
Receipt収納  Indoor (11 May 2013) Shooting ※ It will be the example of construction.
室内(2013年11月)撮影※施工例となります。
Supermarketスーパー  704m until Inageya Hino Manganji Ekimae
いなげや日野万願寺駅前店まで704m
Floor plan間取り図  (3 Building), Price 39,800,000 yen, 3LDK, Land area 120.94 sq m , Building area 87.96 sq m
(3号棟)、価格3980万円、3LDK、土地面積120.94m2、建物面積87.96m2
Location
|