2014January
43,800,000 yen, 3LDK, 96.39 sq m
New Homes » Kanto » Tokyo » Hino

| | Hino City, Tokyo 東京都日野市 |
| Tama Monorail "Manganji" walk 9 minutes 多摩都市モノレール「万願寺」歩9分 |
Features pickup 特徴ピックアップ | | 2-story / Double-glazing 2階建 /複層ガラス | Price 価格 | | 43,800,000 yen 4380万円 | Floor plan 間取り | | 3LDK 3LDK | Units sold 販売戸数 | | 1 units 1戸 | Total units 総戸数 | | 7 units 7戸 | Land area 土地面積 | | 120.93 sq m 120.93m2 | Building area 建物面積 | | 96.39 sq m 96.39m2 | Driveway burden-road 私道負担・道路 | | Nothing, Northeast 5.5m width 無、北東5.5m幅 | Completion date 完成時期(築年月) | | January 2014 2014年1月 | Address 住所 | | Hino City, Tokyo Manganji 1 東京都日野市万願寺1 | Traffic 交通 | | Tama Monorail "Manganji" walk 9 minutes 多摩都市モノレール「万願寺」歩9分 | Contact お問い合せ先 | | Sumitomo Forestry Home Service Co., Ltd. Fuchu store TEL: 0800-603-0295 [Toll free] mobile phone ・ Also available from PHS Caller ID is not notified Please contact the "saw SUUMO (Sumo)" If it does not lead, If the real estate company 住友林業ホームサービス(株)府中店TEL:0800-603-0295【通話料無料】携帯電話・PHSからもご利用いただけます 発信者番号は通知されません 「SUUMO(スーモ)を見た」と問い合わせください つながらない方、不動産会社の方は
| Building coverage, floor area ratio 建ぺい率・容積率 | | Fifty percent ・ Hundred percent 50%・100% | Time residents 入居時期 | | January 2014 2014年1月 | Land of the right form 土地の権利形態 | | Ownership 所有権 | Structure and method of construction 構造・工法 | | Wooden 2-story 木造2階建 | Use district 用途地域 | | One low-rise 1種低層 | Overview and notices その他概要・特記事項 | | Facilities: Public Water Supply, This sewage, City gas, Building confirmation number: first 13UDI3S Ken 01504, Parking: car space 設備:公営水道、本下水、都市ガス、建築確認番号:第13UDI3S建01504、駐車場:カースペース | Company profile 会社概要 | | <Mediation> Minister of Land, Infrastructure and Transport (14) Article 000220 No. Sumitomo Forestry Home Service Co., Ltd. Fuchu store Yubinbango183-0055 Tokyo Metropolitan Fuchu Fuchu-cho 1-1-5 Fuchu Takagi building the third floor <仲介>国土交通大臣(14)第000220号住友林業ホームサービス(株)府中店〒183-0055 東京都府中市府中町1-1-5 府中高木ビル3階 |
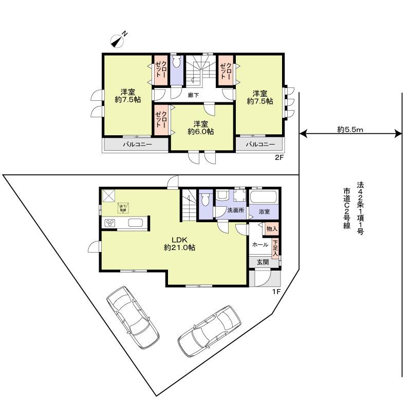
Floor plan間取り図  43,800,000 yen, 3LDK, Land area 120.93 sq m , Building area 96.39 sq m
4380万円、3LDK、土地面積120.93m2、建物面積96.39m2
Location
|