New Homes » Kanto » Tokyo » Hino
 
| | Hino City, Tokyo 東京都日野市 |
| Keio Line "Nanping" walk 7 minutes 京王線「南平」歩7分 |
| Pre-ground survey, Parking two Allowed, 2 along the line more accessible, System kitchen, Bathroom Dryer, All room storage, Siemens south road, Shaping land, Face-to-face kitchen, Toilet 2 places, Bathroom 1 tsubo or more, 2-story 地盤調査済、駐車2台可、2沿線以上利用可、システムキッチン、浴室乾燥機、全居室収納、南側道路面す、整形地、対面式キッチン、トイレ2ヶ所、浴室1坪以上、2階建 |
| Ltd. Forest housing, Since we are the other in to offer the best selection of properties no, Certainly once contact us, Or please visit. ※ (still, When you visit will also serve as your reservation is for you seeing slowly to the customer Please note that. ) <Inquiry or reservation toll-free: 0120-215-515> 株式会社フォレストハウジングは、他には無い選りすぐりの物件をご用意させていただいておりますので、是非一度弊社にお問合せ、またはご来店くださいませ。※(尚、ご見学の際はお客様にゆっくりとご覧いただきますためにもご予約制となりますのでご了承ください。)<お問合せまたはご予約フリーダイヤル:0120-215-515> |
Features pickup 特徴ピックアップ | | Pre-ground survey / Parking two Allowed / 2 along the line more accessible / System kitchen / Bathroom Dryer / All room storage / Siemens south road / Shaping land / Face-to-face kitchen / Toilet 2 places / Bathroom 1 tsubo or more / 2-story / South balcony / Double-glazing / The window in the bathroom / TV monitor interphone / All living room flooring / Water filter / City gas 地盤調査済 /駐車2台可 /2沿線以上利用可 /システムキッチン /浴室乾燥機 /全居室収納 /南側道路面す /整形地 /対面式キッチン /トイレ2ヶ所 /浴室1坪以上 /2階建 /南面バルコニー /複層ガラス /浴室に窓 /TVモニタ付インターホン /全居室フローリング /浄水器 /都市ガス | Price 価格 | | 29,800,000 yen 2980万円 | Floor plan 間取り | | 3LDK 3LDK | Units sold 販売戸数 | | 2 units 2戸 | Total units 総戸数 | | 2 units 2戸 | Land area 土地面積 | | 96 sq m ~ 96.01 sq m 96m2 ~ 96.01m2 | Building area 建物面積 | | 76.18 sq m 76.18m2 | Completion date 完成時期(築年月) | | 2014 end of February schedule 2014年2月末予定 | Address 住所 | | Hino City, Tokyo Nanping 2-5 東京都日野市南平2-5 | Traffic 交通 | | Keio Line "Nanping" walk 7 minutes Tama Monorail "Hodokubo" walk 23 minutes JR Chuo Line, "Toyoda" walk 27 minutes 京王線「南平」歩7分 多摩都市モノレール「程久保」歩23分JR中央線「豊田」歩27分
| Related links 関連リンク | | [Related Sites of this company] 【この会社の関連サイト】 | Person in charge 担当者より | | Person in charge of Forest housing 担当者フォレストハウジング | Contact お問い合せ先 | | TEL: 0120-215515 [Toll free] Please contact the "saw SUUMO (Sumo)" TEL:0120-215515【通話料無料】「SUUMO(スーモ)を見た」と問い合わせください | Building coverage, floor area ratio 建ぺい率・容積率 | | Building coverage: 40%, Volume ratio: 80% 建ぺい率:40%、容積率:80% | Time residents 入居時期 | | Consultation 相談 | Land of the right form 土地の権利形態 | | Ownership 所有権 | Use district 用途地域 | | One low-rise 1種低層 | Other limitations その他制限事項 | | Regulations have by the Aviation Law 航空法による規制有 | Overview and notices その他概要・特記事項 | | Contact: Forest housing, Building confirmation number: No. TKK 確済 13-1344 other 担当者:フォレストハウジング、建築確認番号:第TKK確済13-1344号 他 | Company profile 会社概要 | | <Mediation> Governor of Tokyo (1) Article 092 282 issue (stock) Forest housing Yubinbango186-0004 Tokyo National City in 1-10-8 Noah National Building 3 Kaihigashishitsu <仲介>東京都知事(1)第092282号(株)フォレストハウジング〒186-0004 東京都国立市中1-10-8 ノア国立ビル3階東室 |
Local appearance photo現地外観写真  Example of construction
施工例
Kitchenキッチン  Example of construction
施工例
Livingリビング  Example of construction
施工例
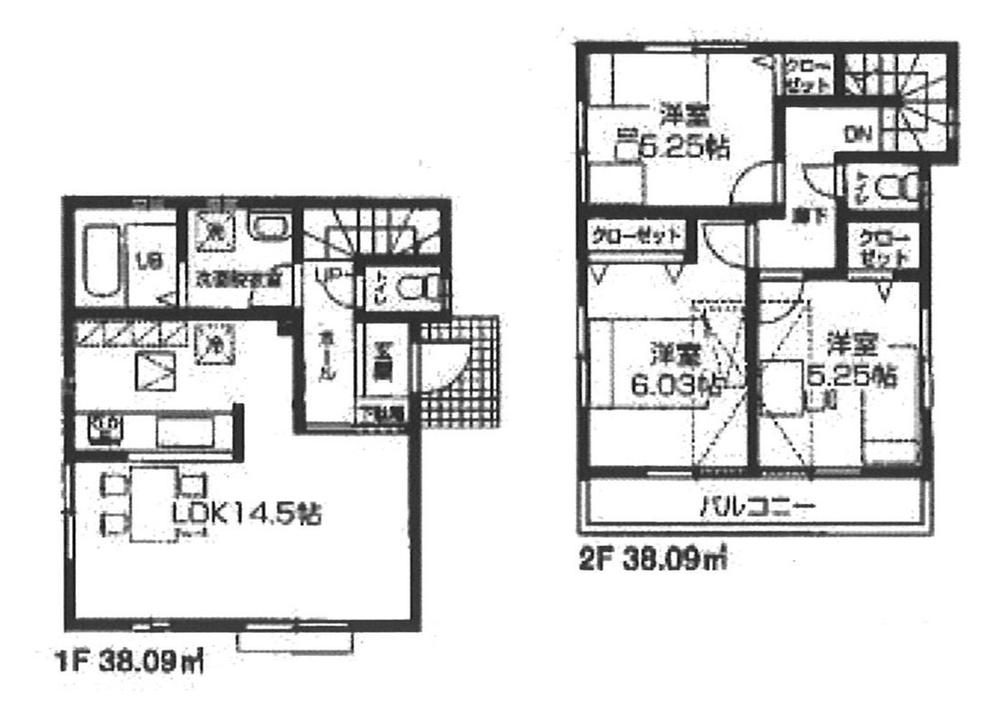
Floor plan間取り図  (1 Building), Price 29,800,000 yen, 3LDK, Land area 96.01 sq m , Building area 76.18 sq m
(1号棟)、価格2980万円、3LDK、土地面積96.01m2、建物面積76.18m2
Bathroom浴室  Example of construction
施工例
Non-living roomリビング以外の居室  Example of construction
施工例
Entrance玄関  Example of construction
施工例
Wash basin, toilet洗面台・洗面所  Example of construction
施工例
Receipt収納  Example of construction
施工例
Toiletトイレ  Example of construction
施工例
Parking lot駐車場  Example of construction
施工例
Balconyバルコニー  Example of construction
施工例
Supermarketスーパー  927m to Super Alps Nanping shop
スーパーアルプス南平店まで927m
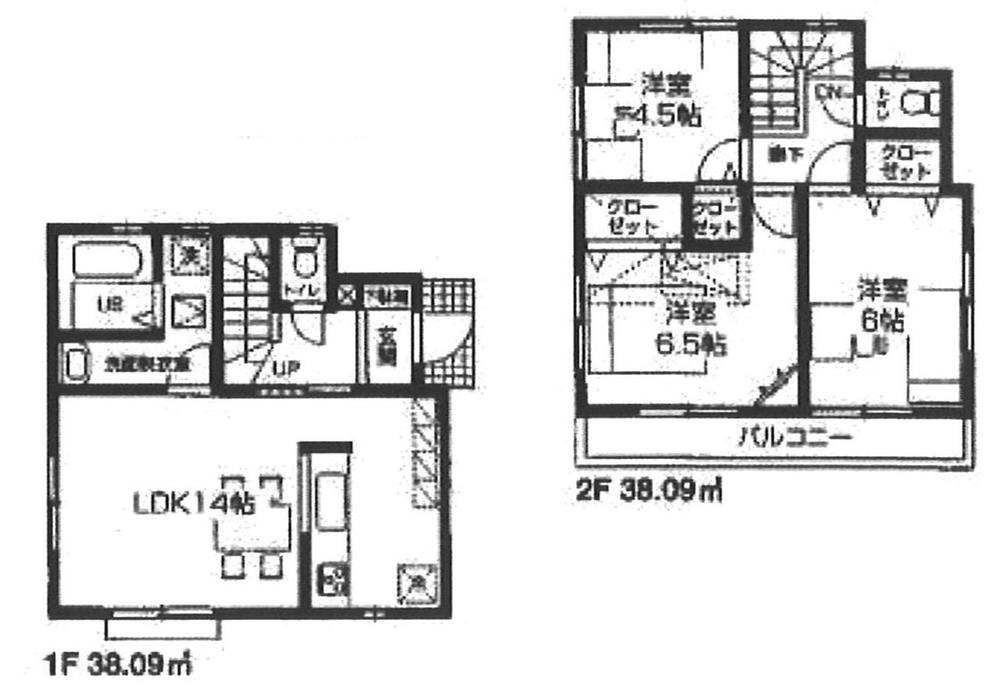
Floor plan間取り図  (Building 2), Price 29,800,000 yen, 3LDK, Land area 96 sq m , Building area 76.18 sq m
(2号棟)、価格2980万円、3LDK、土地面積96m2、建物面積76.18m2
Non-living roomリビング以外の居室  Example of construction
施工例
Entrance玄関  Example of construction
施工例
Receipt収納  Example of construction
施工例
Drug storeドラッグストア  San drag it to the Nanping shop 293m
サンドラッグ南平店まで293m
Non-living roomリビング以外の居室  Example of construction
施工例
Home centerホームセンター  Yamada Denki Tecc Land until Nanping shop 662m
ヤマダ電機テックランド南平店まで662m
Non-living roomリビング以外の居室  Example of construction
施工例
Location
|