2014March
39,900,000 yen, 4LDK, 95.84 sq m
New Homes » Kanto » Tokyo » Hino

| | Hino City, Tokyo 東京都日野市 |
| Tama Monorail "Manganji" walk 12 minutes 多摩都市モノレール「万願寺」歩12分 |
Features pickup 特徴ピックアップ | | Facing south / LDK15 tatami mats or more / 2-story / Double-glazing / TV monitor interphone 南向き /LDK15畳以上 /2階建 /複層ガラス /TVモニタ付インターホン | Price 価格 | | 39,900,000 yen 3990万円 | Floor plan 間取り | | 4LDK 4LDK | Units sold 販売戸数 | | 1 units 1戸 | Total units 総戸数 | | 2 units 2戸 | Land area 土地面積 | | 122.9 sq m 122.9m2 | Building area 建物面積 | | 95.84 sq m 95.84m2 | Driveway burden-road 私道負担・道路 | | Nothing, North 4m width 無、北4m幅 | Completion date 完成時期(築年月) | | March 2014 2014年3月 | Address 住所 | | Hino City, Tokyo Oaza Ishida 東京都日野市大字石田 | Traffic 交通 | | Tama Monorail "Manganji" walk 12 minutes 多摩都市モノレール「万願寺」歩12分 | Contact お問い合せ先 | | Sumitomo Forestry Home Service Co., Ltd. Fuchu store TEL: 0800-603-0295 [Toll free] mobile phone ・ Also available from PHS Caller ID is not notified Please contact the "saw SUUMO (Sumo)" If it does not lead, If the real estate company 住友林業ホームサービス(株)府中店TEL:0800-603-0295【通話料無料】携帯電話・PHSからもご利用いただけます 発信者番号は通知されません 「SUUMO(スーモ)を見た」と問い合わせください つながらない方、不動産会社の方は
| Building coverage, floor area ratio 建ぺい率・容積率 | | 40% ・ 80% 40%・80% | Time residents 入居時期 | | March 2014 schedule 2014年3月予定 | Land of the right form 土地の権利形態 | | Ownership 所有権 | Structure and method of construction 構造・工法 | | Wooden 2-story 木造2階建 | Overview and notices その他概要・特記事項 | | Facilities: Public Water Supply, This sewage, City gas, Building confirmation number: No. H25SHC117265 設備:公営水道、本下水、都市ガス、建築確認番号:第H25SHC117265号 | Company profile 会社概要 | | <Mediation> Minister of Land, Infrastructure and Transport (14) Article 000220 No. Sumitomo Forestry Home Service Co., Ltd. Fuchu store Yubinbango183-0055 Tokyo Metropolitan Fuchu Fuchu-cho 1-1-5 Fuchu Takagi building the third floor <仲介>国土交通大臣(14)第000220号住友林業ホームサービス(株)府中店〒183-0055 東京都府中市府中町1-1-5 府中高木ビル3階 |
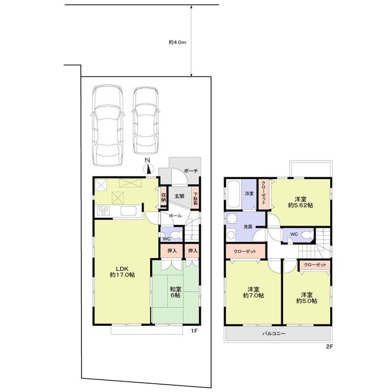
Floor plan間取り図  39,900,000 yen, 4LDK, Land area 122.9 sq m , Building area 95.84 sq m
3990万円、4LDK、土地面積122.9m2、建物面積95.84m2
Location
|