New Homes » Kanto » Tokyo » Inagi
 
| | Tokyo Inagi 東京都稲城市 |
| Odakyu line "Shinyurigaoka" walk 14 minutes 小田急線「新百合ヶ丘」歩14分 |
| Parking two Allowed, Living stairs, Attic storage, Flat terrain, Double-glazing, Measures to conserve energy, Corresponding to the flat-35S, Pre-ground survey, Seismic fit, 2 along the line more accessible, Fiscal year Available, Super close 駐車2台可、リビング階段、屋根裏収納、平坦地、複層ガラス、省エネルギー対策、フラット35Sに対応、地盤調査済、耐震適合、2沿線以上利用可、年度内入居可、スーパーが近い |
| Parking two Allowed, Living stairs, Attic storage, Flat terrain, Double-glazing, Measures to conserve energy, Corresponding to the flat-35S, Pre-ground survey, Seismic fit, 2 along the line more accessible, Fiscal year Available, Super close, It is close to the city, Facing south, System kitchen, Bathroom Dryer, Yang per good, All room storage, Flat to the station, A quiet residential area, LDK15 tatami mats or more, Or more before road 6mese-style room, Shaping land, Washbasin with shower, Face-to-face kitchen, Barrier-free, Toilet 2 places, Bathroom 1 tsubo or more, 2-story, South balcony, Zenshitsuminami direction, Otobasu, Warm water washing toilet seat, Underfloor Storage, The window in the bathroom, TV monitor interphone, Urban neighborhood, Ventilation good, City gas, Maintained sidewalk 駐車2台可、リビング階段、屋根裏収納、平坦地、複層ガラス、省エネルギー対策、フラット35Sに対応、地盤調査済、耐震適合、2沿線以上利用可、年度内入居可、スーパーが近い、市街地が近い、南向き、システムキッチン、浴室乾燥機、陽当り良好、全居室収納、駅まで平坦、閑静な住宅地、LDK15畳以上、前道6m以上、和室、整形地、シャワー付洗面台、対面式キッチン、バリアフリー、トイレ2ヶ所、浴室1坪以上、2階建、南面バルコニー、全室南向き、オートバス、温水洗浄便座、床下収納、浴室に窓、TVモニタ付インターホン、都市近郊、通風良好、都市ガス、整備された歩道 |
Features pickup 特徴ピックアップ | | Measures to conserve energy / Corresponding to the flat-35S / Pre-ground survey / Seismic fit / Parking two Allowed / 2 along the line more accessible / Fiscal year Available / Super close / It is close to the city / Facing south / System kitchen / Bathroom Dryer / Yang per good / All room storage / Flat to the station / A quiet residential area / LDK15 tatami mats or more / Or more before road 6m / Japanese-style room / Shaping land / Washbasin with shower / Face-to-face kitchen / Barrier-free / Toilet 2 places / Bathroom 1 tsubo or more / 2-story / South balcony / Double-glazing / Zenshitsuminami direction / Otobasu / Warm water washing toilet seat / Underfloor Storage / The window in the bathroom / TV monitor interphone / Urban neighborhood / Ventilation good / Living stairs / City gas / Maintained sidewalk / Flat terrain / Attic storage 省エネルギー対策 /フラット35Sに対応 /地盤調査済 /耐震適合 /駐車2台可 /2沿線以上利用可 /年度内入居可 /スーパーが近い /市街地が近い /南向き /システムキッチン /浴室乾燥機 /陽当り良好 /全居室収納 /駅まで平坦 /閑静な住宅地 /LDK15畳以上 /前道6m以上 /和室 /整形地 /シャワー付洗面台 /対面式キッチン /バリアフリー /トイレ2ヶ所 /浴室1坪以上 /2階建 /南面バルコニー /複層ガラス /全室南向き /オートバス /温水洗浄便座 /床下収納 /浴室に窓 /TVモニタ付インターホン /都市近郊 /通風良好 /リビング階段 /都市ガス /整備された歩道 /平坦地 /屋根裏収納 | Price 価格 | | 39,800,000 yen 3980万円 | Floor plan 間取り | | 4LDK 4LDK | Units sold 販売戸数 | | 1 units 1戸 | Land area 土地面積 | | 97.08 sq m (29.36 tsubo) (Registration) 97.08m2(29.36坪)(登記) | Building area 建物面積 | | 96.58 sq m (29.21 tsubo) (measured) 96.58m2(29.21坪)(実測) | Driveway burden-road 私道負担・道路 | | Nothing, Southwest 16m width 無、南西16m幅 | Completion date 完成時期(築年月) | | January 2014 2014年1月 | Address 住所 | | Tokyo Inagi Hirao 1 東京都稲城市平尾1 | Traffic 交通 | | Odakyu line "Shinyurigaoka" walk 14 minutes Tamasen Odakyu "Satsukidai" walk 23 minutes Tamasen Odakyu "Kurihira" walk 30 minutes 小田急線「新百合ヶ丘」歩14分 小田急多摩線「五月台」歩23分 小田急多摩線「栗平」歩30分
| Related links 関連リンク | | [Related Sites of this company] 【この会社の関連サイト】 | Person in charge 担当者より | | Rep Kakazu Naoyuki Age: 30s [Favorite food] Loofah [hobby] Sunbathing [Word] Only serious is the merit. 担当者嘉数 直之年齢:30代【好きな食べ物】ヘチマ 【趣味】日光浴 【一言】真面目だけが取り柄です。 | Contact お問い合せ先 | | TEL: 0800-603-2732 [Toll free] mobile phone ・ Also available from PHS Caller ID is not notified Please contact the "saw SUUMO (Sumo)" If it does not lead, If the real estate company TEL:0800-603-2732【通話料無料】携帯電話・PHSからもご利用いただけます 発信者番号は通知されません 「SUUMO(スーモ)を見た」と問い合わせください つながらない方、不動産会社の方は
| Building coverage, floor area ratio 建ぺい率・容積率 | | 60% ・ 200% 60%・200% | Time residents 入居時期 | | January 2014 2014年1月 | Land of the right form 土地の権利形態 | | Ownership 所有権 | Structure and method of construction 構造・工法 | | Wooden 2-story (framing method) 木造2階建(軸組工法) | Use district 用途地域 | | Two mid-high 2種中高 | Other limitations その他制限事項 | | Regulations have by the Landscape Act, Height district, Quasi-fire zones, Height ceiling Yes 景観法による規制有、高度地区、準防火地域、高さ最高限度有 | Overview and notices その他概要・特記事項 | | Contact: Kakazu Naoyuki, Facilities: Public Water Supply, This sewage, City gas, Building confirmation number: 01709, Parking: car space 担当者:嘉数 直之、設備:公営水道、本下水、都市ガス、建築確認番号:01709、駐車場:カースペース | Company profile 会社概要 | | <Mediation> Governor of Tokyo (1) No. 089264 (Corporation) Tokyo Metropolitan Government Building Lots and Buildings Transaction Business Association (Corporation) metropolitan area real estate Fair Trade Council member (Ltd.) Urban Home Machida branch Yubinbango194-0022 Tokyo Machida Morino 1-34-10 first Yazawa building first floor <仲介>東京都知事(1)第089264号(公社)東京都宅地建物取引業協会会員 (公社)首都圏不動産公正取引協議会加盟(株)アーバンホーム町田支店〒194-0022 東京都町田市森野1-34-10 第1矢沢ビル1階 |
Rendering (appearance)完成予想図(外観)  Rendering
完成予想図
Local appearance photo現地外観写真  Local (11 May 2013) Shooting
現地(2013年11月)撮影
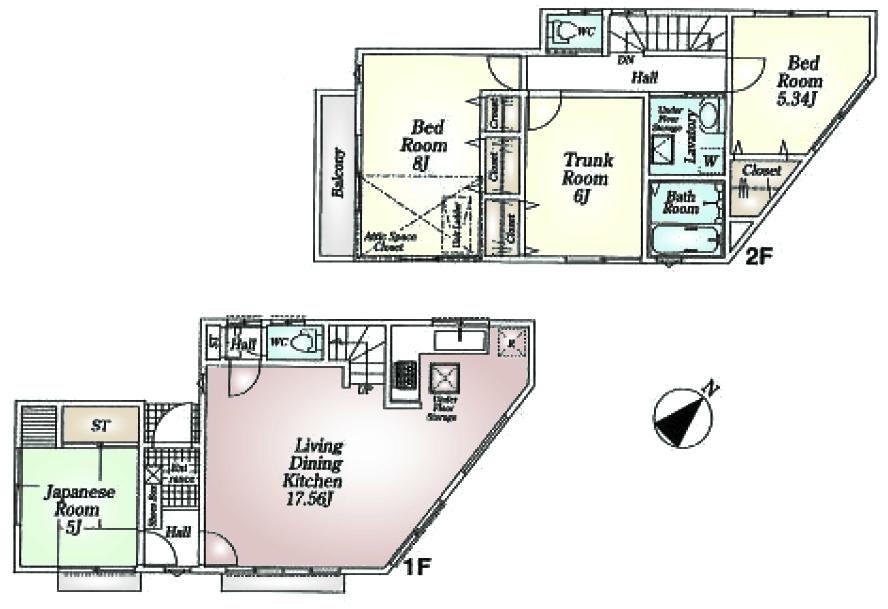
Floor plan間取り図  39,800,000 yen, 4LDK, Land area 97.08 sq m , Building area 96.58 sq m floor plan
3980万円、4LDK、土地面積97.08m2、建物面積96.58m2 間取り図
Same specifications photos (living)同仕様写真(リビング)  Same specifications
同仕様
Same specifications photo (bathroom)同仕様写真(浴室)  Same specifications
同仕様
Same specifications photo (kitchen)同仕様写真(キッチン)  Same specifications
同仕様
Local photos, including front road前面道路含む現地写真  Local (11 May 2013) Shooting
現地(2013年11月)撮影
Same specifications photos (Other introspection)同仕様写真(その他内観)  Same specifications
同仕様
 Supermarket
スーパー
 Primary school
小学校
 Junior high school
中学校
Location
|