New Homes » Kanto » Tokyo » Itabashi
 
| | Itabashi-ku, Tokyo 東京都板橋区 |
| Tobu Tojo Line "Tokiwadai" walk 11 minutes 東武東上線「ときわ台」歩11分 |
| ・ Large 4LDK newly built House for total floor area of 114 sq m came out in Itabashi-ku Higashiyama-cho,. ・ Tobu Tojo Line "Tokiwadai" station 11 minutes, Available in "Nakaitabashi" station 14 minutes. ・延床面積114m2の大型4LDK新築戸建てが板橋区東山町に出ました。・東武東上線「ときわ台」駅11分、「中板橋」駅14分でご利用頂けます。 |
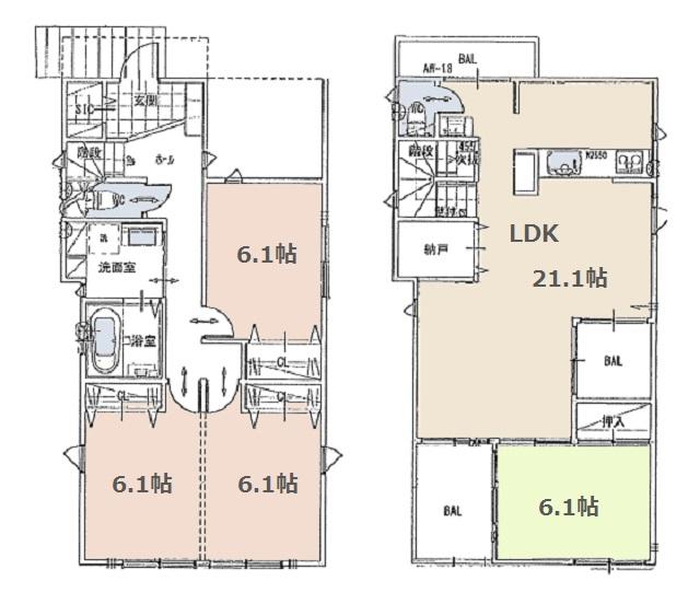
| LDK is because it is 2.16 breadth of 21 tatami, Guests can relax with your family everyone. So also there is all six quires more breadth room, It delayed living and spacious. Since the living room floor is located balcony three sides, It illuminates a large living. It can also be used as a space to enjoy, such as tea because there is also a Japanese-style room. Around the station of Tokiwadai There are supermarkets and shopping district, Shopping also has become a convenient living environment. LDKは21帖の広さが取れていますので、ご家族皆様でくつろげます。居室も全て6帖以上の広さがございますので、ゆったりとした生活がおくれます。リビング階はバルコニーが3面ございますので、広いリビングを明るく照らします。和室もあるのでお茶などを楽しむスペースとしてもご利用できますね。ときわ台の駅周辺はスーパーや商店街があり、お買い物も便利な住環境になっております。 |
Features pickup 特徴ピックアップ | | LDK20 tatami mats or more / System kitchen / Yang per good / All room storage / Japanese-style room / Shaping land / Face-to-face kitchen / Toilet 2 places / Bathroom 1 tsubo or more / 2-story / 2 or more sides balcony / TV monitor interphone / Dish washing dryer / All room 6 tatami mats or more / Water filter / Floor heating LDK20畳以上 /システムキッチン /陽当り良好 /全居室収納 /和室 /整形地 /対面式キッチン /トイレ2ヶ所 /浴室1坪以上 /2階建 /2面以上バルコニー /TVモニタ付インターホン /食器洗乾燥機 /全居室6畳以上 /浄水器 /床暖房 | Price 価格 | | 61,800,000 yen 6180万円 | Floor plan 間取り | | 4LDK 4LDK | Units sold 販売戸数 | | 1 units 1戸 | Total units 総戸数 | | 1 units 1戸 | Land area 土地面積 | | 103.7 sq m (measured) 103.7m2(実測) | Building area 建物面積 | | 114.68 sq m (measured) 114.68m2(実測) | Completion date 完成時期(築年月) | | February 2014 late schedule 2014年2月下旬予定 | Address 住所 | | Itabashi-ku, Tokyo, Higashiyama-cho, 東京都板橋区東山町 | Traffic 交通 | | Tobu Tojo Line "Tokiwadai" walk 11 minutes Tobu Tojo Line "Nakaitabashi" walk 14 minutes 東武東上線「ときわ台」歩11分 東武東上線「中板橋」歩14分
| Related links 関連リンク | | [Related Sites of this company] 【この会社の関連サイト】 | Person in charge 担当者より | | Person in charge of real-estate and building FP Oda Tomorrow Age: 20 Daigyokai experience: the purchase of the highest and is being said real estate for the second year in a lifetime. We will continue to devote every day to get used to the human resources that can smile with satisfaction the purchase! 担当者宅建FP小田 明日年齢:20代業界経験:2年一生で一番高いと言われている不動産の購入。 その購入を満足して笑顔にできるような人財と なれるよう日々精進していきます! | Contact お問い合せ先 | | TEL: 0800-603-7095 [Toll free] mobile phone ・ Also available from PHS Caller ID is not notified Please contact the "saw SUUMO (Sumo)" If it does not lead, If the real estate company TEL:0800-603-7095【通話料無料】携帯電話・PHSからもご利用いただけます 発信者番号は通知されません 「SUUMO(スーモ)を見た」と問い合わせください つながらない方、不動産会社の方は
| Building coverage, floor area ratio 建ぺい率・容積率 | | Building coverage: 60%, Volume ratio: 160% 建ぺい率:60%、容積率:160% | Time residents 入居時期 | | February 2014 late schedule 2014年2月下旬予定 | Land of the right form 土地の権利形態 | | Ownership 所有権 | Use district 用途地域 | | One middle and high 1種中高 | Overview and notices その他概要・特記事項 | | Contact: Oda tomorrow, Building confirmation number: No. 13UDI2T Ken 01388 担当者:小田 明日、建築確認番号:第13UDI2T建01388号 | Company profile 会社概要 | | <Mediation> Governor of Tokyo (2) No. 086581 (Ltd.) ad cast Komagome branch Yubinbango113-0021, Bunkyo-ku, Tokyo Honkomagome 6-15-8 Erupisubiru fifth floor <仲介>東京都知事(2)第086581号(株)アドキャスト駒込支店〒113-0021 東京都文京区本駒込6-15-8 エルピスビル5階 |
Local appearance photo現地外観写真  Local is a photo (2013 November shooting)
現地写真です(2013年11月撮影)
 Local photos, including front road
前面道路含む現地写真
Same specifications photos (living)同仕様写真(リビング)  Complete site construction cases (living)
完成現場施工例(リビング)
Floor plan間取り図  (1 compartment), Price 61,800,000 yen, 4LDK, Land area 103.7 sq m , Building area 114.68 sq m
(1区画)、価格6180万円、4LDK、土地面積103.7m2、建物面積114.68m2
Same specifications photos (living)同仕様写真(リビング)  Complete site construction cases (living)
完成現場施工例(リビング)
Same specifications photo (bathroom)同仕様写真(浴室)  Complete site construction cases (bathroom)
完成現場施工例(浴室)
Same specifications photo (kitchen)同仕様写真(キッチン)  Complete site construction cases (kitchen)
完成現場施工例(キッチン)
Station駅  1200m to Nakaitabashi Station
中板橋駅まで1200m
Same specifications photos (Other introspection)同仕様写真(その他内観)  Complete site construction cases (washroom)
完成現場施工例(洗面所)
Primary school小学校  Kamiitabashi 300m up to elementary school
上板橋小学校まで300m
Junior high school中学校  Johoku 850m until junior high school
城北中学校まで850m
Hospital病院  650m to the Nihon University School of Medicine University Itabashi Hospital
日本大学医学部附属板橋病院まで650m
Kindergarten ・ Nursery幼稚園・保育園  Kagome to kindergarten 350m
かごめ幼稚園まで350m
Location
|