New Homes » Kanto » Tokyo » Itabashi
 
| | Itabashi-ku, Tokyo 東京都板橋区 |
| Tobu Tojo Line "Tokiwadai" walk 8 minutes 東武東上線「ときわ台」歩8分 |
| About positive per good west per south road surface 4m adjacent land passage Itopia Home construction of safe housing 南公道面につき陽当り良好 西側約4m隣地通路 イトーピアホーム施工の安心住宅 |
| radiation ・ Concentric street configuration of charm Tokiwadai. Newly built condominiums limited 1 compartment that faces the south road is now announced. West because of the adjacent land passage (about 4m), , Exposure to the sun ・ ventilation ・ There is a feeling of opening. Construction will be Itopia home of peace of mind. ■ Connecting the north-south trunk road extending straight "Denenchofu of Tobu Tojo Line" Am tick staff report from Ikebukuro from five eye north exit of the station "Tokiwadai" of, Unique radiation ・ When looking at a concentric street configuration, Here is whether Denenchofu. Loading bay to produce a semi-public atmosphere Ya, Cul-de-sac is one of the landscape that symbolizes the Tokiwadai. It arrived on in about 8 minutes to walk slowly to such a loading bay. Properties that We are pleased to introduce 放射線・同心円状の街路構成が魅力の常盤台。南公道に面する限定1区画の新築分譲住宅が発表になりました。西側は隣地通路(約4m)のため、、陽当り・通風・開放感があります。施工は安心のイトーピアホームになります。■アムティック スタッフレポート『東武東上線の田園調布』池袋から5つ目の駅 「ときわ台」の北口から真っすぐにのびる南北の幹線道路をつなぐ、ユニークな放射線・同心円状の街路構成を眺めていると、ここは田園調布かと。セミパブリックな雰囲気を生みだすロードベイや、クルドサックは常盤台を象徴とする風景の1つです。そんなロードベイをゆっくりと歩くこと8分ほどで現地に到着。今回ご紹介する物件 |
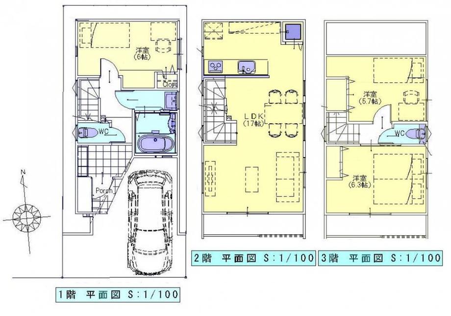
Features pickup 特徴ピックアップ | | Pre-ground survey / 2 along the line more accessible / Super close / Facing south / Bathroom Dryer / Yang per good / A quiet residential area / LDK15 tatami mats or more / Around traffic fewer / Shaping land / Face-to-face kitchen / Wide balcony / Bathroom 1 tsubo or more / South balcony / Double-glazing / The window in the bathroom / Ventilation good / Water filter / Three-story or more / Living stairs / City gas / All rooms are two-sided lighting / A large gap between the neighboring house / Flat terrain / Floor heating 地盤調査済 /2沿線以上利用可 /スーパーが近い /南向き /浴室乾燥機 /陽当り良好 /閑静な住宅地 /LDK15畳以上 /周辺交通量少なめ /整形地 /対面式キッチン /ワイドバルコニー /浴室1坪以上 /南面バルコニー /複層ガラス /浴室に窓 /通風良好 /浄水器 /3階建以上 /リビング階段 /都市ガス /全室2面採光 /隣家との間隔が大きい /平坦地 /床暖房 | Price 価格 | | 46,800,000 yen 4680万円 | Floor plan 間取り | | 3LDK 3LDK | Units sold 販売戸数 | | 1 units 1戸 | Land area 土地面積 | | 54.52 sq m (16.49 tsubo) (measured) 54.52m2(16.49坪)(実測) | Building area 建物面積 | | 85.05 sq m (25.72 tsubo) (Registration), Among the first floor garage 4.97 sq m 85.05m2(25.72坪)(登記)、うち1階車庫4.97m2 | Driveway burden-road 私道負担・道路 | | Nothing, South 3.8m width (contact the road width 4.9m) 無、南3.8m幅(接道幅4.9m) | Completion date 完成時期(築年月) | | December 2013 2013年12月 | Address 住所 | | Itabashi-ku, Tokyo Tokiwadai 3 東京都板橋区常盤台3 | Traffic 交通 | | Tobu Tojo Line "Tokiwadai" walk 8 minutes Toei Mita Line "this Hasunuma" walk 27 minutes Tobu Tojo Line "Kamiitabashi" walk 13 minutes 東武東上線「ときわ台」歩8分 都営三田線「本蓮沼」歩27分 東武東上線「上板橋」歩13分
| Person in charge 担当者より | | Rep Takami Kurokawa 担当者黒川孝海 | Contact お問い合せ先 | | TEL: 0800-603-3448 [Toll free] mobile phone ・ Also available from PHS Caller ID is not notified Please contact the "saw SUUMO (Sumo)" If it does not lead, If the real estate company TEL:0800-603-3448【通話料無料】携帯電話・PHSからもご利用いただけます 発信者番号は通知されません 「SUUMO(スーモ)を見た」と問い合わせください つながらない方、不動産会社の方は
| Building coverage, floor area ratio 建ぺい率・容積率 | | 60% ・ 160% 60%・160% | Time residents 入居時期 | | January 2014 2014年1月 | Land of the right form 土地の権利形態 | | Ownership 所有権 | Structure and method of construction 構造・工法 | | Wooden three-story 木造3階建 | Construction 施工 | | (Ltd.) Itopia Home (株)イトーピアホーム | Use district 用途地域 | | One middle and high 1種中高 | Overview and notices その他概要・特記事項 | | Contact: Takami Kurokawa, Facilities: Public Water Supply, This sewage, City gas, Building confirmation number: H25SHC111481, Parking: Garage 担当者:黒川孝海、設備:公営水道、本下水、都市ガス、建築確認番号:H25SHC111481、駐車場:車庫 | Company profile 会社概要 | | <Seller> Governor of Tokyo (2) No. 082920 (Corporation) Tokyo Metropolitan Government Building Lots and Buildings Transaction Business Association (Corporation) metropolitan area real estate Fair Trade Council member am tick (Ltd.) Kichijoji headquarters sales department Yubinbango180-0002 Musashino-shi, Tokyo Kichijojihigashi cho 1-19-21 <売主>東京都知事(2)第082920号(公社)東京都宅地建物取引業協会会員 (公社)首都圏不動産公正取引協議会加盟アムティック(株)吉祥寺本社営業部〒180-0002 東京都武蔵野市吉祥寺東町1-19-21 |
Floor plan間取り図  46,800,000 yen, 3LDK, Land area 54.52 sq m , Building area 85.05 sq m
4680万円、3LDK、土地面積54.52m2、建物面積85.05m2
 Other
その他
 Same specifications photos (Other introspection)
同仕様写真(その他内観)
Kindergarten ・ Nursery幼稚園・保育園  Wakatake Kanae 124m to nursery school
わかたけかなえ保育園まで124m
 Same specifications photos (Other introspection)
同仕様写真(その他内観)
Compartment figure区画図  46,800,000 yen, 3LDK, Land area 54.52 sq m , Building area 85.05 sq m
4680万円、3LDK、土地面積54.52m2、建物面積85.05m2
 Other local
その他現地
Park公園  174m to ward Mizukubo park
区立水久保公園まで174m
 Same specifications photos (Other introspection)
同仕様写真(その他内観)
Post office郵便局  229m until Itabashi Tokiwadai three post office
板橋常盤台三郵便局まで229m
 Same specifications photos (Other introspection)
同仕様写真(その他内観)
Hospital病院  Iinuma 339m to the hospital
飯沼病院まで339m
 Same specifications photos (Other introspection)
同仕様写真(その他内観)
 254m to North Point clinic
北角診療所まで254m
 Same specifications photos (Other introspection)
同仕様写真(その他内観)
Supermarketスーパー  309m to Tobu Store Co., Ltd. Maeno-cho shop
東武ストア 前野町店まで309m
 Rendering (introspection)
完成予想図(内観)
 Super Santoku Until Tokiwadai shop 303m
スーパー三徳 ときわ台店まで303m
 Rendering (introspection)
完成予想図(内観)
Streets around周辺の街並み  Tokiwadai Baptist Church University Tokiwadai Megumi 335m to kindergarten
常盤台バプテスト教会附属 ときわ台めぐみ幼稚園まで335m
 Rendering (introspection)
完成予想図(内観)
Location
|