New Homes » Kanto » Tokyo » Itabashi
 
| | Itabashi-ku, Tokyo 東京都板橋区 |
| Tobu Tojo Line "Narimasu" walk 11 minutes 東武東上線「成増」歩11分 |
| Year Available, Parking two Allowed, LDK18 tatami mats or more, System kitchen, Bathroom Dryer, Yang per good, All room storage, A quiet residential area, Around traffic fewer, Face-to-face kitchen, Toilet 2 places, Two faces or more server 年内入居可、駐車2台可、LDK18畳以上、システムキッチン、浴室乾燥機、陽当り良好、全居室収納、閑静な住宅地、周辺交通量少なめ、対面式キッチン、トイレ2ヶ所、2面以上バ |
Features pickup 特徴ピックアップ | | Year Available / Parking two Allowed / LDK18 tatami mats or more / System kitchen / Bathroom Dryer / Yang per good / All room storage / A quiet residential area / Around traffic fewer / Face-to-face kitchen / Toilet 2 places / 2 or more sides balcony / Warm water washing toilet seat / The window in the bathroom / TV monitor interphone / Ventilation good / Three-story or more / City gas / Storeroom 年内入居可 /駐車2台可 /LDK18畳以上 /システムキッチン /浴室乾燥機 /陽当り良好 /全居室収納 /閑静な住宅地 /周辺交通量少なめ /対面式キッチン /トイレ2ヶ所 /2面以上バルコニー /温水洗浄便座 /浴室に窓 /TVモニタ付インターホン /通風良好 /3階建以上 /都市ガス /納戸 | Price 価格 | | 49,800,000 yen 4980万円 | Floor plan 間取り | | 3LDK + S (storeroom) 3LDK+S(納戸) | Units sold 販売戸数 | | 1 units 1戸 | Land area 土地面積 | | 89.3 sq m 89.3m2 | Building area 建物面積 | | 104.74 sq m 104.74m2 | Driveway burden-road 私道負担・道路 | | Nothing, Northeast 4.5m width 無、北東4.5m幅 | Completion date 完成時期(築年月) | | December 2013 2013年12月 | Address 住所 | | Itabashi-ku, Tokyo Akatsuka 4 東京都板橋区赤塚4 | Traffic 交通 | | Tobu Tojo Line "Narimasu" walk 11 minutes 東武東上線「成増」歩11分
| Contact お問い合せ先 | | TEL: 0800-603-1287 [Toll free] mobile phone ・ Also available from PHS Caller ID is not notified Please contact the "saw SUUMO (Sumo)" If it does not lead, If the real estate company TEL:0800-603-1287【通話料無料】携帯電話・PHSからもご利用いただけます 発信者番号は通知されません 「SUUMO(スーモ)を見た」と問い合わせください つながらない方、不動産会社の方は
| Building coverage, floor area ratio 建ぺい率・容積率 | | 60% ・ 180% 60%・180% | Time residents 入居時期 | | January 2014 2014年1月 | Land of the right form 土地の権利形態 | | Ownership 所有権 | Structure and method of construction 構造・工法 | | Wooden three-story 木造3階建 | Use district 用途地域 | | One middle and high 1種中高 | Other limitations その他制限事項 | | Quasi-fire zones 準防火地域 | Overview and notices その他概要・特記事項 | | Facilities: Public Water Supply, This sewage, City gas, Building confirmation number: No. 13UDI1S Ken 01361, Parking: car space 設備:公営水道、本下水、都市ガス、建築確認番号:第13UDI1S建01361号、駐車場:カースペース | Company profile 会社概要 | | <Mediation> Minister of Land, Infrastructure and Transport (1) No. 007428 (Corporation) Prefecture Building Lots and Buildings Transaction Business Association (Corporation) metropolitan area real estate Fair Trade Council member Century 21 (Ltd.) Fukushima construction Itabashi office Yubinbango174-0076 Itabashi-ku, Tokyo Kamiitabashi 2-40-10 <仲介>国土交通大臣(1)第007428号(公社)埼玉県宅地建物取引業協会会員 (公社)首都圏不動産公正取引協議会加盟センチュリー21(株)フクシマ建設板橋営業所〒174-0076 東京都板橋区上板橋2-40-10 |
 Local appearance photo
現地外観写真
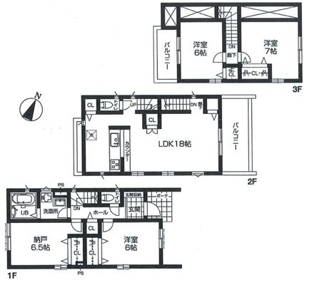
Floor plan間取り図  49,800,000 yen, 3LDK + S (storeroom), Land area 89.3 sq m , Building area 104.74 sq m
4980万円、3LDK+S(納戸)、土地面積89.3m2、建物面積104.74m2
 Local photos, including front road
前面道路含む現地写真
 Local appearance photo
現地外観写真
Location
|