New Homes » Kanto » Tokyo » Itabashi
 
| | Itabashi-ku, Tokyo 東京都板橋区 |
| Tokyo Metro Yurakucho Line "subway Akatsuka" walk 10 minutes 東京メトロ有楽町線「地下鉄赤塚」歩10分 |
Features pickup 特徴ピックアップ | | Design house performance with evaluation / Long-term high-quality housing / Corresponding to the flat-35S / Vibration Control ・ Seismic isolation ・ Earthquake resistant / 2 along the line more accessible / System kitchen / Bathroom Dryer / All room storage / Siemens south road / LDK15 tatami mats or more / Japanese-style room / Washbasin with shower / Face-to-face kitchen / Barrier-free / 2-story / Warm water washing toilet seat / Underfloor Storage / TV monitor interphone / Dish washing dryer / Walk-in closet / City gas / All rooms are two-sided lighting / Floor heating 設計住宅性能評価付 /長期優良住宅 /フラット35Sに対応 /制震・免震・耐震 /2沿線以上利用可 /システムキッチン /浴室乾燥機 /全居室収納 /南側道路面す /LDK15畳以上 /和室 /シャワー付洗面台 /対面式キッチン /バリアフリー /2階建 /温水洗浄便座 /床下収納 /TVモニタ付インターホン /食器洗乾燥機 /ウォークインクロゼット /都市ガス /全室2面採光 /床暖房 | Price 価格 | | 43,800,000 yen ~ 53,800,000 yen 4380万円 ~ 5380万円 | Floor plan 間取り | | 3LDK ・ 4LDK 3LDK・4LDK | Units sold 販売戸数 | | 4 units 4戸 | Total units 総戸数 | | 5 units 5戸 | Land area 土地面積 | | 100.09 sq m ~ 104.27 sq m (measured) 100.09m2 ~ 104.27m2(実測) | Building area 建物面積 | | 82.8 sq m ~ 95.23 sq m (measured) 82.8m2 ~ 95.23m2(実測) | Driveway burden-road 私道負担・道路 | | Road width: 4m 道路幅:4m | Completion date 完成時期(築年月) | | Mid-January 2014 2014年1月中旬予定 | Address 住所 | | Itabashi-ku, Tokyo Akatsuka 2 東京都板橋区赤塚2 | Traffic 交通 | | Tokyo Metro Yurakucho Line "subway Akatsuka" walk 10 minutes Tobu Tojo Line "under Akatsuka" walk 8 minutes Tobu Tojo Line "Narimasu" walk 13 minutes 東京メトロ有楽町線「地下鉄赤塚」歩10分 東武東上線「下赤塚」歩8分 東武東上線「成増」歩13分
| Related links 関連リンク | | [Related Sites of this company] 【この会社の関連サイト】 | Contact お問い合せ先 | | TEL: 0800-603-9678 [Toll free] mobile phone ・ Also available from PHS Caller ID is not notified Please contact the "saw SUUMO (Sumo)" If it does not lead, If the real estate company TEL:0800-603-9678【通話料無料】携帯電話・PHSからもご利用いただけます 発信者番号は通知されません 「SUUMO(スーモ)を見た」と問い合わせください つながらない方、不動産会社の方は
| Building coverage, floor area ratio 建ぺい率・容積率 | | Kenpei rate: 60%, Volume ratio: 200% 建ペい率:60%、容積率:200% | Time residents 入居時期 | | Consultation 相談 | Land of the right form 土地の権利形態 | | Ownership 所有権 | Structure and method of construction 構造・工法 | | Wooden 2-story 木造2階建 | Use district 用途地域 | | One middle and high 1種中高 | Land category 地目 | | Residential land 宅地 | Other limitations その他制限事項 | | Height district, Quasi-fire zones 高度地区、準防火地域 | Overview and notices その他概要・特記事項 | | Building confirmation number: No. H25SHC114157 建築確認番号:第H25SHC114157号 | Company profile 会社概要 | | <Mediation> Governor of Tokyo (1) No. 091285 (Corporation) Tokyo Metropolitan Government Building Lots and Buildings Transaction Business Association (Corporation) metropolitan area real estate Fair Trade Council member realistic Holmes Co. Yubinbango179-0081 Nerima-ku, Tokyo Kitamachi 2-41-6 <仲介>東京都知事(1)第091285号(公社)東京都宅地建物取引業協会会員 (公社)首都圏不動産公正取引協議会加盟リアルホームズ(株)〒179-0081 東京都練馬区北町2-41-6 |
Rendering (appearance)完成予想図(外観)  Rendering
完成予想図
Local appearance photo現地外観写真  Local (11 May 2013) Shooting
現地(2013年11月)撮影
Local photos, including front road前面道路含む現地写真  Local (11 May 2013) Shooting
現地(2013年11月)撮影
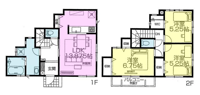
Floor plan間取り図  (1 Building), Price 53,800,000 yen, 4LDK, Land area 100.1 sq m , Building area 95.23 sq m
(1号棟)、価格5380万円、4LDK、土地面積100.1m2、建物面積95.23m2
Primary school小学校  410m until Itabashi Akatsuka Elementary School
板橋区立赤塚小学校まで410m
The entire compartment Figure全体区画図  Compartment figure
区画図
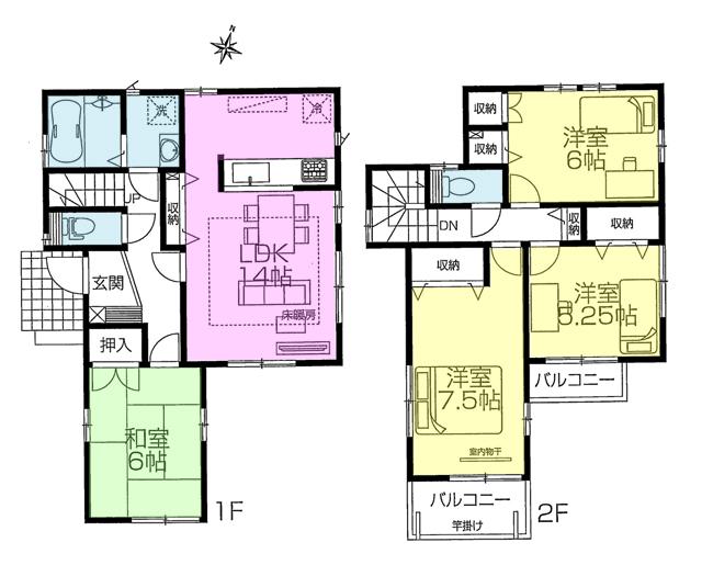
Floor plan間取り図  (Building 2), Price 43,800,000 yen, 3LDK, Land area 104.27 sq m , Building area 82.8 sq m
(2号棟)、価格4380万円、3LDK、土地面積104.27m2、建物面積82.8m2
Junior high school中学校  790m until Itabashi Akatsuka third junior high school
板橋区立赤塚第三中学校まで790m
Floor plan間取り図  (4 Building), Price 52,800,000 yen, 4LDK, Land area 100.09 sq m , Building area 95.22 sq m
(4号棟)、価格5280万円、4LDK、土地面積100.09m2、建物面積95.22m2
Supermarketスーパー  700m to Tobu Store under Akatsuka shop
東武ストア下赤塚店まで700m
Floor plan間取り図  (5 Building), Price 45,800,000 yen, 3LDK, Land area 102.88 sq m , Building area 88.18 sq m
(5号棟)、価格4580万円、3LDK、土地面積102.88m2、建物面積88.18m2
Location
|