New Homes » Kanto » Tokyo » Itabashi
 
| | Itabashi-ku, Tokyo 東京都板橋区 |
| Tobu Tojo Line "Tobunerima" walk 20 minutes 東武東上線「東武練馬」歩20分 |
Features pickup 特徴ピックアップ | | LDK18 tatami mats or more / System kitchen / All room storage / Or more before road 6m / Face-to-face kitchen / Barrier-free / Toilet 2 places / Double-glazing / TV monitor interphone / Three-story or more / Living stairs / City gas / All rooms are two-sided lighting LDK18畳以上 /システムキッチン /全居室収納 /前道6m以上 /対面式キッチン /バリアフリー /トイレ2ヶ所 /複層ガラス /TVモニタ付インターホン /3階建以上 /リビング階段 /都市ガス /全室2面採光 | Price 価格 | | 44,500,000 yen ・ 44,800,000 yen 4450万円・4480万円 | Floor plan 間取り | | 4LDK 4LDK | Units sold 販売戸数 | | 2 units 2戸 | Total units 総戸数 | | 4 units 4戸 | Land area 土地面積 | | 74.9 sq m ・ 79.99 sq m (measured) 74.9m2・79.99m2(実測) | Building area 建物面積 | | 92.32 sq m ・ 94.18 sq m (measured) 92.32m2・94.18m2(実測) | Driveway burden-road 私道負担・道路 | | Road width: 6m ・ 6m 道路幅:6m・6m | Completion date 完成時期(築年月) | | 2013 late October 2013年10月下旬 | Address 住所 | | Itabashi-ku, Tokyo Tokumaru 8 東京都板橋区徳丸8 | Traffic 交通 | | Tobu Tojo Line "Tobunerima" walk 20 minutes Toei Mita Line "Takashimadaira" walk 15 minutes Toei Mita Line "New Takashimadaira" walk 22 minutes 東武東上線「東武練馬」歩20分 都営三田線「高島平」歩15分 都営三田線「新高島平」歩22分
| Related links 関連リンク | | [Related Sites of this company] 【この会社の関連サイト】 | Contact お問い合せ先 | | TEL: 0800-603-9678 [Toll free] mobile phone ・ Also available from PHS Caller ID is not notified Please contact the "saw SUUMO (Sumo)" If it does not lead, If the real estate company TEL:0800-603-9678【通話料無料】携帯電話・PHSからもご利用いただけます 発信者番号は通知されません 「SUUMO(スーモ)を見た」と問い合わせください つながらない方、不動産会社の方は
| Most price range 最多価格帯 | | 44 million yen (2 units) 4400万円台(2戸) | Building coverage, floor area ratio 建ぺい率・容積率 | | Kenpei rate: 60%, Volume ratio: 200% 建ペい率:60%、容積率:200% | Time residents 入居時期 | | Immediate available 即入居可 | Land of the right form 土地の権利形態 | | Ownership 所有権 | Structure and method of construction 構造・工法 | | Wooden three-story 木造3階建 | Use district 用途地域 | | One middle and high 1種中高 | Land category 地目 | | Residential land 宅地 | Other limitations その他制限事項 | | Height district 高度地区 | Company profile 会社概要 | | <Mediation> Governor of Tokyo (1) No. 091285 (Corporation) Tokyo Metropolitan Government Building Lots and Buildings Transaction Business Association (Corporation) metropolitan area real estate Fair Trade Council member realistic Holmes Co. Yubinbango179-0081 Nerima-ku, Tokyo Kitamachi 2-41-6 <仲介>東京都知事(1)第091285号(公社)東京都宅地建物取引業協会会員 (公社)首都圏不動産公正取引協議会加盟リアルホームズ(株)〒179-0081 東京都練馬区北町2-41-6 |
Local appearance photo現地外観写真  Local (11 May 2013) Shooting A ~ B Building
現地(2013年11月)撮影 A ~ B号棟
Livingリビング  Indoor (11 May 2013) Shooting B Building
室内(2013年11月)撮影 B号棟
Kitchenキッチン  Indoor (11 May 2013) Shooting B Building
室内(2013年11月)撮影 B号棟
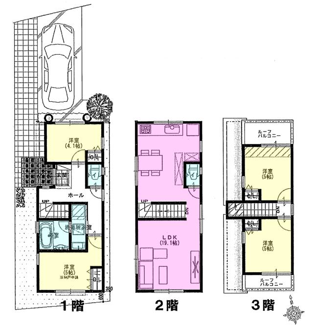
Floor plan間取り図  (A Building), Price 44,500,000 yen, 4LDK, Land area 79.99 sq m , Building area 94.18 sq m
(A号棟)、価格4450万円、4LDK、土地面積79.99m2、建物面積94.18m2
Local appearance photo現地外観写真  Local (11 May 2013) Shooting D Building
現地(2013年11月)撮影 D号棟
Livingリビング  Indoor (11 May 2013) Shooting D Building
室内(2013年11月)撮影 D号棟
Bathroom浴室  Indoor (11 May 2013) Shooting A Building
室内(2013年11月)撮影 A号棟
Kitchenキッチン  Indoor (11 May 2013) Shooting D Building
室内(2013年11月)撮影 D号棟
Wash basin, toilet洗面台・洗面所  Indoor (11 May 2013) Shooting A Building
室内(2013年11月)撮影 A号棟
Receipt収納  Indoor (11 May 2013) Shooting A Building
室内(2013年11月)撮影 A号棟
Toiletトイレ  Indoor (11 May 2013) shooting B Building
室内(2013年11月)撮影 B号棟
The entire compartment Figure全体区画図  Compartment figure
区画図
Floor plan間取り図  (D Building), Price 44,800,000 yen, 4LDK, Land area 74.9 sq m , Building area 92.32 sq m
(D号棟)、価格4480万円、4LDK、土地面積74.9m2、建物面積92.32m2
Bathroom浴室  Indoor (11 May 2013) Shooting B Building
室内(2013年11月)撮影 B号棟
Wash basin, toilet洗面台・洗面所  Indoor (11 May 2013) Shooting B Building
室内(2013年11月)撮影 B号棟
Toiletトイレ  Indoor (11 May 2013) Shooting D Building
室内(2013年11月)撮影 D号棟
Bathroom浴室  Indoor (11 May 2013) Shooting D Building
室内(2013年11月)撮影 D号棟
Wash basin, toilet洗面台・洗面所  Indoor (11 May 2013) Shooting D Building
室内(2013年11月)撮影 D号棟
Location
|