|
|
Itabashi-ku, Tokyo
東京都板橋区
|
|
Tobu Tojo Line "Tokiwadai" walk 9 minutes
東武東上線「ときわ台」歩9分
|
|
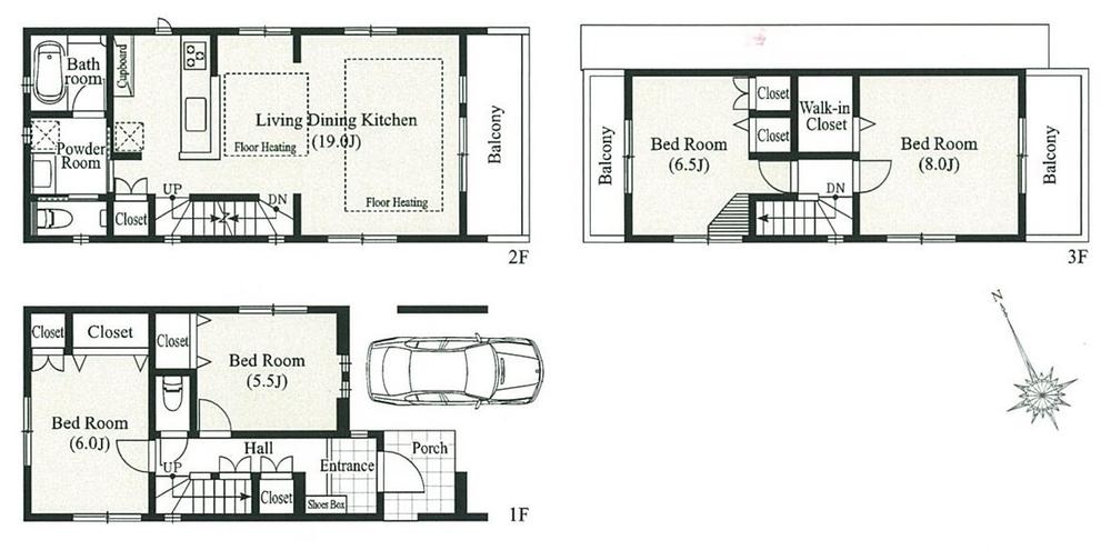
◆ Poor mom also easy parking at the front road about 5.4m road ◆ 19 Pledge to spacious LDK ◆ Popular face-to-face kitchen that can dishes while watching the children play in the living room ◆ Support the housework with dish washing dry machine
◆前面道路約5.4m道路で駐車が苦手ママも楽々◆19帖に広々LDK◆リビングで遊ぶお子様を見守りながらお料理ができる人気の対面式キッチン◆食器洗乾機付きで家事をサポート
|
|
◆ Lush zelkova park is a 1-minute walk ◆ All room with storage, There is also a walk-in closet with plenty of storage capacity ◆ Comfortable floor with heating from the foot of the warm to the LD
◆緑豊かなけやき公園は徒歩1分◆全居室収納付き、たっぷりの収納力を備えたウォークインクローゼットもあります◆LDに足元からポカポカの快適床暖房付き
|
Features pickup 特徴ピックアップ | | LDK18 tatami mats or more / Energy-saving water heaters / System kitchen / Bathroom Dryer / Shaping land / Washbasin with shower / Face-to-face kitchen / Toilet 2 places / Bathroom 1 tsubo or more / 2 or more sides balcony / Warm water washing toilet seat / The window in the bathroom / All living room flooring / Dish washing dryer / Walk-in closet / Water filter / Three-story or more / Living stairs / City gas / Floor heating LDK18畳以上 /省エネ給湯器 /システムキッチン /浴室乾燥機 /整形地 /シャワー付洗面台 /対面式キッチン /トイレ2ヶ所 /浴室1坪以上 /2面以上バルコニー /温水洗浄便座 /浴室に窓 /全居室フローリング /食器洗乾燥機 /ウォークインクロゼット /浄水器 /3階建以上 /リビング階段 /都市ガス /床暖房 |
Price 価格 | | 57,800,000 yen 5780万円 |
Floor plan 間取り | | 4LDK 4LDK |
Units sold 販売戸数 | | 2 units 2戸 |
Total units 総戸数 | | 2 units 2戸 |
Land area 土地面積 | | 75.24 sq m (22.75 tsubo) (measured) 75.24m2(22.75坪)(実測) |
Building area 建物面積 | | 105.7 sq m (31.97 tsubo) (measured) 105.7m2(31.97坪)(実測) |
Driveway burden-road 私道負担・道路 | | Road width: 5.4m, Asphaltic pavement 道路幅:5.4m、アスファルト舗装 |
Completion date 完成時期(築年月) | | March 2014 schedule 2014年3月予定 |
Address 住所 | | Itabashi-ku, Tokyo Maeno-cho 2-1-17 東京都板橋区前野町2-1-17 |
Traffic 交通 | | Tobu Tojo Line "Tokiwadai" walk 9 minutes 東武東上線「ときわ台」歩9分
|
Related links 関連リンク | | [Related Sites of this company] 【この会社の関連サイト】 |
Contact お問い合せ先 | | TEL: 0800-603-9355 [Toll free] mobile phone ・ Also available from PHS Caller ID is not notified Please contact the "saw SUUMO (Sumo)" If it does not lead, If the real estate company TEL:0800-603-9355【通話料無料】携帯電話・PHSからもご利用いただけます 発信者番号は通知されません 「SUUMO(スーモ)を見た」と問い合わせください つながらない方、不動産会社の方は
|
Building coverage, floor area ratio 建ぺい率・容積率 | | Building coverage: 60%, Volume ratio: 200% 建ぺい率:60%、容積率:200% |
Time residents 入居時期 | | Consultation 相談 |
Land of the right form 土地の権利形態 | | Ownership 所有権 |
Use district 用途地域 | | One middle and high 1種中高 |
Land category 地目 | | Residential land 宅地 |
Overview and notices その他概要・特記事項 | | Building confirmation number: 02258 建築確認番号:02258 |
Company profile 会社概要 | | <Seller> Governor of Tokyo (2) No. 083982 (Ltd.) Fine Home Yubinbango179-0075 Nerima-ku, Tokyo Takamatsu 2-13-4 <売主>東京都知事(2)第083982号(株)ファインホーム〒179-0075 東京都練馬区高松2-13-4 |