New Homes » Kanto » Tokyo » Itabashi
 
| | Itabashi-ku, Tokyo 東京都板橋区 |
| Tokyo Metro Yurakucho Line "Kanamecho" walk 15 minutes 東京メトロ有楽町線「要町」歩15分 |
Features pickup 特徴ピックアップ | | 2 along the line more accessible / System kitchen / Washbasin with shower / Face-to-face kitchen / Barrier-free / Double-glazing / Warm water washing toilet seat / TV monitor interphone / Water filter / Three-story or more / Living stairs / All rooms are two-sided lighting 2沿線以上利用可 /システムキッチン /シャワー付洗面台 /対面式キッチン /バリアフリー /複層ガラス /温水洗浄便座 /TVモニタ付インターホン /浄水器 /3階建以上 /リビング階段 /全室2面採光 | Price 価格 | | 43,800,000 yen ~ 48,800,000 yen 4380万円 ~ 4880万円 | Floor plan 間取り | | 1LDK + 2S (storeroom) ~ 3LDK 1LDK+2S(納戸) ~ 3LDK | Units sold 販売戸数 | | 5 units 5戸 | Total units 総戸数 | | 6 units 6戸 | Land area 土地面積 | | 45.11 sq m ~ 48.83 sq m (measured) 45.11m2 ~ 48.83m2(実測) | Building area 建物面積 | | 71.28 sq m ~ 86.4 sq m (measured) 71.28m2 ~ 86.4m2(実測) | Driveway burden-road 私道負担・道路 | | Road width: 4m, Position designated road Equity of 6 minutes 1 道路幅:4m、位置指定道路 持分6分の1 | Completion date 完成時期(築年月) | | February 2014 early schedule 2014年2月上旬予定 | Address 住所 | | Itabashi-ku, Tokyo Nakamaru-cho 東京都板橋区中丸町 | Traffic 交通 | | Tokyo Metro Yurakucho Line "Kanamecho" walk 15 minutes Tobu Tojo Line "Oyama" walk 8 minutes Toei Mita Line "Itabashikuyakushomae" walk 20 minutes 東京メトロ有楽町線「要町」歩15分 東武東上線「大山」歩8分 都営三田線「板橋区役所前」歩20分
| Related links 関連リンク | | [Related Sites of this company] 【この会社の関連サイト】 | Person in charge 担当者より | | Rep Maeda Hiroaki Age: 20 Daigyokai Experience: Please tell us by all means the hopes and dreams for the three-year housing. Made to your feelings, We will help you find housing. Peace of mind ・ We will strive to give you trust. Please feel free to contact us. 担当者前田 浩章年齢:20代業界経験:3年住宅に関する夢や希望を是非お聞かせ下さい。お客様の気持ちになって、住宅探しをお手伝い致します。安心・信頼していただけるように努めております。お気軽にご相談ください。 | Contact お問い合せ先 | | TEL: 0800-603-9678 [Toll free] mobile phone ・ Also available from PHS Caller ID is not notified Please contact the "saw SUUMO (Sumo)" If it does not lead, If the real estate company TEL:0800-603-9678【通話料無料】携帯電話・PHSからもご利用いただけます 発信者番号は通知されません 「SUUMO(スーモ)を見た」と問い合わせください つながらない方、不動産会社の方は
| Building coverage, floor area ratio 建ぺい率・容積率 | | Kenpei rate: 60%, Volume ratio: 300% 建ペい率:60%、容積率:300% | Time residents 入居時期 | | Consultation 相談 | Land of the right form 土地の権利形態 | | Ownership 所有権 | Structure and method of construction 構造・工法 | | Wooden three-story 木造3階建 | Use district 用途地域 | | Semi-industrial 準工業 | Land category 地目 | | Residential land 宅地 | Other limitations その他制限事項 | | Height district, Quasi-fire zones 高度地区、準防火地域 | Overview and notices その他概要・特記事項 | | Contact: Maeda Hiroaki, Building confirmation number: No. 13UDI2S Ken 02068 担当者:前田 浩章、建築確認番号:第13UDI2S建02068号 | Company profile 会社概要 | | <Mediation> Governor of Tokyo (1) No. 091285 (Corporation) Tokyo Metropolitan Government Building Lots and Buildings Transaction Business Association (Corporation) metropolitan area real estate Fair Trade Council member realistic Holmes Co. Yubinbango179-0081 Nerima-ku, Tokyo Kitamachi 2-41-6 <仲介>東京都知事(1)第091285号(公社)東京都宅地建物取引業協会会員 (公社)首都圏不動産公正取引協議会加盟リアルホームズ(株)〒179-0081 東京都練馬区北町2-41-6 |
Rendering (appearance)完成予想図(外観)  (1 Building) Rendering
(1号棟)完成予想図
 (Building 2) Rendering
(2号棟)完成予想図
 (3 Building) Rendering
(3号棟)完成予想図
Floor plan間取り図  (1 Building), Price 48,800,000 yen, 3LDK, Land area 45.97 sq m , Building area 85.85 sq m
(1号棟)、価格4880万円、3LDK、土地面積45.97m2、建物面積85.85m2
Rendering (appearance)完成予想図(外観)  (5 Building) Rendering
(5号棟)完成予想図
Local photos, including front road前面道路含む現地写真  Local (11 May 2013) Shooting
現地(2013年11月)撮影
Primary school小学校  Itabashi 250m to stand Itabashi fifth elementary school
板橋区立板橋第五小学校まで250m
The entire compartment Figure全体区画図  Compartment figure
区画図
Floor plan間取り図  (Building 2), Price 47,800,000 yen, 2LDK+S, Land area 47.08 sq m , Building area 83.42 sq m
(2号棟)、価格4780万円、2LDK+S、土地面積47.08m2、建物面積83.42m2
Rendering (appearance)完成予想図(外観)  (6 Building) Rendering
(6号棟)完成予想図
Junior high school中学校  550m to Itabashi Itabashi second junior high school
板橋区立板橋第二中学校まで550m
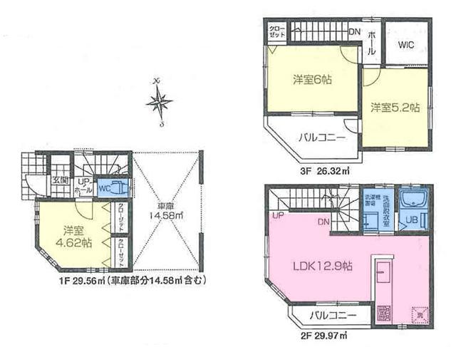
Floor plan間取り図  (3 Building), Price 43,800,000 yen, 2LDK+S, Land area 48.83 sq m , Building area 71.28 sq m
(3号棟)、価格4380万円、2LDK+S、土地面積48.83m2、建物面積71.28m2
Local appearance photo現地外観写真  Local (11 May 2013) Shooting
現地(2013年11月)撮影
Floor plan間取り図  (5 Building), Price 44,800,000 yen, 1LDK+2S, Land area 46.8 sq m , Building area 84.53 sq m
(5号棟)、価格4480万円、1LDK+2S、土地面積46.8m2、建物面積84.53m2
 (6 Building), Price 46,800,000 yen, 3LDK, Land area 45.11 sq m , Building area 86.4 sq m
(6号棟)、価格4680万円、3LDK、土地面積45.11m2、建物面積86.4m2
Location
|