2013September
43,800,000 yen, 4LDK, 104.89 sq m
New Homes » Kanto » Tokyo » Itabashi
 
| | Itabashi-ku, Tokyo 東京都板橋区 |
| Tobu Tojo Line "Narimasu" walk 12 minutes 東武東上線「成増」歩12分 |
| All room is of 6 quires 4LDK! South-facing balcony Built-in garage 居室はすべて6帖の4LDK! 南向きバルコニー ビルトイン車庫 |
| Flat 35S (interest rate Plan B) corresponding property フラット35S(金利Bプラン)対応物件 |
Features pickup 特徴ピックアップ | | Immediate Available / 2 along the line more accessible / System kitchen / Yang per good / Or more before road 6m / Washbasin with shower / Face-to-face kitchen / Toilet 2 places / Otobasu / loft / All room 6 tatami mats or more / Three-story or more / City gas 即入居可 /2沿線以上利用可 /システムキッチン /陽当り良好 /前道6m以上 /シャワー付洗面台 /対面式キッチン /トイレ2ヶ所 /オートバス /ロフト /全居室6畳以上 /3階建以上 /都市ガス | Price 価格 | | 43,800,000 yen 4380万円 | Floor plan 間取り | | 4LDK 4LDK | Units sold 販売戸数 | | 1 units 1戸 | Land area 土地面積 | | 74.24 sq m (registration) 74.24m2(登記) | Building area 建物面積 | | 104.89 sq m 104.89m2 | Driveway burden-road 私道負担・道路 | | Nothing, Southeast 6m width 無、南東6m幅 | Completion date 完成時期(築年月) | | September 2013 2013年9月 | Address 住所 | | Itabashi-ku, Tokyo Narimasu 5 東京都板橋区成増5 | Traffic 交通 | | Tobu Tojo Line "Narimasu" walk 12 minutes Tokyo Metro Yurakucho Line "subway Narimasu" walk 15 minutes 東武東上線「成増」歩12分 東京メトロ有楽町線「地下鉄成増」歩15分
| Related links 関連リンク | | [Related Sites of this company] 【この会社の関連サイト】 | Contact お問い合せ先 | | TEL: 0800-603-1286 [Toll free] mobile phone ・ Also available from PHS Caller ID is not notified Please contact the "saw SUUMO (Sumo)" If it does not lead, If the real estate company TEL:0800-603-1286【通話料無料】携帯電話・PHSからもご利用いただけます 発信者番号は通知されません 「SUUMO(スーモ)を見た」と問い合わせください つながらない方、不動産会社の方は
| Building coverage, floor area ratio 建ぺい率・容積率 | | 60% ・ 200% 60%・200% | Time residents 入居時期 | | Immediate available 即入居可 | Land of the right form 土地の権利形態 | | Ownership 所有権 | Structure and method of construction 構造・工法 | | Wooden three-story 木造3階建 | Use district 用途地域 | | One middle and high 1種中高 | Overview and notices その他概要・特記事項 | | Facilities: Public Water Supply, This sewage, City gas, Building confirmation number: No. 12UDI2K Ken 00995 設備:公営水道、本下水、都市ガス、建築確認番号:第12UDI2K建00995号 | Company profile 会社概要 | | <Mediation> Minister of Land, Infrastructure and Transport (1) No. 007428 (Corporation) Prefecture Building Lots and Buildings Transaction Business Association (Corporation) metropolitan area real estate Fair Trade Council member Century 21 (Ltd.) Fukushima construction Yubinbango352-0001 Saitama Prefecture Niiza northeast 2-37-17 <仲介>国土交通大臣(1)第007428号(公社)埼玉県宅地建物取引業協会会員 (公社)首都圏不動産公正取引協議会加盟センチュリー21(株)フクシマ建設〒352-0001 埼玉県新座市東北2-37-17 |
 Local appearance photo
現地外観写真
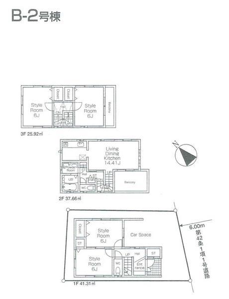
Floor plan間取り図  43,800,000 yen, 4LDK, Land area 74.24 sq m , Building area 104.89 sq m
4380万円、4LDK、土地面積74.24m2、建物面積104.89m2
 Living
リビング
 Bathroom
浴室
 Kitchen
キッチン
 Other
その他
 Other
その他
 Other
その他
 Other
その他
 Other
その他
 Other
その他
 Other
その他
Location
|