New Homes » Kanto » Tokyo » Itabashi
 
| | Itabashi-ku, Tokyo 東京都板橋区 |
| Tobu Tojo Line "Tokiwadai" walk 10 minutes 東武東上線「ときわ台」歩10分 |
| Super close, System kitchen, Bathroom Dryer, Yang per good, All room storage, Flat to the station, A quiet residential area, Washbasin with shower, Bathroom 1 tsubo or more, Warm water washing toilet seat, The window in the bathroom, TV monitor in スーパーが近い、システムキッチン、浴室乾燥機、陽当り良好、全居室収納、駅まで平坦、閑静な住宅地、シャワー付洗面台、浴室1坪以上、温水洗浄便座、浴室に窓、TVモニタ付イン |
| ◎ every weekend, Local sales meeting held in. ◎ Tobu Tojo Line "Tokiwadai" station a 10-minute walk. ◎ a quiet residential area, Yang per good. ◎ Super, Convenience stores, etc., Life convenient facility enhancement. ◎毎週末、現地販売会開催中。◎東武東上線『ときわ台』駅徒歩10分。◎閑静な住宅街、陽当り良好。◎スーパー、コンビニ等、生活便利施設充実。 |
Features pickup 特徴ピックアップ | | Super close / System kitchen / Bathroom Dryer / Yang per good / All room storage / Flat to the station / A quiet residential area / Washbasin with shower / Bathroom 1 tsubo or more / Warm water washing toilet seat / The window in the bathroom / TV monitor interphone / Three-story or more スーパーが近い /システムキッチン /浴室乾燥機 /陽当り良好 /全居室収納 /駅まで平坦 /閑静な住宅地 /シャワー付洗面台 /浴室1坪以上 /温水洗浄便座 /浴室に窓 /TVモニタ付インターホン /3階建以上 | Event information イベント情報 | | Local sales meetings (please visitors to direct local) schedule / Every Saturday and Sunday time / 10:00 ~ 17:00 on weekdays, You can also see at night. Please feel free to contact us. 現地販売会(直接現地へご来場ください)日程/毎週土日時間/10:00 ~ 17:00平日、夜間もご覧いただけます。お気軽にお問い合わせ下さい。 | Price 価格 | | 44,800,000 yen 4480万円 | Floor plan 間取り | | 4LDK 4LDK | Units sold 販売戸数 | | 1 units 1戸 | Land area 土地面積 | | 87.87 sq m 87.87m2 | Building area 建物面積 | | 95.47 sq m 95.47m2 | Driveway burden-road 私道負担・道路 | | Nothing, Northeast 4m width 無、北東4m幅 | Completion date 完成時期(築年月) | | March 2014 2014年3月 | Address 住所 | | Itabashi-ku, Tokyo Maeno-cho, 2-25-1 東京都板橋区前野町2-25-1 | Traffic 交通 | | Tobu Tojo Line "Tokiwadai" walk 10 minutes 東武東上線「ときわ台」歩10分
| Related links 関連リンク | | [Related Sites of this company] 【この会社の関連サイト】 | Person in charge 担当者より | | Person in charge of Jincheng Hiroaki 担当者金城 博明 | Contact お問い合せ先 | | TEL: 0800-603-2893 [Toll free] mobile phone ・ Also available from PHS Caller ID is not notified Please contact the "saw SUUMO (Sumo)" If it does not lead, If the real estate company TEL:0800-603-2893【通話料無料】携帯電話・PHSからもご利用いただけます 発信者番号は通知されません 「SUUMO(スーモ)を見た」と問い合わせください つながらない方、不動産会社の方は
| Building coverage, floor area ratio 建ぺい率・容積率 | | 60% ・ 200% 60%・200% | Time residents 入居時期 | | Consultation 相談 | Land of the right form 土地の権利形態 | | Ownership 所有権 | Structure and method of construction 構造・工法 | | Wooden three-story 木造3階建 | Use district 用途地域 | | Semi-industrial 準工業 | Overview and notices その他概要・特記事項 | | Contact: Jincheng Hiroaki, Facilities: Public Water Supply, This sewage, City gas, Building confirmation number: first 13ABNT03-0159, Parking: Garage 担当者:金城 博明、設備:公営水道、本下水、都市ガス、建築確認番号:第13ABNT03-0159、駐車場:車庫 | Company profile 会社概要 | | <Mediation> Governor of Tokyo (3) No. 077120 (Ltd.) KoHiroshi Yubinbango174-0072 Itabashi-ku, Tokyo Minamitokiwadai 1-37-16 <仲介>東京都知事(3)第077120号(株)江洋〒174-0072 東京都板橋区南常盤台1-37-16 |
 Local appearance photo
現地外観写真
 Rendering (appearance)
完成予想図(外観)
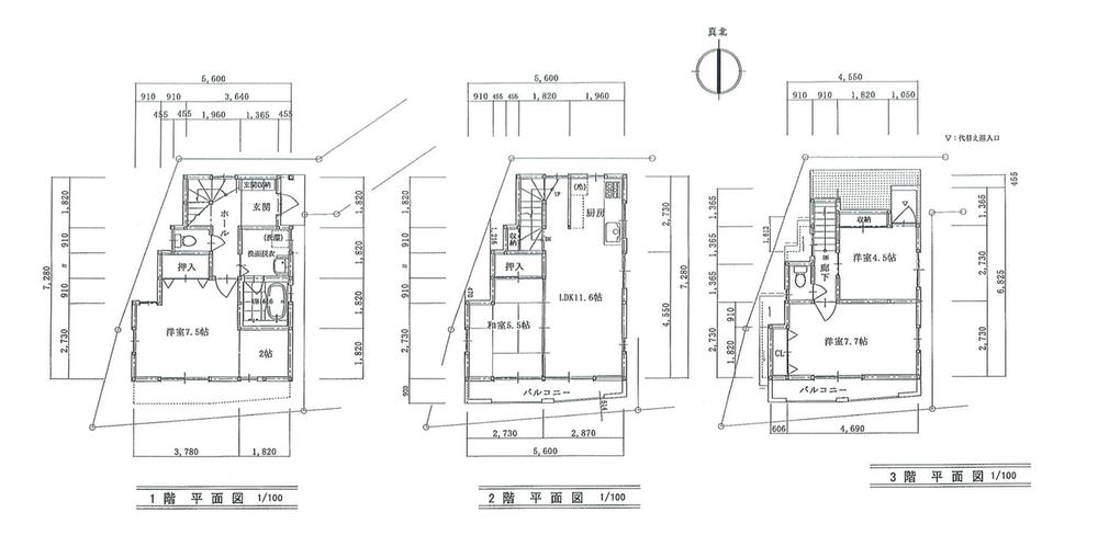
Floor plan間取り図  44,800,000 yen, 4LDK, Land area 87.87 sq m , Building area 95.47 sq m
4480万円、4LDK、土地面積87.87m2、建物面積95.47m2
 Local appearance photo
現地外観写真
 Local photos, including front road
前面道路含む現地写真
Compartment figure区画図  44,800,000 yen, 4LDK, Land area 87.87 sq m , Building area 95.47 sq m
4480万円、4LDK、土地面積87.87m2、建物面積95.47m2
Location
|