New Homes » Kanto » Tokyo » Itabashi
 
| | Itabashi-ku, Tokyo 東京都板橋区 |
| Tobu Tojo Line "Narimasu" walk 12 minutes 東武東上線「成増」歩12分 |
| Large 4LDK of the southeast corner lot. You can life Womotte margin because it is full independence to 4 room for both. 東南角地の大型4LDK。4部屋ともに完全独立ですので余裕を以て生活できます。 |
Price 価格 | | 44,800,000 yen 4480万円 | Floor plan 間取り | | 4LDK 4LDK | Units sold 販売戸数 | | 1 units 1戸 | Total units 総戸数 | | 4 units 4戸 | Land area 土地面積 | | 74.29 sq m (measured) 74.29m2(実測) | Building area 建物面積 | | 104.49 sq m (measured) 104.49m2(実測) | Driveway burden-road 私道負担・道路 | | Nothing, Southeast 6m width, Southwest 4m width 無、南東6m幅、南西4m幅 | Completion date 完成時期(築年月) | | October 2013 2013年10月 | Address 住所 | | Itabashi-ku, Tokyo Narimasu 5 東京都板橋区成増5 | Traffic 交通 | | Tobu Tojo Line "Narimasu" walk 12 minutes Tokyo Metro Yurakucho Line "subway Narimasu" walk 15 minutes 東武東上線「成増」歩12分 東京メトロ有楽町線「地下鉄成増」歩15分
| Contact お問い合せ先 | | TEL: 0800-603-0390 [Toll free] mobile phone ・ Also available from PHS Caller ID is not notified Please contact the "saw SUUMO (Sumo)" If it does not lead, If the real estate company TEL:0800-603-0390【通話料無料】携帯電話・PHSからもご利用いただけます 発信者番号は通知されません 「SUUMO(スーモ)を見た」と問い合わせください つながらない方、不動産会社の方は
| Building coverage, floor area ratio 建ぺい率・容積率 | | 60% ・ 200% 60%・200% | Time residents 入居時期 | | Consultation 相談 | Land of the right form 土地の権利形態 | | Ownership 所有権 | Structure and method of construction 構造・工法 | | Wooden three-story 木造3階建 | Use district 用途地域 | | One middle and high 1種中高 | Overview and notices その他概要・特記事項 | | Facilities: Public Water Supply, This sewage, City gas, Building confirmation number: first 12UDI2K Ken 00994, Parking: car space 設備:公営水道、本下水、都市ガス、建築確認番号:第12UDI2K建00994、駐車場:カースペース | Company profile 会社概要 | | <Mediation> Governor of Tokyo (4) No. 075540 (Corporation) Tokyo Metropolitan Government Building Lots and Buildings Transaction Business Association (Corporation) metropolitan area real estate Fair Trade Council member Daiei House Industry Co., Ltd. Yubinbango175-0094 Itabashi-ku, Tokyo Narimasu 1-14-14 <仲介>東京都知事(4)第075540号(公社)東京都宅地建物取引業協会会員 (公社)首都圏不動産公正取引協議会加盟ダイエーハウス工業(株)〒175-0094 東京都板橋区成増1-14-14 |
 Local appearance photo
現地外観写真
 Local photos, including front road
前面道路含む現地写真
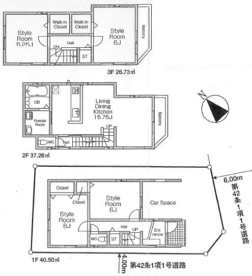
Floor plan間取り図  44,800,000 yen, 4LDK, Land area 74.29 sq m , Building area 104.49 sq m
4480万円、4LDK、土地面積74.29m2、建物面積104.49m2
 Living
リビング
 Bathroom
浴室
 Kitchen
キッチン
 Non-living room
リビング以外の居室
 Entrance
玄関
 Wash basin, toilet
洗面台・洗面所
 Receipt
収納
 Toilet
トイレ
 View photos from the dwelling unit
住戸からの眺望写真
 Kitchen
キッチン
 Non-living room
リビング以外の居室
 Entrance
玄関
 Non-living room
リビング以外の居室
 Non-living room
リビング以外の居室
Location
|