New Homes » Kanto » Tokyo » Itabashi
 
| | Itabashi-ku, Tokyo 東京都板橋区 |
| Tobu Tojo Line "Narimasu" walk 18 minutes 東武東上線「成増」歩18分 |
| Pre-ground survey, 2 along the line more accessible, System kitchen, Bathroom Dryer, LDK15 tatami mats or more, Or more before road 6m, It is close to the city, Facing south, All room storage, A quiet residential area, Shaping land, Washbasin with shower 地盤調査済、2沿線以上利用可、システムキッチン、浴室乾燥機、LDK15畳以上、前道6m以上、市街地が近い、南向き、全居室収納、閑静な住宅地、整形地、シャワー付洗面台 |
| ■ Performance and reliability of its founding 27 years. We offer information in close contact with the community! ■ Guidance is possible pick-up! Please feel free to contact us! ◇ 17.8 Pledge of spacious living, Interior color selection is possible when it was popular open systems kitchen ◇ now! ■創業27年の実績と信頼。地域に密着した情報をご提案致します!■ご案内送迎可能です!お気軽にお問い合わせください!◇17.8帖の広々リビング、人気のオープンシステムキッチン◇今でしたら内装カラーセレクト可能です! |
Features pickup 特徴ピックアップ | | Pre-ground survey / 2 along the line more accessible / It is close to the city / Facing south / System kitchen / Bathroom Dryer / All room storage / A quiet residential area / LDK15 tatami mats or more / Or more before road 6m / Shaping land / Washbasin with shower / Face-to-face kitchen / Toilet 2 places / Bathroom 1 tsubo or more / 2 or more sides balcony / South balcony / Warm water washing toilet seat / The window in the bathroom / Atrium / TV monitor interphone / Three-story or more / Living stairs / City gas / All rooms are two-sided lighting 地盤調査済 /2沿線以上利用可 /市街地が近い /南向き /システムキッチン /浴室乾燥機 /全居室収納 /閑静な住宅地 /LDK15畳以上 /前道6m以上 /整形地 /シャワー付洗面台 /対面式キッチン /トイレ2ヶ所 /浴室1坪以上 /2面以上バルコニー /南面バルコニー /温水洗浄便座 /浴室に窓 /吹抜け /TVモニタ付インターホン /3階建以上 /リビング階段 /都市ガス /全室2面採光 | Price 価格 | | 35,800,000 yen 3580万円 | Floor plan 間取り | | 3LDK 3LDK | Units sold 販売戸数 | | 2 units 2戸 | Total units 総戸数 | | 2 units 2戸 | Land area 土地面積 | | 58.39 sq m 58.39m2 | Building area 建物面積 | | 98.28 sq m ~ 99.49 sq m 98.28m2 ~ 99.49m2 | Driveway burden-road 私道負担・道路 | | North side road 12m 北側公道12m | Completion date 完成時期(築年月) | | February 2014 schedule 2014年2月予定 | Address 住所 | | Itabashi-ku, Tokyo Akatsuka 8 東京都板橋区赤塚8 | Traffic 交通 | | Tobu Tojo Line "Narimasu" walk 18 minutes Tokyo Metro Yurakucho Line "subway Narimasu" walk 20 minutes Tokyo Metro Fukutoshin Line "subway Narimasu" walk 20 minutes 東武東上線「成増」歩18分 東京メトロ有楽町線「地下鉄成増」歩20分 東京メトロ副都心線「地下鉄成増」歩20分
| Related links 関連リンク | | [Related Sites of this company] 【この会社の関連サイト】 | Contact お問い合せ先 | | TEL: 0800-808-5704 [Toll free] mobile phone ・ Also available from PHS Caller ID is not notified Please contact the "saw SUUMO (Sumo)" If it does not lead, If the real estate company TEL:0800-808-5704【通話料無料】携帯電話・PHSからもご利用いただけます 発信者番号は通知されません 「SUUMO(スーモ)を見た」と問い合わせください つながらない方、不動産会社の方は
| Building coverage, floor area ratio 建ぺい率・容積率 | | Kenpei rate: 60%, Volume ratio: 200% 建ペい率:60%、容積率:200% | Time residents 入居時期 | | March 2014 schedule 2014年3月予定 | Land of the right form 土地の権利形態 | | Ownership 所有権 | Structure and method of construction 構造・工法 | | Wooden three-story 木造3階建 | Use district 用途地域 | | One middle and high 1種中高 | Land category 地目 | | Residential land 宅地 | Other limitations その他制限事項 | | Quasi-fire zones 準防火地域 | Overview and notices その他概要・特記事項 | | Building confirmation number: 1 建築確認番号:1 | Company profile 会社概要 | | <Mediation> Governor of Tokyo (1) No. 093720 (Corporation) All Japan Real Estate Association (Corporation) metropolitan area real estate Fair Trade Council member Co., Ltd. Nissei housing Yubinbango175-0093 Itabashi-ku, Tokyo Akatsukashin cho 1-24-2 <仲介>東京都知事(1)第093720号(公社)全日本不動産協会会員 (公社)首都圏不動産公正取引協議会加盟(株)日生ハウジング〒175-0093 東京都板橋区赤塚新町1-24-2 |
 Local appearance photo
現地外観写真
 Local appearance photo
現地外観写真
 Local photos, including front road
前面道路含む現地写真
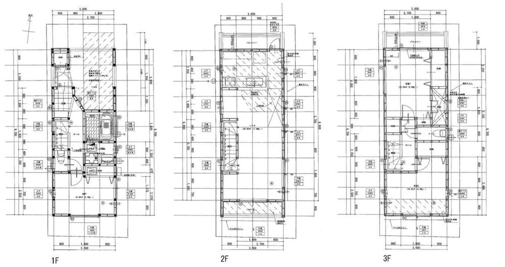
Floor plan間取り図  (A Building), Price 35,800,000 yen, 3LDK, Land area 58.39 sq m , Building area 99.49 sq m
(A号棟)、価格3580万円、3LDK、土地面積58.39m2、建物面積99.49m2
 The entire compartment Figure
全体区画図
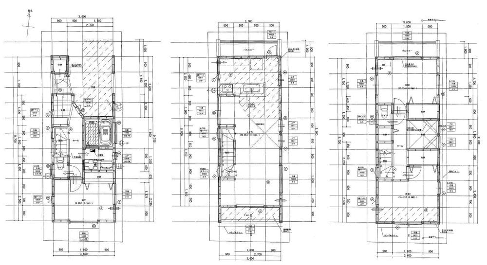
 (B Building), Price 35,800,000 yen, 3LDK, Land area 58.39 sq m , Building area 98.28 sq m
(B号棟)、価格3580万円、3LDK、土地面積58.39m2、建物面積98.28m2
Location
|