New Homes » Kanto » Tokyo » Itabashi
 
| | Itabashi-ku, Tokyo 東京都板橋区 |
| Tobu Tojo Line "Tokiwadai" walk 10 minutes 東武東上線「ときわ台」歩10分 |
| Light full design house nestled in Tokiwadai ときわ台に佇む光あふれるデザイン住宅 |
| Yes Tobu Tojo Line "Tokiwadai" station A 10-minute walk Yes Flat 35S corresponding housing Yes next-generation security system Yes gas floor heating Yes cupboard (cupboard) 〇_IH cooking heater Yes dishwasher dryer Yes bathroom ventilation heating dryer Yes bathroom TV Yes all room lighting fixture 〇東武東上線「ときわ台」駅 徒歩10分〇フラット35S対応住宅〇次世代セキュリティーシステム〇ガス床暖房〇食器棚(カップボード)〇IHクッキングヒーター〇食器洗浄乾燥機〇浴室換気暖房乾燥機〇浴室テレビ〇全居室照明器具 |
Features pickup 特徴ピックアップ | | Corresponding to the flat-35S / Pre-ground survey / Immediate Available / 2 along the line more accessible / Super close / Facing south / Bathroom Dryer / Yang per good / A quiet residential area / LDK15 tatami mats or more / Around traffic fewer / Shaping land / Face-to-face kitchen / Wide balcony / Bathroom 1 tsubo or more / Double-glazing / TV with bathroom / The window in the bathroom / Leafy residential area / Ventilation good / IH cooking heater / Dish washing dryer / Water filter / Three-story or more / Living stairs / City gas / All rooms are two-sided lighting / Flat terrain / Floor heating フラット35Sに対応 /地盤調査済 /即入居可 /2沿線以上利用可 /スーパーが近い /南向き /浴室乾燥機 /陽当り良好 /閑静な住宅地 /LDK15畳以上 /周辺交通量少なめ /整形地 /対面式キッチン /ワイドバルコニー /浴室1坪以上 /複層ガラス /TV付浴室 /浴室に窓 /緑豊かな住宅地 /通風良好 /IHクッキングヒーター /食器洗乾燥機 /浄水器 /3階建以上 /リビング階段 /都市ガス /全室2面採光 /平坦地 /床暖房 | Price 価格 | | 47,500,000 yen 4750万円 | Floor plan 間取り | | 4LDK 4LDK | Units sold 販売戸数 | | 1 units 1戸 | Total units 総戸数 | | 6 units 6戸 | Land area 土地面積 | | 63.8 sq m (19.29 tsubo) (measured) 63.8m2(19.29坪)(実測) | Building area 建物面積 | | 99.9 sq m (30.21 tsubo) (Registration) 99.9m2(30.21坪)(登記) | Driveway burden-road 私道負担・道路 | | Nothing, West 4.5m width (contact the road width 4.5m) 無、西4.5m幅(接道幅4.5m) | Completion date 完成時期(築年月) | | October 2013 2013年10月 | Address 住所 | | Itabashi-ku, Tokyo Tohshin 2 東京都板橋区東新町2 | Traffic 交通 | | Tobu Tojo Line "Tokiwadai" walk 10 minutes Tobu Tojo Line "Kamiitabashi" walk 17 minutes Tokyo Metro Yurakucho Line "Kotake Mukaihara" walk 22 minutes 東武東上線「ときわ台」歩10分 東武東上線「上板橋」歩17分 東京メトロ有楽町線「小竹向原」歩22分
| Person in charge 担当者より | | Rep Takami Kurokawa 担当者黒川孝海 | Contact お問い合せ先 | | TEL: 0800-603-3448 [Toll free] mobile phone ・ Also available from PHS Caller ID is not notified Please contact the "saw SUUMO (Sumo)" If it does not lead, If the real estate company TEL:0800-603-3448【通話料無料】携帯電話・PHSからもご利用いただけます 発信者番号は通知されません 「SUUMO(スーモ)を見た」と問い合わせください つながらない方、不動産会社の方は
| Building coverage, floor area ratio 建ぺい率・容積率 | | 60% ・ 180% 60%・180% | Time residents 入居時期 | | Immediate available 即入居可 | Land of the right form 土地の権利形態 | | Ownership 所有権 | Structure and method of construction 構造・工法 | | Wooden three-story 木造3階建 | Use district 用途地域 | | One middle and high 1種中高 | Overview and notices その他概要・特記事項 | | Contact: Takami Kurokawa, Facilities: Public Water Supply, This sewage, City gas, Building confirmation number: H25SHC100942, Parking: car space 担当者:黒川孝海、設備:公営水道、本下水、都市ガス、建築確認番号:H25SHC100942、駐車場:カースペース | Company profile 会社概要 | | <Mediation> Governor of Tokyo (2) No. 082920 (Corporation) Tokyo Metropolitan Government Building Lots and Buildings Transaction Business Association (Corporation) metropolitan area real estate Fair Trade Council member am tick (Ltd.) Kichijoji headquarters sales department Yubinbango180-0002 Musashino-shi, Tokyo Kichijojihigashi cho 1-19-21 <仲介>東京都知事(2)第082920号(公社)東京都宅地建物取引業協会会員 (公社)首都圏不動産公正取引協議会加盟アムティック(株)吉祥寺本社営業部〒180-0002 東京都武蔵野市吉祥寺東町1-19-21 |
 Local appearance photo
現地外観写真
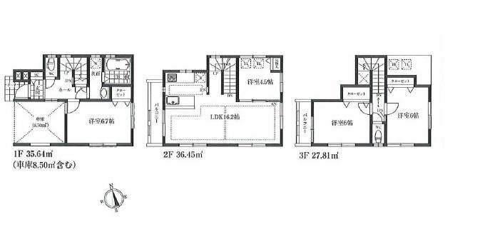
Floor plan間取り図  47,500,000 yen, 4LDK, Land area 63.8 sq m , Building area 99.9 sq m
4750万円、4LDK、土地面積63.8m2、建物面積99.9m2
 Living
リビング
 Local appearance photo
現地外観写真
 Living
リビング
 Bathroom
浴室
 Kitchen
キッチン
 Wash basin, toilet
洗面台・洗面所
 Local photos, including front road
前面道路含む現地写真
Kindergarten ・ Nursery幼稚園・保育園  Tokiwadai Baptist Church University Tokiwadai Megumi 1050m to kindergarten
常盤台バプテスト教会附属 ときわ台めぐみ幼稚園まで1050m
 Rendering (appearance)
完成予想図(外観)
 Living
リビング
 Wakatake Kanae 1126m to nursery school
わかたけかなえ保育園まで1126m
 Living
リビング
Primary school小学校  Ward Tokiwadai until elementary school 1156m
区立常盤台小学校まで1156m
Junior high school中学校  Municipal Kamiitabashi to the third junior high school 1042m
区立上板橋第三中学校まで1042m
Park公園  925m to ward Mizukubo park
区立水久保公園まで925m
Other Environmental Photoその他環境写真  958m to North Point clinic
北角診療所まで958m
Post office郵便局  867m until Itabashi Tokiwadai three post office
板橋常盤台三郵便局まで867m
Location
|