New Homes » Kanto » Tokyo » Kiyose
 
| | Tokyo Kiyose 東京都清瀬市 |
| Seibu Ikebukuro Line "Kiyose" walk 10 minutes 西武池袋線「清瀬」歩10分 |
| Large balcony on the roof You can also astronomical observation and barbecue. 屋上に大型バルコニー 天体観測やバーベキューもできます。 |
| System kitchen, Bathroom Dryer, Yang per good, All room storage, LDK15 tatami mats or more, Or more before road 6m, Corner lot, Face-to-face kitchen, Wide balcony, Toilet 2 places, Bathroom 1 tsubo or more, South balcony, Double-glazing, Otobasu, Underfloor Storage, The window in the bathroom, TV monitor interphone, Urban neighborhood, Mu front building, Ventilation good, All living room flooring, All rooms are two-sided lighting, roof balcony, Flat terrain, Attic storage システムキッチン、浴室乾燥機、陽当り良好、全居室収納、LDK15畳以上、前道6m以上、角地、対面式キッチン、ワイドバルコニー、トイレ2ヶ所、浴室1坪以上、南面バルコニー、複層ガラス、オートバス、床下収納、浴室に窓、TVモニタ付インターホン、都市近郊、前面棟無、通風良好、全居室フローリング、全室2面採光、ルーフバルコニー、平坦地、屋根裏収納 |
Features pickup 特徴ピックアップ | | Corresponding to the flat-35S / System kitchen / Bathroom Dryer / Yang per good / All room storage / LDK15 tatami mats or more / Or more before road 6m / Corner lot / Face-to-face kitchen / Wide balcony / Toilet 2 places / Bathroom 1 tsubo or more / 2-story / South balcony / Double-glazing / Otobasu / Underfloor Storage / The window in the bathroom / TV monitor interphone / Urban neighborhood / Mu front building / Ventilation good / All living room flooring / Dish washing dryer / Water filter / All rooms are two-sided lighting / roof balcony / Flat terrain / Attic storage フラット35Sに対応 /システムキッチン /浴室乾燥機 /陽当り良好 /全居室収納 /LDK15畳以上 /前道6m以上 /角地 /対面式キッチン /ワイドバルコニー /トイレ2ヶ所 /浴室1坪以上 /2階建 /南面バルコニー /複層ガラス /オートバス /床下収納 /浴室に窓 /TVモニタ付インターホン /都市近郊 /前面棟無 /通風良好 /全居室フローリング /食器洗乾燥機 /浄水器 /全室2面採光 /ルーフバルコニー /平坦地 /屋根裏収納 | Price 価格 | | 29,800,000 yen 2980万円 | Floor plan 間取り | | 3LDK + S (storeroom) 3LDK+S(納戸) | Units sold 販売戸数 | | 1 units 1戸 | Total units 総戸数 | | 1 units 1戸 | Land area 土地面積 | | 68.26 sq m (20.64 tsubo) (Registration) 68.26m2(20.64坪)(登記) | Building area 建物面積 | | 97.68 sq m (29.54 tsubo) (Registration) 97.68m2(29.54坪)(登記) | Driveway burden-road 私道負担・道路 | | Nothing, South 15.8m width, East 4m width 無、南15.8m幅、東4m幅 | Completion date 完成時期(築年月) | | August 2013 2013年8月 | Address 住所 | | Tokyo Kiyose Matsuyama 3 東京都清瀬市松山3 | Traffic 交通 | | Seibu Ikebukuro Line "Kiyose" walk 10 minutes Seibu Ikebukuro Line "Higashi Kurume" walk 30 minutes Seibu Ikebukuro Line "Akitsu" walk 33 minutes 西武池袋線「清瀬」歩10分 西武池袋線「東久留米」歩30分 西武池袋線「秋津」歩33分
| Contact お問い合せ先 | | TEL: 0800-603-1887 [Toll free] mobile phone ・ Also available from PHS Caller ID is not notified Please contact the "saw SUUMO (Sumo)" If it does not lead, If the real estate company TEL:0800-603-1887【通話料無料】携帯電話・PHSからもご利用いただけます 発信者番号は通知されません 「SUUMO(スーモ)を見た」と問い合わせください つながらない方、不動産会社の方は
| Building coverage, floor area ratio 建ぺい率・容積率 | | 70% ・ 200% 70%・200% | Time residents 入居時期 | | Consultation 相談 | Land of the right form 土地の権利形態 | | Ownership 所有権 | Structure and method of construction 構造・工法 | | Wooden 2-story 木造2階建 | Use district 用途地域 | | Two dwellings 2種住居 | Overview and notices その他概要・特記事項 | | Facilities: Public Water Supply, This sewage, Individual LPG, Building confirmation number: 00249, Parking: Garage 設備:公営水道、本下水、個別LPG、建築確認番号:00249、駐車場:車庫 | Company profile 会社概要 | | <Mediation> Minister of Land, Infrastructure and Transport (4) No. 005817 (Corporation) All Japan Real Estate Association (Corporation) metropolitan area real estate Fair Trade Council member (Ltd.) Estate Hakuba Tokorozawa shop sales Division 1 Yubinbango359-1124 Tokorozawa Prefecture Higashi Sumiyoshi 12-23 Hakuba Building <仲介>国土交通大臣(4)第005817号(公社)全日本不動産協会会員 (公社)首都圏不動産公正取引協議会加盟(株)エステート白馬所沢店営業1課〒359-1124 埼玉県所沢市東住吉12-23 白馬ビルディング |
Livingリビング  Local (September 2013) Shooting
現地(2013年9月)撮影
Local appearance photo現地外観写真  Local (September 2013) Shooting
現地(2013年9月)撮影
Rendering (appearance)完成予想図(外観)  Rendering
完成予想図
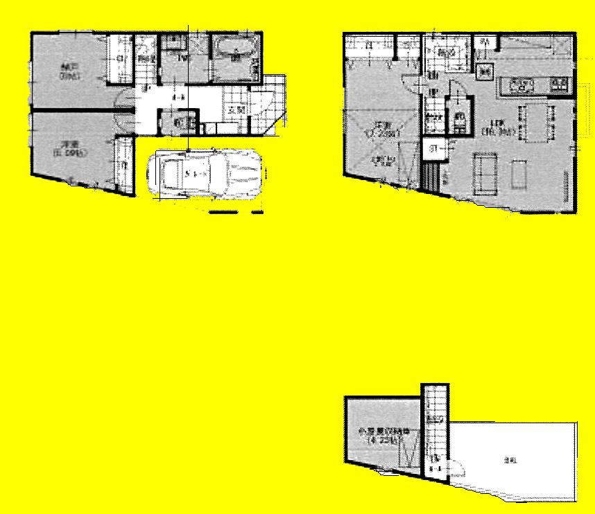
Floor plan間取り図  29,800,000 yen, 3LDK + S (storeroom), Land area 68.26 sq m , Building area 97.68 sq m
2980万円、3LDK+S(納戸)、土地面積68.26m2、建物面積97.68m2
Bathroom浴室  Local (September 2013) Shooting
現地(2013年9月)撮影
Kitchenキッチン  Local (September 2013) Shooting
現地(2013年9月)撮影
Non-living roomリビング以外の居室  Indoor (September 2013) Shooting
室内(2013年9月)撮影
 Construction ・ Construction method ・ specification
構造・工法・仕様
 Other Equipment
その他設備
Balconyバルコニー  Local (September 2013) Shooting
現地(2013年9月)撮影
Park公園  250m to Matsuyama park
松山公園まで250m
 Construction ・ Construction method ・ specification
構造・工法・仕様
 Other Equipment
その他設備
 1200m up to Central Park
中央公園まで1200m
 Construction ・ Construction method ・ specification
構造・工法・仕様
 Other Equipment
その他設備
Shopping centreショッピングセンター  Seiyu until the store 1100m
西友ストアまで1100m
 Cooling and heating ・ Air conditioning
冷暖房・空調設備
Park公園  150m until Nobidome park
野火止公園まで150m
 Other Equipment
その他設備
Primary school小学校  Chapter 7 300m up to elementary school
第7小学校まで300m
Location
|