New Homes » Kanto » Tokyo » Kodaira
 
| | Tokyo Kodaira 東京都小平市 |
| Seibu Kokubunji Line "Takanodai" walk 11 minutes 西武国分寺線「鷹の台」歩11分 |
| South-facing shaping land !! space 2 cars ・ With Grenier !! 南向きの整形地!!スペース2台分・グルニエ付!! |
| Corresponding to the flat-35S, Pre-ground survey, Parking two Allowed, 2 along the line more accessible, Facing south, System kitchen, Bathroom Dryer, Yang per good, All room storage, Flat to the station, A quiet residential area, LDK15 tatami mats or more, Around traffic fewer, Shaping land, Washbasin with shower, Face-to-face kitchen, 3 face lighting, Toilet 2 places, Bathroom 1 tsubo or more, 2-story, South balcony, Double-glazing, Otobasu, Warm water washing toilet seat, Underfloor Storage, The window in the bathroom, Leafy residential area, Mu front building, Ventilation good, All living room flooring, Water filter, Living stairs, City gas, All rooms are two-sided lighting, A large gap between the neighboring house, Flat terrain, Attic storage フラット35Sに対応、地盤調査済、駐車2台可、2沿線以上利用可、南向き、システムキッチン、浴室乾燥機、陽当り良好、全居室収納、駅まで平坦、閑静な住宅地、LDK15畳以上、周辺交通量少なめ、整形地、シャワー付洗面台、対面式キッチン、3面採光、トイレ2ヶ所、浴室1坪以上、2階建、南面バルコニー、複層ガラス、オートバス、温水洗浄便座、床下収納、浴室に窓、緑豊かな住宅地、前面棟無、通風良好、全居室フローリング、浄水器、リビング階段、都市ガス、全室2面採光、隣家との間隔が大きい、平坦地、屋根裏収納 |
Features pickup 特徴ピックアップ | | Corresponding to the flat-35S / Pre-ground survey / Parking two Allowed / 2 along the line more accessible / Facing south / System kitchen / Bathroom Dryer / Yang per good / All room storage / Flat to the station / A quiet residential area / LDK15 tatami mats or more / Around traffic fewer / Shaping land / Washbasin with shower / Face-to-face kitchen / 3 face lighting / Toilet 2 places / Bathroom 1 tsubo or more / 2-story / South balcony / Double-glazing / Otobasu / Warm water washing toilet seat / Underfloor Storage / The window in the bathroom / Leafy residential area / Mu front building / Ventilation good / All living room flooring / Water filter / Living stairs / City gas / All rooms are two-sided lighting / A large gap between the neighboring house / Flat terrain / Attic storage フラット35Sに対応 /地盤調査済 /駐車2台可 /2沿線以上利用可 /南向き /システムキッチン /浴室乾燥機 /陽当り良好 /全居室収納 /駅まで平坦 /閑静な住宅地 /LDK15畳以上 /周辺交通量少なめ /整形地 /シャワー付洗面台 /対面式キッチン /3面採光 /トイレ2ヶ所 /浴室1坪以上 /2階建 /南面バルコニー /複層ガラス /オートバス /温水洗浄便座 /床下収納 /浴室に窓 /緑豊かな住宅地 /前面棟無 /通風良好 /全居室フローリング /浄水器 /リビング階段 /都市ガス /全室2面採光 /隣家との間隔が大きい /平坦地 /屋根裏収納 | Price 価格 | | 39,800,000 yen 3980万円 | Floor plan 間取り | | 3LDK 3LDK | Units sold 販売戸数 | | 1 units 1戸 | Total units 総戸数 | | 1 units 1戸 | Land area 土地面積 | | 102.6 sq m (31.03 square meters) 102.6m2(31.03坪) | Building area 建物面積 | | 79.77 sq m (24.13 square meters) 79.77m2(24.13坪) | Driveway burden-road 私道負担・道路 | | Share interests 270 sq m × (3196 / 27087), East 4m width 共有持分270m2×(3196/27087)、東4m幅 | Completion date 完成時期(築年月) | | January 2014 2014年1月 | Address 住所 | | Tokyo Kodaira Josuihon cho 東京都小平市上水本町1 | Traffic 交通 | | Seibu Kokubunji Line "Takanodai" walk 11 minutes Seibu Kokubunji Line "Koigakubo" walk 14 minutes Seibu Tamako Line "Hitotsubashigakuen" walk 23 minutes 西武国分寺線「鷹の台」歩11分 西武国分寺線「恋ヶ窪」歩14分 西武多摩湖線「一橋学園」歩23分
| Related links 関連リンク | | [Related Sites of this company] 【この会社の関連サイト】 | Person in charge 担当者より | | Person in charge of real-estate and building "child care point of view," Miyazaki Kaori Age: 40 Daigyokai experience: looking for 12 years My Home, I think the people of the majority is a big shopping once in a lifetime. I want to leave with peace of mind because it is such important shopping! We will carry out your proposal with an eye to the future, not just now. 担当者宅建『子育て視点』 宮崎 加織年齢:40代業界経験:12年マイホーム探しは、大多数の方が一生に一度の大きなお買い物になると思います。そんな大事なお買い物だから安心して任せたい!今だけでなく未来を見据えたご提案をさせて頂きます。 | Contact お問い合せ先 | | TEL: 0800-805-3898 [Toll free] mobile phone ・ Also available from PHS Caller ID is not notified Please contact the "saw SUUMO (Sumo)" If it does not lead, If the real estate company TEL:0800-805-3898【通話料無料】携帯電話・PHSからもご利用いただけます 発信者番号は通知されません 「SUUMO(スーモ)を見た」と問い合わせください つながらない方、不動産会社の方は
| Building coverage, floor area ratio 建ぺい率・容積率 | | 40% ・ 80% 40%・80% | Time residents 入居時期 | | January 2014 2014年1月 | Land of the right form 土地の権利形態 | | Ownership 所有権 | Structure and method of construction 構造・工法 | | Wooden 2-story 木造2階建 | Use district 用途地域 | | One low-rise 1種低層 | Overview and notices その他概要・特記事項 | | The person in charge: "Parenting Perspective" Miyazaki Kaori, Facilities: Public Water Supply, This sewage, City gas, Building confirmation number: the H25 building certification No. KBI03817, Parking: car space 担当者:『子育て視点』 宮崎 加織、設備:公営水道、本下水、都市ガス、建築確認番号:第H25確認建築KBI03817号、駐車場:カースペース | Company profile 会社概要 | | <Mediation> Governor of Tokyo (1) No. 095183 (stock) Yutaka Home Plus Yubinbango190-0004 Tokyo Tachikawa Kashiwamachi 4-55-11-101 <仲介>東京都知事(1)第095183号(株)ユタカホームプラス〒190-0004 東京都立川市柏町4-55-11-101 |
Same specifications photos (living)同仕様写真(リビング)  Seller construction cases
売主施工例
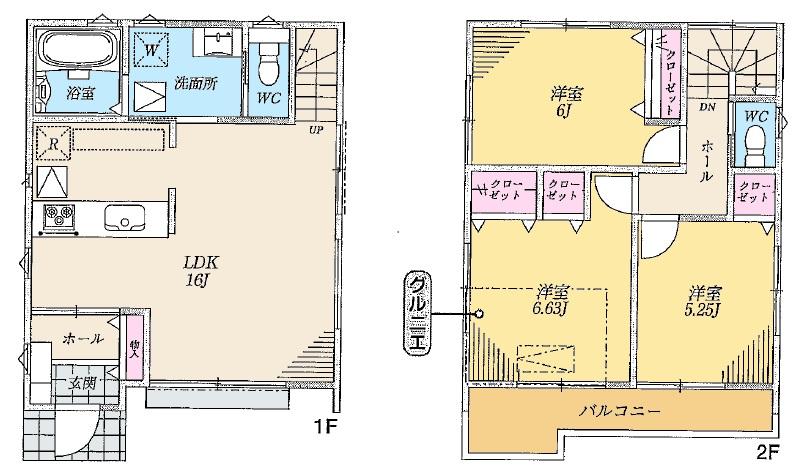
Floor plan間取り図  39,800,000 yen, 3LDK, Land area 102.6 sq m , Building area 79.77 sq m
3980万円、3LDK、土地面積102.6m2、建物面積79.77m2
Local photos, including front road前面道路含む現地写真  Local (11 May 2013) Shooting
現地(2013年11月)撮影
Local appearance photo現地外観写真  Local (11 May 2013) Shooting
現地(2013年11月)撮影
Same specifications photo (bathroom)同仕様写真(浴室)  Seller construction cases
売主施工例
Same specifications photo (kitchen)同仕様写真(キッチン)  Seller construction cases
売主施工例
Supermarketスーパー  Minikopu until Takanodai shop 850m
ミニコープ鷹の台店まで850m
Location
|