New Homes » Kanto » Tokyo » Koganei
 
| | Koganei, Tokyo 東京都小金井市 |
| JR Chuo Line "Musashi Koganei" walk 5 minutes JR中央線「武蔵小金井」歩5分 |
| In recent years by the re-development station, The rising popularity of "Musashi Koganei" station up to a 5-minute walk away. Combines design and practicality "Shintei of Koganei Honcho" 駅再開発により近年、人気急上昇中の「武蔵小金井」駅まで徒歩5分のロケーション。デザイン性と実用性を兼ね備えた『小金井本町の新邸』 |
| ■ The design of the peace of mind ・ Construction (it is 2-story, Structural calculation already) ■ Change can be summarized design along with the family of growth! ■ Building area happy → 110 sq m more than! ■ Lush land, Koganei! Close to also as "Koganei Park" BBQ and walk! ■ Please feel free to contact us. ■安心の設計・施工(2階建ですが、構造計算済み)■家族の成長と共に変化可能な間取設計!■建物面積うれしい→110m2超!■緑豊かな地、小金井!近隣には「小金井公園」BBQやお散歩なども!■お気軽にお問合せ下さい。 |
Features pickup 特徴ピックアップ | | Measures to conserve energy / Corresponding to the flat-35S / Pre-ground survey / Super close / It is close to the city / Bathroom Dryer / Yang per good / A quiet residential area / Around traffic fewer / Shaping land / Face-to-face kitchen / Bathroom 1 tsubo or more / 2-story / 2 or more sides balcony / South balcony / Double-glazing / Nantei / The window in the bathroom / Atrium / Leafy residential area / Ventilation good / Wood deck / Dish washing dryer / Water filter / City gas / All rooms are two-sided lighting / A large gap between the neighboring house / Maintained sidewalk / roof balcony / Floor heating / rooftop 省エネルギー対策 /フラット35Sに対応 /地盤調査済 /スーパーが近い /市街地が近い /浴室乾燥機 /陽当り良好 /閑静な住宅地 /周辺交通量少なめ /整形地 /対面式キッチン /浴室1坪以上 /2階建 /2面以上バルコニー /南面バルコニー /複層ガラス /南庭 /浴室に窓 /吹抜け /緑豊かな住宅地 /通風良好 /ウッドデッキ /食器洗乾燥機 /浄水器 /都市ガス /全室2面採光 /隣家との間隔が大きい /整備された歩道 /ルーフバルコニー /床暖房 /屋上 | Price 価格 | | 63,325,000 yen 6332万5000円 | Floor plan 間取り | | 3LDK 3LDK | Units sold 販売戸数 | | 1 units 1戸 | Land area 土地面積 | | 91.03 sq m (27.53 tsubo) (Registration) 91.03m2(27.53坪)(登記) | Building area 建物面積 | | 112.32 sq m (33.97 tsubo) (Registration), Among the first floor garage 10.26 sq m 112.32m2(33.97坪)(登記)、うち1階車庫10.26m2 | Driveway burden-road 私道負担・道路 | | Share equity 17.03 sq m × (2 / 6), North 4m width (contact the road width 7m) 共有持分17.03m2×(2/6)、北4m幅(接道幅7m) | Completion date 完成時期(築年月) | | December 2014 2014年12月 | Address 住所 | | Koganei, Tokyo Hon 5 東京都小金井市本町5 | Traffic 交通 | | JR Chuo Line "Musashi Koganei" walk 5 minutes JR Chuo Line "Higashikoganei" walk 28 minutes Seibu Shinjuku Line "Hanakoganei" walk 39 minutes JR中央線「武蔵小金井」歩5分 JR中央線「東小金井」歩28分 西武新宿線「花小金井」歩39分
| Person in charge 担当者より | | Rep Ogawara ChokuNozomi 担当者小川原直希 | Contact お問い合せ先 | | TEL: 0800-603-3448 [Toll free] mobile phone ・ Also available from PHS Caller ID is not notified Please contact the "saw SUUMO (Sumo)" If it does not lead, If the real estate company TEL:0800-603-3448【通話料無料】携帯電話・PHSからもご利用いただけます 発信者番号は通知されません 「SUUMO(スーモ)を見た」と問い合わせください つながらない方、不動産会社の方は
| Building coverage, floor area ratio 建ぺい率・容積率 | | 60% ・ 160% 60%・160% | Land of the right form 土地の権利形態 | | Ownership 所有権 | Structure and method of construction 構造・工法 | | Wooden 2-story 木造2階建 | Use district 用途地域 | | One middle and high 1種中高 | Overview and notices その他概要・特記事項 | | Contact: Ogawara ChokuNozomi, Facilities: Public Water Supply, This sewage, City gas, Building confirmation number: GEA1311-11135, Parking: car space 担当者:小川原直希、設備:公営水道、本下水、都市ガス、建築確認番号:GEA1311-11135、駐車場:カースペース | Company profile 会社概要 | | <Mediation> Governor of Tokyo (2) No. 082920 (Corporation) Tokyo Metropolitan Government Building Lots and Buildings Transaction Business Association (Corporation) metropolitan area real estate Fair Trade Council member am tick (Ltd.) Kichijoji headquarters sales department Yubinbango180-0002 Musashino-shi, Tokyo Kichijojihigashi cho 1-19-21 <仲介>東京都知事(2)第082920号(公社)東京都宅地建物取引業協会会員 (公社)首都圏不動産公正取引協議会加盟アムティック(株)吉祥寺本社営業部〒180-0002 東京都武蔵野市吉祥寺東町1-19-21 |
Same specifications photos (Other introspection)同仕様写真(その他内観)  Sunny house series
陽だまりの家シリーズ
 Local appearance photo
現地外観写真
 Local appearance photo
現地外観写真
Entrance玄関  bright, Wide entrance!
明るい、広い玄関!
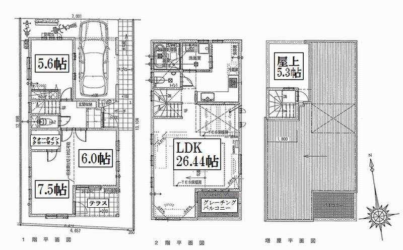
Floor plan間取り図  63,325,000 yen, 3LDK, Land area 91.03 sq m , Mato design was considered a building area 112.32 sq m future
6332万5000円、3LDK、土地面積91.03m2、建物面積112.32m2 将来を考えられた間取設計
Local appearance photo現地外観写真  Imposing complete Koganei Honcho of residence
堂々完成小金井本町の邸
Same specifications photos (living)同仕様写真(リビング)  Living to spend a relaxing time
ゆったりとした時間を過ごせるリビング
Same specifications photo (bathroom)同仕様写真(浴室)  1 Tsubotsubo unit bus
1坪坪のユニットバス
Same specifications photo (kitchen)同仕様写真(キッチン)  Easy-to-use L-shaped kitchen!
使いやすいL型キッチン!
Wash basin, toilet洗面台・洗面所  Vanity greet the fresh morning
清々しい朝を迎える洗面化粧台
Toiletトイレ  Hand wash toilet!
手洗い付トイレ!
Supermarketスーパー  Until Nagasakiya 259m
長崎屋まで259m
View photos from the dwelling unit住戸からの眺望写真  Overlooking the south from Rubaru
ルーバルから南側を望む
Other localその他現地  Shopping street
商店街
Otherその他  Overlooking the patio from LDK
LDKからパティオを望む
 Same specifications photos (living)
同仕様写真(リビング)
 Wash basin, toilet
洗面台・洗面所
Supermarketスーパー  SEIYU until Musashi Koganei shop 291m
SEIYU武蔵小金井店まで291m
Other localその他現地  Koganei Park
小金井公園
Otherその他  Housing wealth, loft!
収納豊富、ロフト!
 Same specifications photos (living)
同仕様写真(リビング)
Supermarketスーパー  To Ito-Yokado 380m
イトーヨーカドーまで380m
Location
|