2013October
55,800,000 yen, 1LDK, 71.62 sq m
New Homes » Kanto » Tokyo » Koganei
 
| | Koganei, Tokyo 東京都小金井市 |
| JR Chuo Line "Higashikoganei" walk 7 minutes JR中央線「東小金井」歩7分 |
Features pickup 特徴ピックアップ | | Pre-ground survey / Vibration Control ・ Seismic isolation ・ Earthquake resistant / Immediate Available / LDK18 tatami mats or more / Bathroom Dryer / Flat to the station / A quiet residential area / Or more before road 6m / Face-to-face kitchen / Toilet 2 places / Bathroom 1 tsubo or more / 2-story / Double-glazing / loft / Atrium / Leafy residential area / All living room flooring / Flat terrain 地盤調査済 /制震・免震・耐震 /即入居可 /LDK18畳以上 /浴室乾燥機 /駅まで平坦 /閑静な住宅地 /前道6m以上 /対面式キッチン /トイレ2ヶ所 /浴室1坪以上 /2階建 /複層ガラス /ロフト /吹抜け /緑豊かな住宅地 /全居室フローリング /平坦地 | Event information イベント情報 | | Local tour dates / Every Saturday, Sunday and public holidays 現地見学会日程/毎週土日祝 | Price 価格 | | 55,800,000 yen 5580万円 | Floor plan 間取り | | 1LDK 1LDK | Units sold 販売戸数 | | 1 units 1戸 | Total units 総戸数 | | 1 units 1戸 | Land area 土地面積 | | 110 sq m (measured) 110m2(実測) | Building area 建物面積 | | 71.62 sq m 71.62m2 | Driveway burden-road 私道負担・道路 | | Nothing, East 6.5m width 無、東6.5m幅 | Completion date 完成時期(築年月) | | October 2013 2013年10月 | Address 住所 | | Koganei, Tokyo Higashi 3 東京都小金井市東町3 | Traffic 交通 | | JR Chuo Line "Higashikoganei" walk 7 minutes JR中央線「東小金井」歩7分
| Related links 関連リンク | | [Related Sites of this company] 【この会社の関連サイト】 | Person in charge 担当者より | | [Regarding this property.] It is unusual structure that was built for the model house! 【この物件について】モデルハウス用に建てた一風変わった造りです! | Contact お問い合せ先 | | (Ltd.) Housing zero TEL: 0120-517086 [Toll free] Please contact the "saw SUUMO (Sumo)" (株)ハウジングゼロTEL:0120-517086【通話料無料】「SUUMO(スーモ)を見た」と問い合わせください | Building coverage, floor area ratio 建ぺい率・容積率 | | 40% ・ 80% 40%・80% | Time residents 入居時期 | | Immediate available 即入居可 | Land of the right form 土地の権利形態 | | Ownership 所有権 | Structure and method of construction 構造・工法 | | Wooden 2-story (framing method) 木造2階建(軸組工法) | Use district 用途地域 | | One low-rise 1種低層 | Overview and notices その他概要・特記事項 | | Parking: car space 駐車場:カースペース | Company profile 会社概要 | | <Mediation> Governor of Tokyo (2) No. 088080 (Ltd.) housing zero Yubinbango184-0015 Koganei, Tokyo Nukuikita cho 2-5-11 <仲介>東京都知事(2)第088080号(株)ハウジングゼロ〒184-0015 東京都小金井市貫井北町2-5-11 |
Local appearance photo現地外観写真  Local (11 May 2013) Shooting
現地(2013年11月)撮影
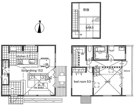
Floor plan間取り図  55,800,000 yen, 1LDK, Land area 110 sq m , Building area 71.62 sq m
5580万円、1LDK、土地面積110m2、建物面積71.62m2
Kitchenキッチン  Indoor (11 May 2013) Shooting
室内(2013年11月)撮影
Livingリビング  Indoor (11 May 2013) Shooting
室内(2013年11月)撮影
Bathroom浴室  Indoor (11 May 2013) Shooting
室内(2013年11月)撮影
Non-living roomリビング以外の居室  Indoor (11 May 2013) Shooting
室内(2013年11月)撮影
Station駅  Until Higashikoganei 550m
東小金井まで550m
 Local guide map
現地案内図
Primary school小学校  350m to East Elementary School
東小学校まで350m
Junior high school中学校  1300m to the East Junior High School
東中学校まで1300m
Location
|