New Homes » Kanto » Tokyo » Koganei


Koganei, Tokyo
JR Chuo Line "Higashikoganei" walk 15 minutes
(Seller direct sales !!) Heart full Town Higashikoganei III (Koganei Kajino-cho 2-chome) station 15 minutes !! new release! Zenshitsuminami direction! Double-sided road Loft & is the atrium of the house direct sales listing!
◆ Seller direct sales! Limited Building 1 New release ~ ! ◆ ○ JR Chuo Line " Higashikoganei "station A 15-minute walk " Musashisakai " station Walk 21 minutes ○ surrounding, Living environment is also good in a quiet residential area. In ○ front road of 5m width corner lot, Feeling of freedom ◎ ○ floor plan is, On the first floor living room spacious 14 quires more than Zenshitsuminami facing 3LDK ○ bonus repayment Mu Even 100% loan It is available for purchase at 12 million units. Try as compared to now rent + parking Badai document request ・ Because of local your tour do not hesitate busy season, Accepted thank you by phone. Kichijoji office 0120-15-8848 until
Features pickup
Construction housing performance with evaluation / Design house performance with evaluation / Corresponding to the flat-35S / Pre-ground survey / Vibration Control ・ Seismic isolation ・ Earthquake resistant / Parking two Allowed / Energy-saving water heaters / Facing south / System kitchen / All room storage / Flat to the station / A quiet residential area / LDK15 tatami mats or more / Around traffic fewer / Corner lot / Shaping land / Washbasin with shower / Face-to-face kitchen / Wide balcony / Bathroom 1 tsubo or more / 2-story / South balcony / Double-glazing / Warm water washing toilet seat / Underfloor Storage / The window in the bathroom / Leafy residential area / Ventilation good / All living room flooring / Water filter / Living stairs / All rooms are two-sided lighting / Flat terrain
Event information
(Please be sure to ask in advance) [The shop, Property Location ・ Floor plan ・ We have published all the compartment view (including the road with). ] Because of the busy season, Thank you accepted by phone. Free dial 0120-15-8848 Our sales listing is, You can also see in the building. Complete listing is of course, You can also see your freely in the property under construction. Marantz rather, I thought firm like seeing a structural framework can not be seen easily in the post-completion. Your tour at any time is possible. If you wish to site visits, Please contact us in advance. Specification ・ We will send blueprint. The exact (including planned) that blueprint and are using please tell us when and housing equipment is hope the specification has been posted.
Price
45,800,000 yen
Floor plan
3LDK
Units sold
1 units
Land area
99.94 sq m (measured)
Building area
78.66 sq m (measured)
Driveway burden-road
Road width: 5m, Asphaltic pavement, Public road
Completion date
January 2014 will
Address
Koganei, Tokyo Kajino cho 2-13-5
Traffic
JR Chuo Line "Higashikoganei" walk 15 minutes
JR Chuo Line "Musashisakai" walk 21 minutes
Seibu Tamagawa "Musashisakai" walk 21 minutes
Related links
[Related Sites of this company]
Person in charge
Person in charge of real-estate and building Kurosaki Fumie Age: 20 Daigyokai Experience: 2 years from now, Residential a smart buy era! My name is Kurosaki of Idasangyo Kichijoji office. Idasangyo is the only direct sales specialty store. Our heart full Town is home to long-lasting and strong strong earthquake.
Contact
TEL: 0800-808-5143 [Toll free] mobile phone ・ Also available from PHS
Caller ID is not notified
Please contact the "saw SUUMO (Sumo)"
If it does not lead, If the real estate company
Sale schedule
◆ Seller direct sales! Limited Building 1 New release ~ ! ◆ ○ JR Chuo Line " Higashikoganei "station A 15-minute walk " Musashisakai " station Walk 21 minutes ○ surrounding, Living environment is also good in a quiet residential area. In ○ front road of 5m width corner lot, Feeling of freedom ◎ ○ floor plan is, On the first floor living room spacious 14 quires more than Zenshitsuminami facing 3LDK ○ bonus repayment Mu Even 100% loan It is available for purchase at 12 million units. Try as compared to now rent + parking Badai document request ・ Because of local your tour do not hesitate busy season, Accepted thank you by phone. Kichijoji office 0120-15-8848 until
Building coverage, floor area ratio
Kenpei rate: 40%, Volume ratio: 80%
Time residents
January 2014
Land of the right form
Ownership
Structure and method of construction
Wooden 2-story (panel method)
Construction
Ltd. Idasangyo (Own design ・ Construction ・ Condominium sales)
Use district
One low-rise
Land category
Residential land
Other limitations
Height district
Overview and notices
Contact: Kurosaki Fumie, Building confirmation number: HPA-13-06782-1 No.
Company profile
<Seller> Minister of Land, Infrastructure and Transport (8) No. 003306 (Ltd.) Idasangyo Kichijoji office Information Center Yubinbango180-0004 Musashino-shi, Tokyo Kichijojihon cho 1-13-9 Daiei Building 1F


Rendering (appearance)

Rendering (appearance). Release and sunshine both sides road produces is me wrap the family ( Building) Rendering
Release and sunshine both sides road produces is me wrap the family ( Building) Rendering

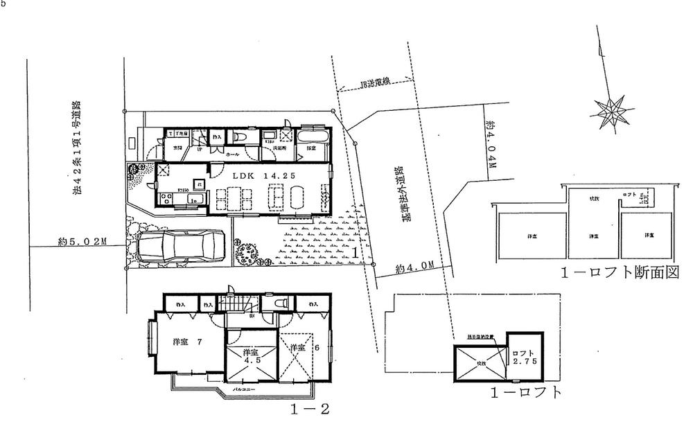
Floor plan

Floor plan. (1 Building), Price 45,800,000 yen, 3LDK, Land area 99.94 sq m , Building area 78.66 sq m
(1 Building), Price 45,800,000 yen, 3LDK, Land area 99.94 sq m , Building area 78.66 sq m

Model house photo
Model house photo

Model house photo
Model house photo

Model house photo
Model house photo

Local photos, including front road
Local photos, including front road

Local photos, including front road
Local photos, including front road

Local appearance photo
Local appearance photo

Junior high school

Junior high school. 1300m until the green junior high school
1300m until the green junior high school

Primary school

Primary school. Koganei Municipal Koganei 1118m to the third elementary school
Koganei Municipal Koganei 1118m to the third elementary school

Supermarket

Supermarket. 707m until Inageya Musashino Sakurazutsumi shop
707m until Inageya Musashino Sakurazutsumi shop

Model house photo

Model house photo. Model house
Model house

Model house photo. Model house
Model house

Model house photo. Model house
Model house

The entire compartment Figure
The entire compartment Figure

Model house photo
Model house photo

Model house photo
Model house photo

Model house photo
Model house photo

Model house photo
Model house photo

Model house photo
Model house photo

Model house photo
Model house photo

Other

Other. Now is the era to buy wisely housing! Idasangyo is a member of the Kichijoji office. Heart full Town of the Company (the seller) is the house that long-lasting and strong strong earthquake. Contact e-mail ・ Your phone is either welcome.
Now is the era to buy wisely housing! Idasangyo is a member of the Kichijoji office. Heart full Town of the Company (the seller) is the house that long-lasting and strong strong earthquake. Contact e-mail ・ Your phone is either welcome.

Other. Thanks in Tokyo and number one!
Thanks in Tokyo and number one!

Construction ・ Construction method ・ specification

Construction ・ Construction method ・ specification. Nice house of strong Iida to earthquake
Nice house of strong Iida to earthquake

Construction ・ Construction method ・ specification. Get the housing performance evaluation report of the third-party organization in all properties!
Get the housing performance evaluation report of the third-party organization in all properties!

Construction ・ Construction method ・ specification. Even without damage for the fourth consecutive times of seismic experiment!
Even without damage for the fourth consecutive times of seismic experiment!

Other

Other. Everyone is granted to buy a house!
Everyone is granted to buy a house!



Location