2013October
47,800,000 yen, 3LDK, 96.68 sq m
New Homes » Kanto » Tokyo » Koganei
 
| | Koganei, Tokyo 東京都小金井市 |
| JR Chuo Line "Musashi Koganei" walk 18 minutes JR中央線「武蔵小金井」歩18分 |
Price 価格 | | 47,800,000 yen 4780万円 | Floor plan 間取り | | 3LDK 3LDK | Units sold 販売戸数 | | 1 units 1戸 | Land area 土地面積 | | 121.94 sq m (registration) 121.94m2(登記) | Building area 建物面積 | | 96.68 sq m (registration) 96.68m2(登記) | Driveway burden-road 私道負担・道路 | | 37.15 sq m , North 4m width (contact the road width 14m), East 4m width 37.15m2、北4m幅(接道幅14m)、東4m幅 | Completion date 完成時期(築年月) | | October 2013 2013年10月 | Address 住所 | | Tokyo Koganei Maehara cho 東京都小金井市前原町1 | Traffic 交通 | | JR Chuo Line "Musashi Koganei" walk 18 minutes JR中央線「武蔵小金井」歩18分
| Person in charge 担当者より | | Rep Tomiichi Kato 担当者加藤富一 | Contact お問い合せ先 | | Mitsui Rehouse Musashi Koganei store Mitsui Fudosan Realty (Ltd.) TEL: 0120-323661 [Toll free] Please contact the "saw SUUMO (Sumo)" 三井のリハウス武蔵小金井店三井不動産リアルティ(株)TEL:0120-323661【通話料無料】「SUUMO(スーモ)を見た」と問い合わせください | Building coverage, floor area ratio 建ぺい率・容積率 | | 40% ・ 80% 40%・80% | Time residents 入居時期 | | Immediate available 即入居可 | Land of the right form 土地の権利形態 | | Ownership 所有権 | Structure and method of construction 構造・工法 | | Wooden 2-story 木造2階建 | Use district 用途地域 | | One low-rise 1種低層 | Overview and notices その他概要・特記事項 | | Contact: Tomiichi Kato, Parking: car space 担当者:加藤富一、駐車場:カースペース | Company profile 会社概要 | | <Mediation> Minister of Land, Infrastructure and Transport (13) No. 000777 (one company) Property distribution management Association (Corporation) metropolitan area real estate Fair Trade Council member Mitsui Rehouse Musashi Koganei store Mitsui Fudosan Realty Co. Yubinbango184-0004 Koganei, Tokyo Honcho 5-13-12 M-10 1 floor <仲介>国土交通大臣(13)第000777号(一社)不動産流通経営協会会員 (公社)首都圏不動産公正取引協議会加盟三井のリハウス武蔵小金井店三井不動産リアルティ(株)〒184-0004 東京都小金井市本町5-13-12 M-10 1階 |
 Local appearance photo
現地外観写真
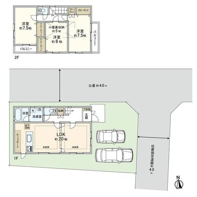
 Floor plan
間取り図
Location
|