New Homes » Kanto » Tokyo » Komae City
 
| | Tokyo Komae City 東京都狛江市 |
| Odakyu line "Komae" walk 16 minutes 小田急線「狛江」歩16分 |
| Town birth of "long-term high-quality housing," living the Tama River and lush natural snuggle up of all 40 House with nature to fulfill in Tokyo! 都内で叶える自然との暮らし多摩川と緑豊かな自然が寄り添う全40邸の『長期優良住宅』の街誕生! |
| ■ 14 minutes until the "Shibuya", 19 minutes to "Shinjuku". Smooth Odakyu line of downtown access "Komae" station nearest ■ 1 minute bus stop walk, Also comfortable going out with the day and small children rain ■ In development has been flat approach and cherry trees, Happily commuting ・ Commute ■ Also to house the hands of friendly long-term high-quality housing to the environment house ■ Abundance of plan variations of large-scale unique ■「渋谷」まで14分、「新宿」まで19分。都心アクセスのスムーズな小田急線「狛江」駅最寄り■バス停が徒歩1分で、雨の日や小さなお子様とのお出掛けも快適に■整備されたフラットなアプローチと桜並木で、楽しく通勤・通学■住まい手にも環境にもやさしい長期優良住宅の家■大規模ならではの豊富のプランバリエーション |
Local guide map 現地案内図 | | Local guide map 現地案内図 | Features pickup 特徴ピックアップ | | Measures to conserve energy / Long-term high-quality housing / Pre-ground survey / Fiscal year Available / Energy-saving water heaters / System kitchen / Bathroom Dryer / All room storage / Flat to the station / A quiet residential area / Corner lot / Japanese-style room / garden / Washbasin with shower / Face-to-face kitchen / Wide balcony / Toilet 2 places / Bathroom 1 tsubo or more / 2-story / 2 or more sides balcony / South balcony / Double-glazing / Otobasu / Warm water washing toilet seat / loft / Nantei / Underfloor Storage / The window in the bathroom / Atrium / TV monitor interphone / Leafy residential area / Urban neighborhood / All living room flooring / Dish washing dryer / Walk-in closet / Water filter / Living stairs / City gas / BS ・ CS ・ CATV / Attic storage / Floor heating / Development subdivision in / terrace 省エネルギー対策 /長期優良住宅 /地盤調査済 /年度内入居可 /省エネ給湯器 /システムキッチン /浴室乾燥機 /全居室収納 /駅まで平坦 /閑静な住宅地 /角地 /和室 /庭 /シャワー付洗面台 /対面式キッチン /ワイドバルコニー /トイレ2ヶ所 /浴室1坪以上 /2階建 /2面以上バルコニー /南面バルコニー /複層ガラス /オートバス /温水洗浄便座 /ロフト /南庭 /床下収納 /浴室に窓 /吹抜け /TVモニタ付インターホン /緑豊かな住宅地 /都市近郊 /全居室フローリング /食器洗乾燥機 /ウォークインクロゼット /浄水器 /リビング階段 /都市ガス /BS・CS・CATV /屋根裏収納 /床暖房 /開発分譲地内 /テラス | Event information イベント情報 | | now, In the document request of all 40 House "town book of grew up" for free! Further details on November 30 days to the official site (Sat) ~ December 23 (Mon. ・ Congratulation) X'mas Fair held! Popular theme park pair of tickets ・ gift card ・ Get your walk balloon (reindeer) in X'mas large raffle further children that such strikes Pastry! ※ Lottery for the first time your visit to our properties model house ・ But only to those who answer the questionnaire. Also, We will consider it as once per set like. There is no prize, we will consider it as soon as the end. Mortgage Consultation ・ Financial Planner consultation meeting held in! ※ Event is Free Join. Please feel free to contact us. Please our booth received "reservation" in advance. 只今、資料請求で全40邸の「ソダチの街ブック」プレゼント中!さらに詳しい内容は公式サイトへ11月30日(土) ~ 12月23日(月・祝) X´mas Fair開催!大人気テーマパークペアチケット・ギフトカード・洋菓子などが当たるX´mas大抽選会さらにお子様にはお散歩バルーン(トナカイ)をプレゼント!※抽選は初めて当物件モデルハウスをご見学・アンケートにお答えいただいた方に限ります。また、一組様につき1回とさせていただきます。景品が無くなり次第終了とさせていただきます。住宅ローン相談会・ファイナンシャルプランナー相談会開催中!※イベントは参加無料です。お気軽にお問い合わせください。事前に「ご予約」いただきご来場ください。 | Property name 物件名 | | Komae refined Hills Phase 1 model house published in / Notice advertising 狛江リファインドヒルズ 第1期モデルハウス公開中/予告広告 | Price 価格 | | 50 million yen ~ 62 million yen (planned) 5000万円 ~ 6200万円台(予定) | Floor plan 間取り | | 3LDK ~ 4LDK 3LDK ~ 4LDK | Units sold 販売戸数 | | Undecided 未定 | Total units 総戸数 | | 40 units 40戸 | Land area 土地面積 | | 115.46 sq m ~ 122.35 sq m (34.92 tsubo ~ 37.01 tsubo) (Registration) 115.46m2 ~ 122.35m2(34.92坪 ~ 37.01坪)(登記) | Building area 建物面積 | | 91.39 sq m ~ 96.67 sq m (27.64 tsubo ~ 29.24 tsubo) (Registration) 91.39m2 ~ 96.67m2(27.64坪 ~ 29.24坪)(登記) | Driveway burden-road 私道負担・道路 | | New road about 5.0m, East about 4.0 ~ 5.2m, South side about 16m (public road asphalt pavement) 新設道路 約5.0m、東側 約4.0 ~ 5.2m、南側 約16m(公道アスファルト舗装) | Completion date 完成時期(築年月) | | 2013 late December 2013年12月下旬 | Address 住所 | | Tokyo Komae City Nakaizumi 4-607 number No. 1 東京都狛江市中和泉4-607番1号他(地番) | Traffic 交通 | | Odakyu line "Komae" walk 16 minutes Odakyu line "Izumi Tamagawa" walk 16 minutes Odakyu "water Shinto" walk 1 minute 小田急線「狛江」歩16分 小田急線「和泉多摩川」歩16分 小田急バス「水神前」歩1分 | Related links 関連リンク | | [Related Sites of this company] 【この会社の関連サイト】 | Contact お問い合せ先 | | Komae refined Hills Local sales center TEL: 0120-383-109 [Toll free] Please contact the "saw SUUMO (Sumo)" 狛江リファインドヒルズ 現地販売センターTEL:0120-383-109【通話料無料】「SUUMO(スーモ)を見た」と問い合わせください | Sale schedule 販売スケジュール | | Sales started in mid-January ※ Units sold is undecided. ※ Acts that lead to secure the contract or reservation of the application and the application order to sale can not be absolutely. ※ March plans to sell 26-year mid-January. ※ For units sold is undecided, Listings property data is displaying a thing of building confirmation acquired dwelling unit 25 units. Whether the sale plans number of units sold in several phase or to sell in bulk has not been finalized. After confirm information of this notice advertising, We will inform you in this ad planned. 1月中旬より販売開始※販売戸数は未定です。※販売開始まで契約または予約の申込および申込順位の確保につながる行為は一切できません。※平成26年1月中旬販売予定。※販売戸数が未定の為、掲載の物件データは建築確認取得住戸25戸のものを表示しています。販売予定戸数を一括して販売するか数期に分けて販売するかは確定しておりません。確定情報は本予告広告の後、実施予定の本広告にてお知らせいたします。 | Most price range 最多価格帯 | | 53 million yen ・ 55 million yen (planned) 5300万円台・5500万円台(予定) | Building coverage, floor area ratio 建ぺい率・容積率 | | Building coverage: 40%, 60% (some corner lot relaxation 50%, 70%), Volume ratio: 80%, 200% 建ぺい率:40%、60%(一部角地緩和50%、70%)、容積率:80%、200% | Time residents 入居時期 | | February 2014 late schedule 2014年2月下旬予定 | Land of the right form 土地の権利形態 | | Ownership 所有権 | Structure and method of construction 構造・工法 | | Wooden 2-story 2 × 4 construction method 木造2階建 2×4工法 | Construction 施工 | | Tokyu Construction Co., Ltd., Ltd. Hosodakomuten 東急建設株式会社、株式会社細田工務店 | Use district 用途地域 | | One low-rise, One middle and high 1種低層、1種中高 | Land category 地目 | | Residential land 宅地 | Overview and notices その他概要・特記事項 | | Building confirmation number: the H25 building certification No. KBI02082 (2013 June 14 date) Other 建築確認番号:第H25確認建築KBI02082号(平成25年6月14日付)他 | Company profile 会社概要 | | <Seller> Minister of Land, Infrastructure and Transport (2) No. 006,908 (one company) Real Estate Association (Corporation) metropolitan area real estate Fair Trade Council member Nippon Steel Kowa Real Estate Co., Ltd. Yubinbango107-8691 Tokyo Minami-Aoyama, Minato-ku, 1-15-5 < (One company) Property distribution management Association (Corporation) metropolitan area real estate Fair Trade Council member Tokyu Livable, Inc. 3965, Shibuya-ku, Tokyo Dogenzaka 1-2-2 <売主>国土交通大臣(2)第006908号(一社)不動産協会会員(公社)首都圏不動産公正取引協議会加盟新日鉄興和不動産株式会社〒107-8691 東京都港区南青山1-15-5<販売提携(代理)>国土交通大臣(10)第2611号(一社)不動産協会会員 (一社)不動産流通経営協会会員 (公社)首都圏不動産公正取引協議会加盟東急リバブル株式会社〒150-0043 東京都渋谷区道玄坂1-2-2 |
Aerial photograph航空写真  Local peripheral aerial photographs (2013 May shooting)
現地周辺航空写真(平成25年5月撮影)
Cityscape Rendering街並完成予想図  Beautiful cityscape with a sense of unity 40 House unique. Urban development considering the brightness and ventilation. Road in the town that was to cherish the ease of walking. As families spend pleasant, Stuck in one by one to shape the city. ※ Cityscape Rendering
40邸ならではの統一感ある美しい街並み。明るさや風通しを考えた街づくり。歩きやすさを大切にした街の中の道。家族が気持ちよく過ごせるよう、街を形作り一つひとつにこだわりました。※街並み完成予想図
Livingリビング  No.21 model house ・ Living (October 2013 shooting)
No.21モデルハウス・リビング(2013年10月撮影)
 No.21 model house ・ Living (October 2013 shooting)
No.21モデルハウス・リビング(2013年10月撮影)
Non-living roomリビング以外の居室  No.21 model house ・ Bedroom (October 2013 shooting)
No.21モデルハウス・ベッドルーム(2013年10月撮影)
Shopping centreショッピングセンター  Odakyu OX to Komae shop 1180m ※ Local surrounding environment (June 2013 shooting)
Odakyu OX 狛江店まで1180m ※現地周辺環境(2013年6月撮影)
Park公園  360m up to municipal Nishigawara Nature Park ※ Walk a fraction of the articles and is calculated in 1 minute = 80m.
市立西河原自然公園まで360m ※掲載の徒歩分数は1分=80mで算出しております。
Otherその他  Local surrounding environment (June 2013 shooting)
現地周辺環境(2013年6月撮影)
Supermarketスーパー  Queens Isetan Until Chofu shop 850m ※ Local surrounding environment (June 2013 shooting)
クイーンズ伊勢丹 調布店まで850m ※現地周辺環境(2013年6月撮影)
Primary school小学校  280m until the Municipal Izumi Elementary School ※ Walk a fraction of the articles and is calculated in 1 minute = 80m.
市立和泉小学校まで280m ※掲載の徒歩分数は1分=80mで算出しております。
Otherその他  Carefree grow green, Rich natural environment. You can also enjoy fireworks is from the Tama River riverbed. ※ Local surrounding environment (June 2013 shooting)
のびのび育つ緑、豊かな自然環境。多摩川河川敷からは花火も楽しめます。※現地周辺環境(2013年6月撮影)
 Cherry trees continues, Gentle approach. Also counted in the "Tamagawa 50 Jing". ※ Local surrounding environment (March 2013 shooting)
桜並木が続く、穏やかなアプローチ。「多摩川50景」にも数えられています。※現地周辺環境(2013年3月撮影)
Junior high school中学校  Municipal Komae until the third junior high school 1110m ※ Local surrounding environment (June 2013 shooting)
市立狛江第三中学校まで1110m ※現地周辺環境(2013年6月撮影)
Local guide map現地案内図  The approach of walking vehicle separation from the station, Roads also widely easy to walk in flat.
駅からの歩車分離のアプローチは、道幅も広くフラットで歩きやすい。
Route map路線図  To Shibuya 14 minutes, To Shinjuku 19 minutes. Nimble access both holiday weekdays. Also, Smooth access to the resort, such as Hakone and Enoshima.
渋谷まで14分、新宿まで19分。平日も休日も軽快なアクセス。また、箱根や江ノ島などのリゾートにもスムーズアクセス。
Aerial photograph航空写真  Local peripheral aerial photographs (2013 May shooting)
現地周辺航空写真(平成25年5月撮影)
Otherその他  Jikei University School of Medicine in the third hospital, Top bus to go from the nearest bus stop.
慈恵医大第三病院にも、最寄りのバス停から行けるこまバス。
 1 minute bus stop walk, Also comfortable going out with the day and small children rain.
バス停が徒歩1分で、雨の日や小さなお子様とのお出掛けも快適に。
Government office役所  Komae 1270m to city hall ※ Walk a fraction of the articles and is calculated in 1 minute = 80m.
狛江市役所まで1270m ※掲載の徒歩分数は1分=80mで算出しております。
Kindergarten ・ Nursery幼稚園・保育園  440m to private Kodama kindergarten Komae ※ Walk a fraction of the articles and is calculated in 1 minute = 80m.
私立狛江こだま幼稚園まで440m ※掲載の徒歩分数は1分=80mで算出しております。
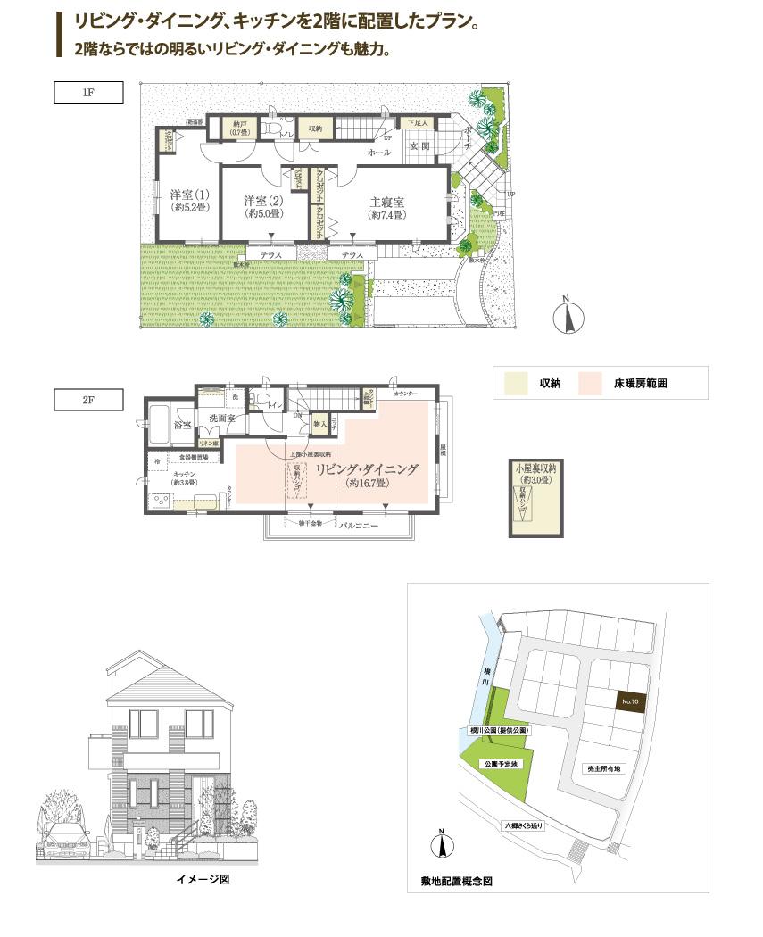
Floor plan間取り図  Local peripheral aerial photographs (2013 May shooting)
現地周辺航空写真(平成25年5月撮影)
 Local peripheral aerial photographs (2013 May shooting)
現地周辺航空写真(平成25年5月撮影)
 Local peripheral aerial photographs (2013 May shooting)
現地周辺航空写真(平成25年5月撮影)
 (No.10), Price TBD , 3LDK, Land area 116.99 sq m , Building area 92.73 sq m
(No.10)、価格 未定 、3LDK、土地面積116.99m2、建物面積92.73m2
 Local peripheral aerial photographs (2013 May shooting)
現地周辺航空写真(平成25年5月撮影)
 Local peripheral aerial photographs (2013 May shooting)
現地周辺航空写真(平成25年5月撮影)
 Local peripheral aerial photographs (2013 May shooting)
現地周辺航空写真(平成25年5月撮影)
Supermarketスーパー  Ito-Yokado Until Kokuryo shop 1390m ※ Local surrounding environment (June 2013 shooting)
イトーヨーカドー 国領店まで1390m ※現地周辺環境(2013年6月撮影)
Hospital病院  Jikei University School of Medicine 1060m until comes the third hospital ※ Local surrounding environment (June 2013 shooting)
東京慈恵会医科大学付属第三病院まで1060m ※現地周辺環境(2013年6月撮影)
Power generation ・ Hot water equipment発電・温水設備  As the benefits of long-term high-quality housing, "Tax cuts of the mortgage." ・ "Various tax relief" will be received. ※ You may not receive the benefits of the deduction by borrowing amount of money etc..
長期優良住宅のメリットとしては、『住宅ローンの減税』・『各種税の軽減』が受けられます。※借入金額等により控除額のメリットが受けられない場合があります。
Other Equipmentその他設備  Adopt the Low-E double-glazing on the windows of all the living room. Thermal barrier ・ Increase the thermal insulation properties, It provides excellent effect also in energy saving.
全居室の窓にLow-E複層ガラスを採用。遮熱性・断熱性を高め、省エネにも優れた効果を発揮します。
 Standard equipped with a dish washing and drying machine. Top dishwasher is easy, Washing ・ Clean so that sterilization at a high temperature for both dry.
食器洗浄乾燥機を標準装備。食器洗いが簡単な上、洗浄・乾燥ともに高温で除菌するので清潔です。
 Local guide map
現地案内図
Power generation ・ Hot water equipment発電・温水設備  A small change in temperature of the hot water temperature, "Double heat insulation structure" of the tub insulating material and set the lid. Also lead to savings in utility costs.
湯温の温度変化が少ない、浴槽保温材と組フタの「ダブル保温構造」。光熱費の節約にもつながります。
 The water heater of the exhaust heat efficiency and good reuse, While reducing CO2 emissions, Create a hot water with less gas consumption.
給湯器の排熱を効率よく再利用し、CO2排出量を低減しながら、少ないガス消費量でお湯をつくります。
Cooling and heating ・ Air conditioning冷暖房・空調設備  living ・ The dining, Warm up the whole room evenly from feet, It was adopted TES Shikiyuka heating.
リビング・ダイニングには、足下から室内全体をムラなく暖める、TES式床暖房を採用しました。
The entire compartment Figure全体区画図  Site placement illustrations
敷地配置イラスト
Location
|