New Homes » Kanto » Tokyo » Koto
 
| | Koto-ku, Tokyo 東京都江東区 |
| Tokyo Metro Tozai Line "Minamisunamachi" walk 18 minutes 東京メトロ東西線「南砂町」歩18分 |
| Corresponding to the flat-35S, 2 along the line more accessible, System kitchen, Flat to the station, LDK15 tatami mats or more, Shaping land, Three-story or more, City gas, Flat terrain フラット35Sに対応、2沿線以上利用可、システムキッチン、駅まで平坦、LDK15畳以上、整形地、3階建以上、都市ガス、平坦地 |
Features pickup 特徴ピックアップ | | Corresponding to the flat-35S / 2 along the line more accessible / System kitchen / Flat to the station / LDK15 tatami mats or more / Shaping land / Three-story or more / City gas / Flat terrain フラット35Sに対応 /2沿線以上利用可 /システムキッチン /駅まで平坦 /LDK15畳以上 /整形地 /3階建以上 /都市ガス /平坦地 | Price 価格 | | 42,800,000 yen 4280万円 | Floor plan 間取り | | 2LDK + 2S (storeroom) ~ 3LDK + S (storeroom) 2LDK+2S(納戸) ~ 3LDK+S(納戸) | Units sold 販売戸数 | | 2 units 2戸 | Total units 総戸数 | | 2 units 2戸 | Land area 土地面積 | | 72.61 sq m ~ 73.5 sq m (measured) 72.61m2 ~ 73.5m2(実測) | Building area 建物面積 | | 99.77 sq m ~ 104.33 sq m (registration) 99.77m2 ~ 104.33m2(登記) | Driveway burden-road 私道負担・道路 | | East side 4m 東側 4m | Completion date 完成時期(築年月) | | January 2014 late schedule 2014年1月下旬予定 | Address 住所 | | Koto-ku, Tokyo Higashisuna 4-8 東京都江東区東砂4-8 | Traffic 交通 | | Tokyo Metro Tozai Line "Minamisunamachi" walk 18 minutes Toei Shinjuku Line "Oshima" walk 25 minutes Toei Shinjuku Line "Higashi-Ojima" walk 26 minutes 東京メトロ東西線「南砂町」歩18分 都営新宿線「大島」歩25分 都営新宿線「東大島」歩26分
| Related links 関連リンク | | [Related Sites of this company] 【この会社の関連サイト】 | Person in charge 担当者より | | Person in charge of real-estate and building Suzuki Hatsue industry experience: 7 years My Home ・ Second House ・ According to the wide range of needs, such as for investment, Let me help you with looking better properties. I will do my best so that you can answer the needs of our customers. 担当者宅建鈴木 初枝業界経験:7年マイホーム・セカンドハウス・投資用などの幅広いニーズに合わせ、より良い物件探しのお手伝いをさせて下さい。お客様のご要望にお答えできるよう頑張ります。 | Contact お問い合せ先 | | TEL: 0800-603-3429 [Toll free] mobile phone ・ Also available from PHS Caller ID is not notified Please contact the "saw SUUMO (Sumo)" If it does not lead, If the real estate company TEL:0800-603-3429【通話料無料】携帯電話・PHSからもご利用いただけます 発信者番号は通知されません 「SUUMO(スーモ)を見た」と問い合わせください つながらない方、不動産会社の方は
| Building coverage, floor area ratio 建ぺい率・容積率 | | Kenpei rate: 60%, Volume ratio: 240% 建ペい率:60%、容積率:240% | Time residents 入居時期 | | January 2014 late schedule 2014年1月下旬予定 | Land of the right form 土地の権利形態 | | Ownership 所有権 | Use district 用途地域 | | Semi-industrial 準工業 | Land category 地目 | | Residential land 宅地 | Overview and notices その他概要・特記事項 | | Contact: Suzuki Hatsue, Building confirmation number: No. H25A-BA.a00336-01 担当者:鈴木 初枝、建築確認番号:第H25A-BA.a00336-01 | Company profile 会社概要 | | <Mediation> Governor of Tokyo (2) No. 082902 (Corporation) All Japan Real Estate Association (Corporation) metropolitan area real estate Fair Trade Council member (Ltd.) Oedo real estate Yubinbango135-0024 Koto-ku, Tokyo fining 3-4-12 <仲介>東京都知事(2)第082902号(公社)全日本不動産協会会員 (公社)首都圏不動産公正取引協議会加盟(株)大江戸不動産〒135-0024 東京都江東区清澄3-4-12 |
Local appearance photo現地外観写真  Local (10 May 2013) Shooting
現地(2013年10月)撮影
 Local (10 May 2013) Shooting
現地(2013年10月)撮影
Local photos, including front road前面道路含む現地写真  Local (10 May 2013) Shooting
現地(2013年10月)撮影
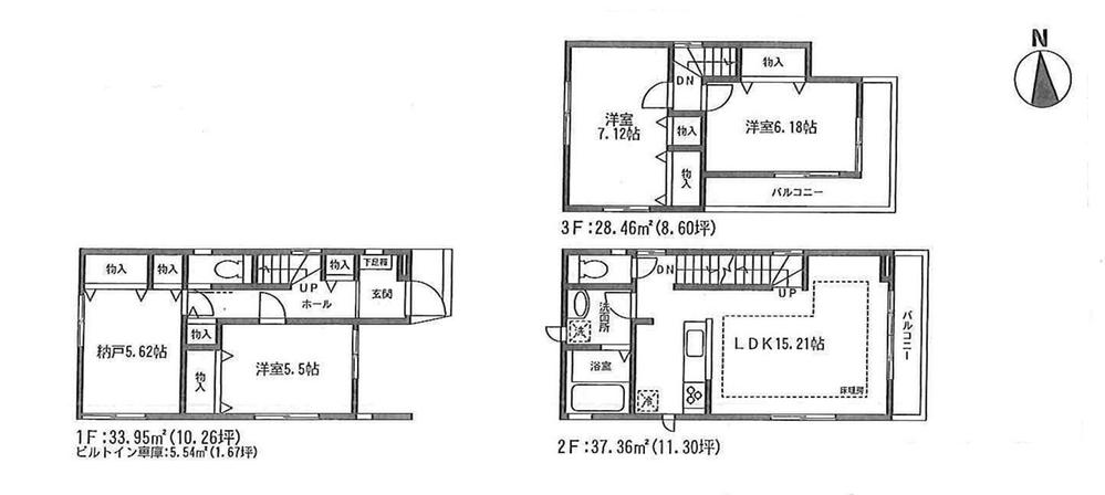
Floor plan間取り図  (1 Building), Price 42,800,000 yen, 2LDK+2S, Land area 73.5 sq m , Building area 104.33 sq m
(1号棟)、価格4280万円、2LDK+2S、土地面積73.5m2、建物面積104.33m2
Local photos, including front road前面道路含む現地写真  Local (10 May 2013) Shooting
現地(2013年10月)撮影
 The entire compartment Figure
全体区画図
Floor plan間取り図  (Building 2), Price 42,800,000 yen, 3LDK+S, Land area 72.61 sq m , Building area 99.77 sq m
(2号棟)、価格4280万円、3LDK+S、土地面積72.61m2、建物面積99.77m2
Location
|