New Homes » Kanto » Tokyo » National City
 
| | Tokyo National City 東京都国立市 |
| Tama Monorail "Manganji" walk 16 minutes 多摩都市モノレール「万願寺」歩16分 |
| Earn T point, Year Available, Super close, Facing south, System kitchen, A quiet residential area, LDK15 tatami mats or more, Around traffic fewer, Or more before road 6m, Shaping land, Face-to-face kitchen Tポイント貯まります、年内入居可、スーパーが近い、南向き、システムキッチン、閑静な住宅地、LDK15畳以上、周辺交通量少なめ、前道6m以上、整形地、対面式キッチン |
| Ltd. Forest housing, Since we are the other in to offer the best selection of properties no, Certainly once contact us, Or please visit. ※ (still, When you visit will also serve as your reservation is for you seeing slowly to the customer Please note that. ) <Inquiry or reservation toll-free: 0120-215-515> 株式会社フォレストハウジングは、他には無い選りすぐりの物件をご用意させていただいておりますので、是非一度弊社にお問合せ、またはご来店くださいませ。※(尚、ご見学の際はお客様にゆっくりとご覧いただきますためにもご予約制となりますのでご了承ください。)<お問合せまたはご予約フリーダイヤル:0120-215-515> |
Features pickup 特徴ピックアップ | | Corresponding to the flat-35S / Pre-ground survey / Year Available / Super close / It is close to the city / Facing south / System kitchen / A quiet residential area / LDK15 tatami mats or more / Around traffic fewer / Or more before road 6m / Shaping land / Washbasin with shower / Face-to-face kitchen / Toilet 2 places / Bathroom 1 tsubo or more / 2-story / South balcony / Double-glazing / The window in the bathroom / Leafy residential area / City gas / Flat terrain フラット35Sに対応 /地盤調査済 /年内入居可 /スーパーが近い /市街地が近い /南向き /システムキッチン /閑静な住宅地 /LDK15畳以上 /周辺交通量少なめ /前道6m以上 /整形地 /シャワー付洗面台 /対面式キッチン /トイレ2ヶ所 /浴室1坪以上 /2階建 /南面バルコニー /複層ガラス /浴室に窓 /緑豊かな住宅地 /都市ガス /平坦地 | Price 価格 | | 29.4 million yen 2940万円 | Floor plan 間取り | | 4LDK 4LDK | Units sold 販売戸数 | | 1 units 1戸 | Land area 土地面積 | | 96.67 sq m (measured) 96.67m2(実測) | Building area 建物面積 | | 106.82 sq m (measured) 106.82m2(実測) | Driveway burden-road 私道負担・道路 | | Nothing, Northwest 6m width 無、北西6m幅 | Completion date 完成時期(築年月) | | August 2013 2013年8月 | Address 住所 | | Tokyo National City fountain 2 東京都国立市泉2 | Traffic 交通 | | Tama Monorail "Manganji" walk 16 minutes JR Nambu Line "Yagawa" walk 21 minutes JR Nambu Line "Yaho" walk 28 minutes 多摩都市モノレール「万願寺」歩16分JR南武線「矢川」歩21分 JR南武線「谷保」歩28分
| Related links 関連リンク | | [Related Sites of this company] 【この会社の関連サイト】 | Person in charge 担当者より | | Person in charge of Forest housing 担当者フォレストハウジング | Contact お問い合せ先 | | TEL: 0120-215515 [Toll free] Please contact the "saw SUUMO (Sumo)" TEL:0120-215515【通話料無料】「SUUMO(スーモ)を見た」と問い合わせください | Building coverage, floor area ratio 建ぺい率・容積率 | | 60% ・ 200% 60%・200% | Time residents 入居時期 | | Consultation 相談 | Land of the right form 土地の権利形態 | | Ownership 所有権 | Structure and method of construction 構造・工法 | | Wooden 2-story 木造2階建 | Use district 用途地域 | | Semi-industrial 準工業 | Overview and notices その他概要・特記事項 | | Contact: Forest housing, Facilities: Public Water Supply, This sewage, City gas, Building confirmation number: No. 12UDIW Ken 01180, Parking: Garage 担当者:フォレストハウジング、設備:公営水道、本下水、都市ガス、建築確認番号:第12UDIW建01180号、駐車場:車庫 | Company profile 会社概要 | | <Mediation> Governor of Tokyo (1) Article 092 282 issue (stock) Forest housing Yubinbango186-0004 Tokyo National City in 1-10-8 Noah National Building 3 Kaihigashishitsu <仲介>東京都知事(1)第092282号(株)フォレストハウジング〒186-0004 東京都国立市中1-10-8 ノア国立ビル3階東室 |
Local appearance photo現地外観写真  Local (10 May 2013) Shooting
現地(2013年10月)撮影
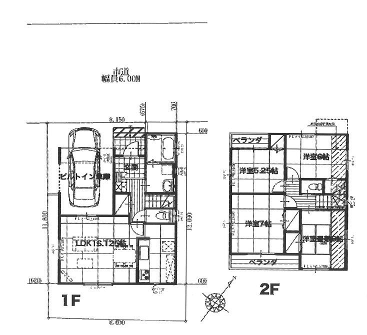
Floor plan間取り図  29.4 million yen, 4LDK, Land area 96.67 sq m , Building area 106.82 sq m
2940万円、4LDK、土地面積96.67m2、建物面積106.82m2
Local photos, including front road前面道路含む現地写真  Local (10 May 2013) Shooting
現地(2013年10月)撮影
Local appearance photo現地外観写真  Local (10 May 2013) Shooting
現地(2013年10月)撮影
Livingリビング  Indoor (10 May 2013) Shooting
室内(2013年10月)撮影
Bathroom浴室  Indoor (10 May 2013) Shooting
室内(2013年10月)撮影
Kitchenキッチン  Indoor (10 May 2013) Shooting
室内(2013年10月)撮影
Non-living roomリビング以外の居室  Indoor (10 May 2013) Shooting
室内(2013年10月)撮影
Entrance玄関  Local (10 May 2013) Shooting
現地(2013年10月)撮影
Wash basin, toilet洗面台・洗面所  Indoor (10 May 2013) Shooting
室内(2013年10月)撮影
Receipt収納  Indoor (10 May 2013) Shooting
室内(2013年10月)撮影
Toiletトイレ  Indoor (10 May 2013) Shooting
室内(2013年10月)撮影
Parking lot駐車場  Local (10 May 2013) Shooting
現地(2013年10月)撮影
Balconyバルコニー  Local (10 May 2013) Shooting
現地(2013年10月)撮影
Station駅  JR Nambu Line to "Yagawa Station 1450m
JR南武線「矢川駅まで1450m
Other introspectionその他内観  Indoor (10 May 2013) Shooting
室内(2013年10月)撮影
Livingリビング  Indoor (10 May 2013) Shooting
室内(2013年10月)撮影
Non-living roomリビング以外の居室  Indoor (10 May 2013) Shooting
室内(2013年10月)撮影
Receipt収納  Indoor (10 May 2013) Shooting
室内(2013年10月)撮影
Station駅  1440m to Tama Monorail "Manganji Station"
多摩モノレール「万願寺駅」まで1440m
Non-living roomリビング以外の居室  Indoor (10 May 2013) Shooting
室内(2013年10月)撮影
Location
|