2013September
37,800,000 yen, 4LDK, 99.78 sq m
New Homes » Kanto » Tokyo » National City
 
| | Tokyo National City 東京都国立市 |
| JR Nambu Line "Yaho" walk 15 minutes JR南武線「谷保」歩15分 |
Price 価格 | | 37,800,000 yen 3780万円 | Floor plan 間取り | | 4LDK 4LDK | Units sold 販売戸数 | | 1 units 1戸 | Land area 土地面積 | | 172.67 sq m (measured) 172.67m2(実測) | Building area 建物面積 | | 99.78 sq m (measured) 99.78m2(実測) | Driveway burden-road 私道負担・道路 | | Nothing 無 | Completion date 完成時期(築年月) | | September 2013 2013年9月 | Address 住所 | | Tokyo National City Yaho 東京都国立市谷保 | Traffic 交通 | | JR Nambu Line "Yaho" walk 15 minutes JR南武線「谷保」歩15分
| Contact お問い合せ先 | | TEL: 0800-805-6263 [Toll free] mobile phone ・ Also available from PHS Caller ID is not notified Please contact the "saw SUUMO (Sumo)" If it does not lead, If the real estate company TEL:0800-805-6263【通話料無料】携帯電話・PHSからもご利用いただけます 発信者番号は通知されません 「SUUMO(スーモ)を見た」と問い合わせください つながらない方、不動産会社の方は
| Building coverage, floor area ratio 建ぺい率・容積率 | | 30% ・ 60% 30%・60% | Time residents 入居時期 | | Consultation 相談 | Land of the right form 土地の権利形態 | | Ownership 所有権 | Structure and method of construction 構造・工法 | | Wooden 2-story 木造2階建 | Use district 用途地域 | | One low-rise 1種低層 | Other limitations その他制限事項 | | Other share land interests about 0.30m2 Yes 他共有土地持分約0.30m2有 | Overview and notices その他概要・特記事項 | | Building confirmation number: Nos. 13-206, Parking: No 建築確認番号:13-206号、駐車場:無 | Company profile 会社概要 | | <Mediation> Minister of Land, Infrastructure and Transport (3) The 006,183 No. housing information Museum Tachikawa Seongnam Construction (Ltd.) Yubinbango190-0002 Tokyo Tachikawa Saiwaicho 4-39-19 <仲介>国土交通大臣(3)第006183号住宅情報館 立川店城南建設(株)〒190-0002 東京都立川市幸町4-39-19 |
Local appearance photo現地外観写真  Local Photos
現地写真
 Local Photos
現地写真
 Other
その他
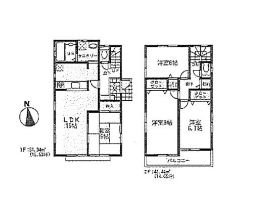
Floor plan間取り図  37,800,000 yen, 4LDK, Land area 172.67 sq m , Building area 99.78 sq m floor plan
3780万円、4LDK、土地面積172.67m2、建物面積99.78m2 間取図
Local appearance photo現地外観写真  Local Photos
現地写真
 Local Photos
現地写真
Location
|