New Homes » Kanto » Tokyo » National City
 
| | Tokyo National City 東京都国立市 |
| JR Nambu Line "Yaho" walk 16 minutes JR南武線「谷保」歩16分 |
| Construction housing performance with evaluation, 2 along the line more accessible, Facing south, LDK15 tatami mats or more, Corner lot, Shaping land, 2-story, Zenshitsuminami direction, All room 6 tatami mats or more 建設住宅性能評価付、2沿線以上利用可、南向き、LDK15畳以上、角地、整形地、2階建、全室南向き、全居室6畳以上 |
| Ltd. Forest housing, Since we are the other in to offer the best selection of properties no, Certainly once contact us, Or please visit. ※ (still, When you visit will also serve as your reservation is for you seeing slowly to the customer Please note that. ) <Inquiry or reservation toll-free: 0120-215-515> 株式会社フォレストハウジングは、他には無い選りすぐりの物件をご用意させていただいておりますので、是非一度弊社にお問合せ、またはご来店くださいませ。※(尚、ご見学の際はお客様にゆっくりとご覧いただきますためにもご予約制となりますのでご了承ください。)<お問合せまたはご予約フリーダイヤル:0120-215-515> |
Features pickup 特徴ピックアップ | | Construction housing performance with evaluation / 2 along the line more accessible / Facing south / LDK15 tatami mats or more / Corner lot / Shaping land / 2-story / Zenshitsuminami direction / All room 6 tatami mats or more 建設住宅性能評価付 /2沿線以上利用可 /南向き /LDK15畳以上 /角地 /整形地 /2階建 /全室南向き /全居室6畳以上 | Event information イベント情報 | | Local sales meetings (Please be sure to ask in advance) schedule / Every Saturday, Sunday and public holidays time / 10:00 ~ 18:00 現地販売会(事前に必ずお問い合わせください)日程/毎週土日祝時間/10:00 ~ 18:00 | Price 価格 | | 39,800,000 yen 3980万円 | Floor plan 間取り | | 4LDK 4LDK | Units sold 販売戸数 | | 1 units 1戸 | Total units 総戸数 | | 11 units 11戸 | Land area 土地面積 | | 158.64 sq m 158.64m2 | Building area 建物面積 | | 94.8 sq m 94.8m2 | Driveway burden-road 私道負担・道路 | | Road width: 4.5m ~ 15m 道路幅:4.5m ~ 15m | Completion date 完成時期(築年月) | | Early August 2013 2013年8月上旬 | Address 住所 | | Tokyo National City Yaho 東京都国立市谷保 | Traffic 交通 | | JR Nambu Line "Yaho" walk 16 minutes JR Nambu Line "Yagawa" walk 22 minutes JR Nambu Line "Nishifu" walk 28 minutes JR南武線「谷保」歩16分 JR南武線「矢川」歩22分 JR南武線「西府」歩28分
| Related links 関連リンク | | [Related Sites of this company] 【この会社の関連サイト】 | Person in charge 担当者より | | Person in charge of Forest housing 担当者フォレストハウジング | Contact お問い合せ先 | | TEL: 0120-215515 [Toll free] Please contact the "saw SUUMO (Sumo)" TEL:0120-215515【通話料無料】「SUUMO(スーモ)を見た」と問い合わせください | Building coverage, floor area ratio 建ぺい率・容積率 | | Kenpei rate: 30%, Volume ratio: 60% 建ペい率:30%、容積率:60% | Land of the right form 土地の権利形態 | | Ownership 所有権 | Use district 用途地域 | | One low-rise 1種低層 | Overview and notices その他概要・特記事項 | | Contact: Forest housing, Building confirmation number: TKK 確済 No. 13-203 担当者:フォレストハウジング、建築確認番号:TKK確済13-203号 | Company profile 会社概要 | | <Mediation> Governor of Tokyo (1) Article 092 282 issue (stock) Forest housing Yubinbango186-0004 Tokyo National City in 1-10-8 Noah National Building 3 Kaihigashishitsu <仲介>東京都知事(1)第092282号(株)フォレストハウジング〒186-0004 東京都国立市中1-10-8 ノア国立ビル3階東室 |
Local appearance photo現地外観写真  Outer wall Asahi Kasei, Use the power board.
外壁は旭化成、パワーボードを使用。
 All 11 buildings of the cityscape.
全11棟の街並み。
 Two whole building car space.
全棟カースペース2台。
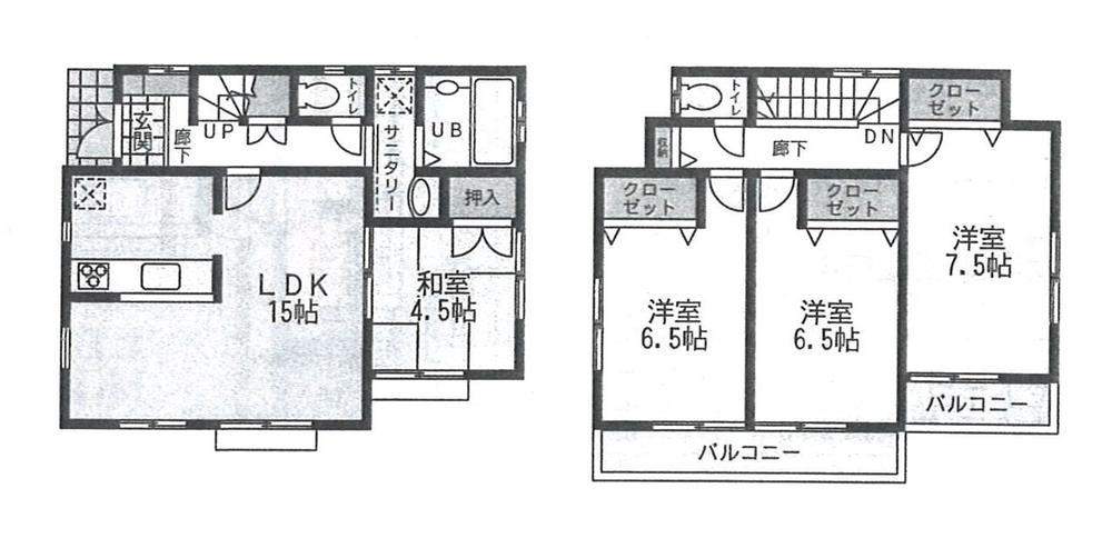
Floor plan間取り図  (8 Building), Price 39,800,000 yen, 4LDK, Land area 158.64 sq m , Building area 94.8 sq m
(8号棟)、価格3980万円、4LDK、土地面積158.64m2、建物面積94.8m2
Livingリビング  Room (August 2013) Shooting
室内(2013年8月)撮影
Bathroom浴室  Hitotsubo type of bathtub. It is with the bathroom dryer.
一坪タイプの浴槽。浴室乾燥機付きです。
Kitchenキッチン  While enjoying a conversation with a family can cook, Face-to-face is the kitchen.
家族との会話を楽しみながら料理ができる、対面キッチンです。
Non-living roomリビング以外の居室  Local (August 2013) Shooting
現地(2013年8月)撮影
Wash basin, toilet洗面台・洗面所  Room (August 2013) Shooting
室内(2013年8月)撮影
Receipt収納  Closet Available in each room.
各居室にクローゼット有。
Toiletトイレ  Room (August 2013) Shooting
室内(2013年8月)撮影
Local photos, including front road前面道路含む現地写真  Local (August 2013) Shooting
現地(2013年8月)撮影
Station駅  1040m to Yaho Station
谷保駅まで1040m
The entire compartment Figure全体区画図  layout drawing
配置図
Otherその他  Room (August 2013) Shooting
室内(2013年8月)撮影
Livingリビング  Room (August 2013) Shooting
室内(2013年8月)撮影
Bathroom浴室  Room (August 2013) Shooting
室内(2013年8月)撮影
Non-living roomリビング以外の居室  Room (August 2013) Shooting
室内(2013年8月)撮影
Wash basin, toilet洗面台・洗面所  Room (August 2013) Shooting
室内(2013年8月)撮影
Receipt収納  Room (August 2013) Shooting
室内(2013年8月)撮影
Junior high school中学校  107m to National City National third junior high school
国立市立国立第三中学校まで107m
Location
|