|
|
Machida, Tokyo
東京都町田市
|
|
Denentoshi Tokyu "Suzukakedai" walk 17 minutes
東急田園都市線「すずかけ台」歩17分
|
|
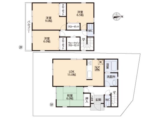
"Suzukakedai" station available ・ Corner lot ・ 4LDK ・ All room about 6 quires more ・ Storeroom ・ Front road about 6m
「すずかけ台」駅利用可能・角地・4LDK・全居室約6帖以上・納戸・前面道路約6m
|
|
Denentoshi "Suzukakedai" station available. Ventilation per corner lot, Sense of openness is good. Since the room is all about 6 quires more 4LDK, It has become a design taken between spend leisurely. In face-to-face kitchen living room overlooking while dishes, Guests can enjoy while taking communication. Underfloor storage will come in handy to store food. About 2 Pledge storage space with a storeroom of plenty. Seasonal is also refreshing Katazuki likely. Since it is a front road about 6m, Garage is also easy. A neighbor together Please Visit the local. Please do not hesitate to contact us.
田園都市線「すずかけ台」駅利用可能。角地に付き風通し、開放感良好です。居室は全て約6帖以上の4LDKですので、ゆったりと過ごせる間取設計となっております。お料理をしながらリビングが見渡せる対面キッチンで、コミュニケーションを取りながら楽しく過ごせます。床下収納は食材の保管に重宝します。約2帖の納戸付きで収納スペースも豊富。季節物もスッキリ片付きそうです。前面道路約6mですので、車庫入れも簡単です。近隣と合わせて是非現地をご覧下さい。どうぞお気軽にお問い合わせ下さい。
|
Price 価格 | | 40,300,000 yen 4030万円 |
Floor plan 間取り | | 4LDK 4LDK |
Units sold 販売戸数 | | 1 units 1戸 |
Land area 土地面積 | | 104.75 sq m (measured) 104.75m2(実測) |
Building area 建物面積 | | 105.16 sq m (measured) 105.16m2(実測) |
Driveway burden-road 私道負担・道路 | | Nothing 無 |
Completion date 完成時期(築年月) | | October 2013 2013年10月 |
Address 住所 | | Machida, Tokyo Ogawa 東京都町田市小川 |
Traffic 交通 | | Denentoshi Tokyu "Suzukakedai" walk 17 minutes 東急田園都市線「すずかけ台」歩17分
|
Related links 関連リンク | | [Related Sites of this company] 【この会社の関連サイト】 |
Contact お問い合せ先 | | TEL: 0800-805-6223 [Toll free] mobile phone ・ Also available from PHS Caller ID is not notified Please contact the "saw SUUMO (Sumo)" If it does not lead, If the real estate company TEL:0800-805-6223【通話料無料】携帯電話・PHSからもご利用いただけます 発信者番号は通知されません 「SUUMO(スーモ)を見た」と問い合わせください つながらない方、不動産会社の方は
|
Building coverage, floor area ratio 建ぺい率・容積率 | | 60% ・ 200% 60%・200% |
Time residents 入居時期 | | Consultation 相談 |
Land of the right form 土地の権利形態 | | Ownership 所有権 |
Structure and method of construction 構造・工法 | | Wooden 2-story 木造2階建 |
Use district 用途地域 | | Semi-industrial 準工業 |
Overview and notices その他概要・特記事項 | | Facilities: Public Water Supply, This sewage, City gas, Building confirmation number: No. 01236, Parking: No 設備:公営水道、本下水、都市ガス、建築確認番号:01236号、駐車場:無 |
Company profile 会社概要 | | <Mediation> Minister of Land, Infrastructure and Transport (3) The 006,183 No. housing Information Center Machida Seongnam Construction (Ltd.) Yubinbango194-0023 Machida, Tokyo Asahimachi 1-25-20 <仲介>国土交通大臣(3)第006183号住宅情報館 町田店城南建設(株)〒194-0023 東京都町田市旭町1-25-20 |