2013September
35,800,000 yen, 3LDK, 91.99 sq m
New Homes » Kanto » Tokyo » Machida
 
| | Machida, Tokyo 東京都町田市 |
| JR Yokohama Line "Naruse" walk 15 minutes JR横浜線「成瀬」歩15分 |
| "Naruse" station within walking distance ・ The first kind low-rise exclusive residential area ・ Site about 45 square meters ・ LDK about 16 Pledge 「成瀬」駅徒歩圏内・第一種低層住居専用地域・敷地約45坪・LDK約16帖 |
| JR Yokohama Line "Naruse" station within walking distance. Since it is a first-class low-rise exclusive residential area that has been consideration for living environment, You can you live in a calm environment. The site is spacious about 45 square meters. About 16 Pledge of LDK is open enough feeling. You can relax leisurely you aligned your family. In face-to-face kitchen living room overlooking while dishes, Guests can enjoy while taking communication. Also it gives the a balcony on the north side in order to enjoy the view. A neighbor together Please Visit the local. Please do not hesitate to contact us. JR横浜線「成瀬」駅徒歩圏内。住環境に配慮された第一種低層住居専用地域ですので、落ち着いた環境の中でお住まいいただけます。敷地は広々約45坪。約16帖のLDKは開放感たっぷり。ご家族揃ってゆったりとお寛ぎいただけます。お料理をしながらリビングが見渡せる対面キッチンで、コミュニケーションを取りながら楽しく過ごせます。見晴らしを楽しむために北側にもバルコニーを設置してあります。近隣と合わせて是非現地をご覧下さい。どうぞお気軽にお問い合わせ下さい。 |
Price 価格 | | 35,800,000 yen 3580万円 | Floor plan 間取り | | 3LDK 3LDK | Units sold 販売戸数 | | 1 units 1戸 | Land area 土地面積 | | 150.98 sq m (measured) 150.98m2(実測) | Building area 建物面積 | | 91.99 sq m (measured) 91.99m2(実測) | Driveway burden-road 私道負担・道路 | | Nothing 無 | Completion date 完成時期(築年月) | | September 2013 2013年9月 | Address 住所 | | Tokyo Machida Kanamori East 1 東京都町田市金森東1 | Traffic 交通 | | JR Yokohama Line "Naruse" walk 15 minutes JR横浜線「成瀬」歩15分
| Related links 関連リンク | | [Related Sites of this company] 【この会社の関連サイト】 | Contact お問い合せ先 | | TEL: 0800-805-6223 [Toll free] mobile phone ・ Also available from PHS Caller ID is not notified Please contact the "saw SUUMO (Sumo)" If it does not lead, If the real estate company TEL:0800-805-6223【通話料無料】携帯電話・PHSからもご利用いただけます 発信者番号は通知されません 「SUUMO(スーモ)を見た」と問い合わせください つながらない方、不動産会社の方は
| Building coverage, floor area ratio 建ぺい率・容積率 | | 40% ・ 80% 40%・80% | Time residents 入居時期 | | Consultation 相談 | Land of the right form 土地の権利形態 | | Ownership 所有権 | Structure and method of construction 構造・工法 | | Wooden 2-story 木造2階建 | Use district 用途地域 | | One low-rise 1種低層 | Overview and notices その他概要・特記事項 | | Facilities: Public Water Supply, This sewage, Individual LPG, Building confirmation number: No. 01381, Parking: No 設備:公営水道、本下水、個別LPG、建築確認番号:01381号、駐車場:無 | Company profile 会社概要 | | <Mediation> Minister of Land, Infrastructure and Transport (3) The 006,183 No. housing Information Center Machida Seongnam Construction (Ltd.) Yubinbango194-0023 Machida, Tokyo Asahimachi 1-25-20 <仲介>国土交通大臣(3)第006183号住宅情報館 町田店城南建設(株)〒194-0023 東京都町田市旭町1-25-20 |
Local appearance photo現地外観写真  Local Photos
現地写真
 Local Photos
現地写真
 Local Photos
現地写真
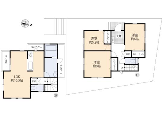
Floor plan間取り図  35,800,000 yen, 3LDK, Land area 150.98 sq m , Building area 91.99 sq m floor plan
3580万円、3LDK、土地面積150.98m2、建物面積91.99m2 間取り図
Local appearance photo現地外観写真  Local Photos
現地写真
 Local Photos
現地写真
Location
|