New Homes » Kanto » Tokyo » Machida
 
| | Machida, Tokyo 東京都町田市 |
| Odakyu line "Machida" bus 17 minutes seminary walk 3 minutes 小田急線「町田」バス17分神学校歩3分 |
| Good per yang in all Building south road 1 ・ It became the Building 2 price change ☆ Car (by car) space parking two possible are accepted preview book 全号棟南側道路にて陽当たり良好です1・2号棟価格変更となりました☆カースペース駐車2台可能(車種による)内覧予約受け付けております |
| Parking two Allowed, Immediate Available, Facing south, System kitchen, Yang per good, All room storage, Siemens south road, A quiet residential area, Corner lotese-style room, Shaping land, Washbasin with shower, Face-to-face kitchen, Toilet 2 places, Bathroom 1 tsubo or more, 2-story, South balcony, Warm water washing toilet seat, Underfloor Storage, The window in the bathroom, TV monitor interphone, Mu front building, Ventilation good, Walk-in closet, Movable partition 駐車2台可、即入居可、南向き、システムキッチン、陽当り良好、全居室収納、南側道路面す、閑静な住宅地、角地、和室、整形地、シャワー付洗面台、対面式キッチン、トイレ2ヶ所、浴室1坪以上、2階建、南面バルコニー、温水洗浄便座、床下収納、浴室に窓、TVモニタ付インターホン、前面棟無、通風良好、ウォークインクロゼット、可動間仕切り |
Local guide map 現地案内図 | | Local guide map 現地案内図 | Features pickup 特徴ピックアップ | | Parking two Allowed / Immediate Available / Facing south / System kitchen / Yang per good / All room storage / Siemens south road / A quiet residential area / Corner lot / Japanese-style room / Shaping land / Washbasin with shower / Face-to-face kitchen / Toilet 2 places / Bathroom 1 tsubo or more / 2-story / South balcony / Warm water washing toilet seat / Underfloor Storage / The window in the bathroom / TV monitor interphone / Mu front building / Ventilation good / Walk-in closet / Movable partition 駐車2台可 /即入居可 /南向き /システムキッチン /陽当り良好 /全居室収納 /南側道路面す /閑静な住宅地 /角地 /和室 /整形地 /シャワー付洗面台 /対面式キッチン /トイレ2ヶ所 /浴室1坪以上 /2階建 /南面バルコニー /温水洗浄便座 /床下収納 /浴室に窓 /TVモニタ付インターホン /前面棟無 /通風良好 /ウォークインクロゼット /可動間仕切り | Property name 物件名 | | Libre Garden Nozuta cho リーブルガーデン 野津田町 | Price 価格 | | 27,800,000 yen ~ 28.8 million yen 2780万円 ~ 2880万円 | Floor plan 間取り | | 3LDK + S (storeroom) ~ 4LDK 3LDK+S(納戸) ~ 4LDK | Units sold 販売戸数 | | 3 units 3戸 | Total units 総戸数 | | 3 units 3戸 | Land area 土地面積 | | 102.88 sq m ~ 102.99 sq m (31.12 tsubo ~ 31.15 square meters) 102.88m2 ~ 102.99m2(31.12坪 ~ 31.15坪) | Building area 建物面積 | | 100.19 sq m ~ 101.02 sq m (30.30 tsubo ~ 30.55 square meters) 100.19m2 ~ 101.02m2(30.30坪 ~ 30.55坪) | Completion date 完成時期(築年月) | | September 2013 2013年9月 | Address 住所 | | Machida, Tokyo Nozuta cho 269-6 東京都町田市野津田町269-6 | Traffic 交通 | | Odakyu line "Machida" bus 17 minutes seminary walk 3 minutes JR Yokohama Line "Machida" bus 17 minutes seminary walk 3 minutes JR Yokohama Line "Kobuchi" walk 58 minutes 小田急線「町田」バス17分神学校歩3分 JR横浜線「町田」バス17分神学校歩3分 JR横浜線「古淵」歩58分
| Person in charge 担当者より | | Rep Hirokawa AkiraYu Age: 20's First of all, please tell us your requirements. We strive every day to be able to eliminate the anxiety about everyone of the real estate. We always have to act thinking or get used to your position. We look forward to seeing you to everyone. 担当者廣川 亮佑年齢:20代まずはご要望をお聞かせ下さい。皆様の不動産に関する不安を解消出来るよう日々努めております。常にお客様の立場になれるかを考えて行動しております。皆様にお会い出来るのを楽しみにしております。 | Contact お問い合せ先 | | TEL: 0800-602-6392 [Toll free] mobile phone ・ Also available from PHS Caller ID is not notified Please contact the "saw SUUMO (Sumo)" If it does not lead, If the real estate company TEL:0800-602-6392【通話料無料】携帯電話・PHSからもご利用いただけます 発信者番号は通知されません 「SUUMO(スーモ)を見た」と問い合わせください つながらない方、不動産会社の方は
| Time residents 入居時期 | | Immediate available 即入居可 | Land of the right form 土地の権利形態 | | Ownership 所有権 | Structure and method of construction 構造・工法 | | Wooden 2-story 木造2階建 | Use district 用途地域 | | One low-rise 1種低層 | Overview and notices その他概要・特記事項 | | Contact: Hirokawa AkiraYu 担当者:廣川 亮佑 | Company profile 会社概要 | | <Sales tie-up (recovery agency)> Governor of Tokyo (1) No. 093781 (stock) Asahi real estate sales Yubinbango194-0022 Machida, Tokyo Morino 5-12-16 <販売提携(復代理)>東京都知事(1)第093781号(株)あさひ不動産販売〒194-0022 東京都町田市森野5-12-16 |
 Local appearance photo
現地外観写真
 Kitchen
キッチン
 Living
リビング
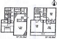
Floor plan間取り図  (1 Building), Price 28.8 million yen, 4LDK+S, Land area 102.99 sq m , Building area 101.02 sq m
(1号棟)、価格2880万円、4LDK+S、土地面積102.99m2、建物面積101.02m2
 Local appearance photo
現地外観写真
 Bathroom
浴室
 Non-living room
リビング以外の居室
 Entrance
玄関
 Wash basin, toilet
洗面台・洗面所
 Receipt
収納
 Toilet
トイレ
 Local photos, including front road
前面道路含む現地写真
 Balcony
バルコニー
 Local guide map
現地案内図
 Other
その他
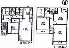
 (Building 2), Price 27,800,000 yen, 3LDK+S, Land area 102.98 sq m , Building area 100.19 sq m
(2号棟)、価格2780万円、3LDK+S、土地面積102.98m2、建物面積100.19m2
Local appearance photo現地外観写真  Shooting Building 2
撮影 2号棟
 Non-living room
リビング以外の居室
 Receipt
収納
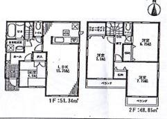
Floor plan間取り図  (3 Building), Price 28,300,000 yen, 4LDK, Land area 102.99 sq m , Building area 100.19 sq m
(3号棟)、価格2830万円、4LDK、土地面積102.99m2、建物面積100.19m2
 Non-living room
リビング以外の居室
Location
|