|
|
Machida, Tokyo
東京都町田市
|
|
Odakyu line "Machida" bus 13 minutes Awashima park entrance walk 1 minute
小田急線「町田」バス13分淡島公園入口歩1分
|
|
Before road 9m public road Southeast Hito good Two car space LDK17 quires more Floor heating Face-to-face kitchen Dishwasher Bathroom Dryer Flat 35S Available
前道9m公道 南東向き 陽当良好 カースペース2台 LDK17帖以上 床暖房 対面キッチン 食洗器 浴室乾燥機 フラット35S利用可
|
|
◆ [T point gift] In customer who Inquiry, If you visit us to our [600 Points] Presentation in!
◆【Tポイントプレゼント】お問い合わせ頂いたお客様で、当社までご来社頂くと【600ポイント】進呈中!
|
Features pickup 特徴ピックアップ | | Corresponding to the flat-35S / Parking two Allowed / 2 along the line more accessible / System kitchen / Bathroom Dryer / Yang per good / All room storage / A quiet residential area / LDK15 tatami mats or more / Or more before road 6m / Japanese-style room / Shaping land / Washbasin with shower / Face-to-face kitchen / Toilet 2 places / 2-story / Southeast direction / South balcony / Warm water washing toilet seat / Underfloor Storage / TV monitor interphone / Dish washing dryer / City gas / All rooms are two-sided lighting / Attic storage / Floor heating / Readjustment land within フラット35Sに対応 /駐車2台可 /2沿線以上利用可 /システムキッチン /浴室乾燥機 /陽当り良好 /全居室収納 /閑静な住宅地 /LDK15畳以上 /前道6m以上 /和室 /整形地 /シャワー付洗面台 /対面式キッチン /トイレ2ヶ所 /2階建 /東南向き /南面バルコニー /温水洗浄便座 /床下収納 /TVモニタ付インターホン /食器洗乾燥機 /都市ガス /全室2面採光 /屋根裏収納 /床暖房 /区画整理地内 |
Price 価格 | | 38,800,000 yen 3880万円 |
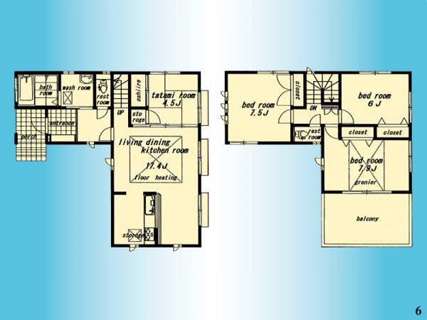
Floor plan 間取り | | 4LDK 4LDK |
Units sold 販売戸数 | | 1 units 1戸 |
Total units 総戸数 | | 6 units 6戸 |
Land area 土地面積 | | 150.21 sq m (measured) 150.21m2(実測) |
Building area 建物面積 | | 101.85 sq m (measured) 101.85m2(実測) |
Driveway burden-road 私道負担・道路 | | Nothing, Northwest 9m width 無、北西9m幅 |
Completion date 完成時期(築年月) | | September 2013 2013年9月 |
Address 住所 | | Machida Negishi Tokyo 1 東京都町田市根岸1 |
Traffic 交通 | | Odakyu line "Machida" bus 13 minutes Awashima park entrance walk 1 minute JR Yokohama Line "Machida" bus 13 minutes Awashima park entrance walk 1 minute JR Yokohama Line "Fuchinobe" walk 26 minutes 小田急線「町田」バス13分淡島公園入口歩1分 JR横浜線「町田」バス13分淡島公園入口歩1分 JR横浜線「淵野辺」歩26分
|
Related links 関連リンク | | [Related Sites of this company] 【この会社の関連サイト】 |
Contact お問い合せ先 | | TEL: 0800-809-8968 [Toll free] mobile phone ・ Also available from PHS Caller ID is not notified Please contact the "saw SUUMO (Sumo)" If it does not lead, If the real estate company TEL:0800-809-8968【通話料無料】携帯電話・PHSからもご利用いただけます 発信者番号は通知されません 「SUUMO(スーモ)を見た」と問い合わせください つながらない方、不動産会社の方は
|
Building coverage, floor area ratio 建ぺい率・容積率 | | Fifty percent ・ Hundred percent 50%・100% |
Time residents 入居時期 | | Consultation 相談 |
Land of the right form 土地の権利形態 | | Ownership 所有権 |
Structure and method of construction 構造・工法 | | Wooden 2-story 木造2階建 |
Use district 用途地域 | | One low-rise 1種低層 |
Overview and notices その他概要・特記事項 | | Facilities: Public Water Supply, This sewage, City gas, Building confirmation number: 02058-01, Parking: car space 設備:公営水道、本下水、都市ガス、建築確認番号:02058-01、駐車場:カースペース |
Company profile 会社概要 | | <Mediation> Governor of Kanagawa Prefecture (1) No. 028034 (Corporation) Tokyo Metropolitan Government Building Lots and Buildings Transaction Business Association (Corporation) metropolitan area real estate Fair Trade Council member Universal Housing Sales Co., Ltd. Sales Division 2 Yubinbango252-0344 Sagamihara City, Kanagawa Prefecture, Minami-ku, Kobuchi 4-5-25 <仲介>神奈川県知事(1)第028034号(公社)東京都宅地建物取引業協会会員 (公社)首都圏不動産公正取引協議会加盟ユニバーサル住宅販売(株)営業2課〒252-0344 神奈川県相模原市南区古淵4-5-25 |