New Homes » Kanto » Tokyo » Machida
 
| | Machida, Tokyo 東京都町田市 |
| JR Yokohama Line "Fuchinobe" walk 22 minutes JR横浜線「淵野辺」歩22分 |
| ■ 22-minute walk from the train station. ■ All room 6 quires more. ■ 1F floor heater. ■ Tadao first elementary school ■ Tadao junior high school ■駅から徒歩22分。■全居室6帖以上。■1Fフロアーヒーター。■忠生第一小学校■忠生中学校 |
| 2 along the line more accessible, LDK18 tatami mats or more, System kitchen, All room storageese-style room, Washbasin with shower, Toilet 2 places, 2-story, South balcony, Warm water washing toilet seat, Underfloor Storage, The window in the bathroom, TV monitor interphone, Southwestward, Dish washing dryer, All room 6 tatami mats or more, Attic storage, Floor heater 2沿線以上利用可、LDK18畳以上、システムキッチン、全居室収納、和室、シャワー付洗面台、トイレ2ヶ所、2階建、南面バルコニー、温水洗浄便座、床下収納、浴室に窓、TVモニタ付インターホン、南西向き、食器洗乾燥機、全居室6畳以上、屋根裏収納、フロアーヒーター |
Features pickup 特徴ピックアップ | | 2 along the line more accessible / LDK18 tatami mats or more / System kitchen / All room storage / Japanese-style room / Washbasin with shower / Toilet 2 places / 2-story / South balcony / Warm water washing toilet seat / Underfloor Storage / The window in the bathroom / TV monitor interphone / Southwestward / Dish washing dryer / All room 6 tatami mats or more / Attic storage 2沿線以上利用可 /LDK18畳以上 /システムキッチン /全居室収納 /和室 /シャワー付洗面台 /トイレ2ヶ所 /2階建 /南面バルコニー /温水洗浄便座 /床下収納 /浴室に窓 /TVモニタ付インターホン /南西向き /食器洗乾燥機 /全居室6畳以上 /屋根裏収納 | Price 価格 | | 42,300,000 yen 4230万円 | Floor plan 間取り | | 4LDK 4LDK | Units sold 販売戸数 | | 1 units 1戸 | Total units 総戸数 | | 2 units 2戸 | Land area 土地面積 | | 155.46 sq m 155.46m2 | Building area 建物面積 | | 104.12 sq m 104.12m2 | Driveway burden-road 私道負担・道路 | | Public road northeast 12m. 公道北東12m。 | Completion date 完成時期(築年月) | | March 2014 schedule 2014年3月予定 | Address 住所 | | Tokyo Machida Negishi 1- 東京都町田市根岸1- | Traffic 交通 | | JR Yokohama Line "Fuchinobe" walk 22 minutes Odakyu line "Machida" bus 13 minutes Awashima park entrance walk 3 minutes JR Yokohama Line "Kobuchi" walk 29 minutes JR横浜線「淵野辺」歩22分 小田急線「町田」バス13分淡島公園入口歩3分 JR横浜線「古淵」歩29分
| Related links 関連リンク | | [Related Sites of this company] 【この会社の関連サイト】 | Person in charge 担当者より | | Person in charge of real-estate and building Oshima Pass Age: 30 Daigyokai experience: As a 11-year good advisor We look forward to meeting with customers. 担当者宅建大島 渡年齢:30代業界経験:11年良きアドバイザーとしてお客様との出会いを楽しみにしております。 | Contact お問い合せ先 | | TEL: 0800-603-8081 [Toll free] mobile phone ・ Also available from PHS Caller ID is not notified Please contact the "saw SUUMO (Sumo)" If it does not lead, If the real estate company TEL:0800-603-8081【通話料無料】携帯電話・PHSからもご利用いただけます 発信者番号は通知されません 「SUUMO(スーモ)を見た」と問い合わせください つながらない方、不動産会社の方は
| Building coverage, floor area ratio 建ぺい率・容積率 | | Kenpei rate: 50%, Volume ratio: 100% 建ペい率:50%、容積率:100% | Time residents 入居時期 | | Consultation 相談 | Land of the right form 土地の権利形態 | | Ownership 所有権 | Use district 用途地域 | | One low-rise 1種低層 | Land category 地目 | | Residential land 宅地 | Other limitations その他制限事項 | | Height district 高度地区 | Overview and notices その他概要・特記事項 | | Contact: Oshima Passed, Building confirmation number: H25A-JK. 担当者:大島 渡、建築確認番号:H25A-JK.eM00627-01号 | Company profile 会社概要 | | <Mediation> Minister of Land, Infrastructure and Transport (1) the first 008,178 No. Century 21 living style (Ltd.) Machida Yubinbango194-0022 Tokyo Machida Morino 4-15-12 <仲介>国土交通大臣(1)第008178号センチュリー21リビングスタイル(株)町田店〒194-0022 東京都町田市森野4-15-12 |
 Local appearance photo
現地外観写真
 Local photos, including front road
前面道路含む現地写真
 Local appearance photo
現地外観写真
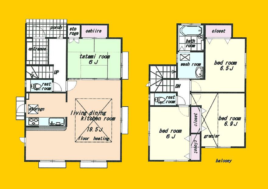
Floor plan間取り図  (Building 2), Price 42,300,000 yen, 4LDK, Land area 155.46 sq m , Building area 104.12 sq m
(2号棟)、価格4230万円、4LDK、土地面積155.46m2、建物面積104.12m2
 Local appearance photo
現地外観写真
Shopping centreショッピングセンター  509m until Amelia Machida Negishi shopping center
アメリア町田根岸ショッピングセンターまで509m
 The entire compartment Figure
全体区画図
Supermarketスーパー  809m to Super Sanwa Tadao shop
スーパー三和忠生店まで809m
Junior high school中学校  799m until Machida Municipal Tadao junior high school
町田市立忠生中学校まで799m
Primary school小学校  Tadao 1000m until the first elementary school
忠生第一小学校まで1000m
Kindergarten ・ Nursery幼稚園・保育園  983m until the child nursery of Light
ひかりの子保育園まで983m
Station駅  1800m to Fuchinobe Station
淵野辺駅まで1800m
Location
|