2013October
42,400,000 yen, 3LDK, 125.46 sq m
New Homes » Kanto » Tokyo » Machida
 
| | Machida, Tokyo 東京都町田市 |
| Odakyu line "Machida" bus 10 Bun'ue inn walk 2 minutes 小田急線「町田」バス10分上宿歩2分 |
Price 価格 | | 42,400,000 yen 4240万円 | Floor plan 間取り | | 3LDK 3LDK | Units sold 販売戸数 | | 1 units 1戸 | Land area 土地面積 | | 93.87 sq m (measured) 93.87m2(実測) | Building area 建物面積 | | 125.46 sq m (measured), Among the first floor garage 13.04 sq m 125.46m2(実測)、うち1階車庫13.04m2 | Driveway burden-road 私道負担・道路 | | Nothing 無 | Completion date 完成時期(築年月) | | October 2013 2013年10月 | Address 住所 | | Machida, Tokyo Tadao 1 東京都町田市忠生1 | Traffic 交通 | | Odakyu line "Machida" bus 10 Bun'ue inn walk 2 minutes JR Yokohama Line "Machida" bus 10 Bun'ue inn walk 2 minutes 小田急線「町田」バス10分上宿歩2分 JR横浜線「町田」バス10分上宿歩2分
| Contact お問い合せ先 | | TEL: 0800-805-6223 [Toll free] mobile phone ・ Also available from PHS Caller ID is not notified Please contact the "saw SUUMO (Sumo)" If it does not lead, If the real estate company TEL:0800-805-6223【通話料無料】携帯電話・PHSからもご利用いただけます 発信者番号は通知されません 「SUUMO(スーモ)を見た」と問い合わせください つながらない方、不動産会社の方は
| Building coverage, floor area ratio 建ぺい率・容積率 | | 70% ・ 200% 70%・200% | Time residents 入居時期 | | Consultation 相談 | Land of the right form 土地の権利形態 | | Ownership 所有権 | Structure and method of construction 構造・工法 | | Wooden 2-story 木造2階建 | Use district 用途地域 | | Semi-industrial 準工業 | Other limitations その他制限事項 | | Building area in the garage part about 13.04m2 including 建物面積内車庫部分約13.04m2含 | Overview and notices その他概要・特記事項 | | Facilities: Public Water Supply, This sewage, City gas, Parking: Garage 設備:公営水道、本下水、都市ガス、駐車場:車庫 | Company profile 会社概要 | | <Mediation> Minister of Land, Infrastructure and Transport (3) The 006,183 No. housing Information Center Machida Seongnam Construction (Ltd.) Yubinbango194-0023 Machida, Tokyo Asahimachi 1-25-20 <仲介>国土交通大臣(3)第006183号住宅情報館 町田店城南建設(株)〒194-0023 東京都町田市旭町1-25-20 |
Local appearance photo現地外観写真  Building appearance
建物外観
 Local Photos
現地写真
Other localその他現地  Tokyo Metropolitan Machida Technical High School 1 minute walk (about 80m)
東京都立町田工業高等学校 徒歩1分(約80m)
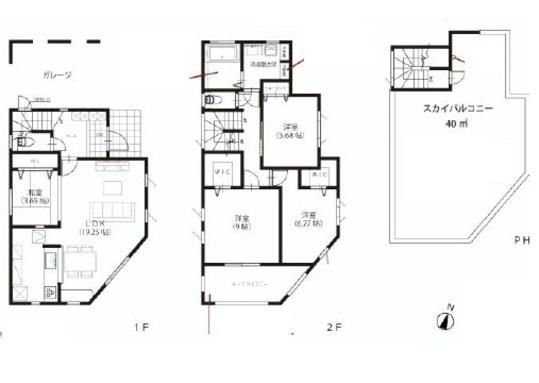
Floor plan間取り図  42,400,000 yen, 3LDK, Land area 93.87 sq m , Building area 125.46 sq m floor plan
4240万円、3LDK、土地面積93.87m2、建物面積125.46m2 間取図
Local appearance photo現地外観写真  Building appearance
建物外観
 Local Photos
現地写真
Location
|