New Homes » Kanto » Tokyo » Machida
 
| | Machida, Tokyo 東京都町田市 |
| JR Yokohama Line "Naruse" walk 12 minutes JR横浜線「成瀬」歩12分 |
| This is an introduction from the information net that want to live. Site area 49 square meters, With underground garage. Living environment is good. South-facing per well per yang. 住みたい情報ネットからのご紹介です。敷地面積49坪、地下車庫付。住環境良好です。南向きにつき陽当たり良好。 |
| House hunting in the city that want to live in ・ ・ ・ Please leave the information net that want to live. 住みたい街の家探しは・・・住みたい情報ネットにお任せ下さい。 |
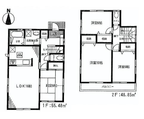
Features pickup 特徴ピックアップ | | Immediate Available / Facing south / Bathroom Dryer / Yang per good / A quiet residential area / LDK15 tatami mats or more / Face-to-face kitchen / 2-story / Warm water washing toilet seat / TV monitor interphone / Water filter / City gas 即入居可 /南向き /浴室乾燥機 /陽当り良好 /閑静な住宅地 /LDK15畳以上 /対面式キッチン /2階建 /温水洗浄便座 /TVモニタ付インターホン /浄水器 /都市ガス | Price 価格 | | 43,800,000 yen 4380万円 | Floor plan 間取り | | 4LDK 4LDK | Units sold 販売戸数 | | 1 units 1戸 | Total units 総戸数 | | 2 units 2戸 | Land area 土地面積 | | 162.55 sq m (registration) 162.55m2(登記) | Building area 建物面積 | | 104.33 sq m (registration) 104.33m2(登記) | Driveway burden-road 私道負担・道路 | | Nothing, North 5m width 無、北5m幅 | Completion date 完成時期(築年月) | | November 2013 2013年11月 | Address 住所 | | Machida, Tokyo Kogasaka 1041-8 Chapter 12 東京都町田市高ケ坂1041―8第12 | Traffic 交通 | | JR Yokohama Line "Naruse" walk 12 minutes JR Yokohama Line "Machida" walk 25 minutes Odakyu line "Machida" walk 27 minutes JR横浜線「成瀬」歩12分 JR横浜線「町田」歩25分 小田急線「町田」歩27分
| Related links 関連リンク | | [Related Sites of this company] 【この会社の関連サイト】 | Person in charge 担当者より | | The first distribution division personnel Nakajima Seiichi Age: 30 Daigyokai Experience: 9-year customer of your ideal depicted housing will continue differently everyone. I generally ・ Objective eyes and Area ・ Professional knowledge accompanying the wayside of the housing ・ Market trends, also taking into account, We are allowed to make proposals to the customer under the motto of fun details 担当者第1流通事業部 中島成一年齢:30代業界経験:9年お客様が描かれている御理想の住宅は皆様異なって参ります。私は一般的・客観的な目線とエリア・沿線の住宅に付随した専門的知識・相場動向等も加味し、楽しく詳しくをモットーにお客様にご提案させて頂いております | Contact お問い合せ先 | | TEL: 0800-603-9093 [Toll free] mobile phone ・ Also available from PHS Caller ID is not notified Please contact the "saw SUUMO (Sumo)" If it does not lead, If the real estate company TEL:0800-603-9093【通話料無料】携帯電話・PHSからもご利用いただけます 発信者番号は通知されません 「SUUMO(スーモ)を見た」と問い合わせください つながらない方、不動産会社の方は
| Building coverage, floor area ratio 建ぺい率・容積率 | | 40% ・ 80% 40%・80% | Time residents 入居時期 | | Immediate available 即入居可 | Land of the right form 土地の権利形態 | | Ownership 所有権 | Structure and method of construction 構造・工法 | | Wooden 2-story 木造2階建 | Use district 用途地域 | | One low-rise 1種低層 | Overview and notices その他概要・特記事項 | | The person in charge: first distribution business unit Nakajima Seiichi, Facilities: Public Water Supply, This sewage, City gas, Parking: car space 担当者:第1流通事業部 中島成一、設備:公営水道、本下水、都市ガス、駐車場:カースペース | Company profile 会社概要 | | <Mediation> Governor of Tokyo (1) the first 090,169 No. live want information net (Ltd.) Sumitai headquarters Yubinbango194-0013 Machida, Tokyo Haramachida 1-1-3 high stone building the fourth floor <仲介>東京都知事(1)第090169号住みたい情報ネット(株)スミタイ本社〒194-0013 東京都町田市原町田1-1-3 ハイストーンビル4階 |
 Local appearance photo
現地外観写真
 Local appearance photo
現地外観写真
Floor plan間取り図  43,800,000 yen, 4LDK, Land area 162.55 sq m , Building area 104.33 sq m
4380万円、4LDK、土地面積162.55m2、建物面積104.33m2
 Living
リビング
 Bathroom
浴室
 Kitchen
キッチン
Other Environmental Photoその他環境写真  960m to Naruse Station
成瀬駅まで960m
Compartment figure区画図  43,800,000 yen, 4LDK, Land area 162.55 sq m , Building area 104.33 sq m
4380万円、4LDK、土地面積162.55m2、建物面積104.33m2
Other Environmental Photoその他環境写真  960m to Naruse Station
成瀬駅まで960m
 960m to Naruse Station
成瀬駅まで960m
Location
|