New Homes » Kanto » Tokyo » Machida
 
| | Machida, Tokyo 東京都町田市 |
| JR Yokohama Line "Aihara" walk 25 minutes JR横浜線「相原」歩25分 |
| ◎ south terraced ◎ Nantei more than 10 square meters ・ Wood deck ◎ parking two Allowed ◎ Grenier ◎ fingerprint authentication key ◎ view good ◎南ひな壇 ◎南庭10坪以上・ウッドデッキ ◎駐車2台可 ◎グルニエ ◎指紋認証キー ◎眺望良好 |
| ◆ Also it comes with a wood deck in the spacious Nantei ◆ Good hit Tsukehi south tiers ◆ Security is also safe in the fingerprint authentication key ◆広々した南庭にはウッドデッキも付いています◆南ひな壇に付陽当たり良好◆指紋認証キーでセキュリティも安心です |
Features pickup 特徴ピックアップ | | Corresponding to the flat-35S / Parking two Allowed / Land 50 square meters or more / Fiscal year Available / Energy-saving water heaters / Super close / Facing south / System kitchen / Yang per good / All room storage / Japanese-style room / Garden more than 10 square meters / Mist sauna / garden / Washbasin with shower / Face-to-face kitchen / Security enhancement / Barrier-free / Toilet 2 places / Bathroom 1 tsubo or more / 2-story / South balcony / Double-glazing / Otobasu / Warm water washing toilet seat / TV with bathroom / Nantei / Underfloor Storage / The window in the bathroom / TV monitor interphone / Ventilation good / All living room flooring / Wood deck / Dish washing dryer / Water filter / All rooms are two-sided lighting / Located on a hill / Attic storage フラット35Sに対応 /駐車2台可 /土地50坪以上 /年度内入居可 /省エネ給湯器 /スーパーが近い /南向き /システムキッチン /陽当り良好 /全居室収納 /和室 /庭10坪以上 /ミストサウナ /庭 /シャワー付洗面台 /対面式キッチン /セキュリティ充実 /バリアフリー /トイレ2ヶ所 /浴室1坪以上 /2階建 /南面バルコニー /複層ガラス /オートバス /温水洗浄便座 /TV付浴室 /南庭 /床下収納 /浴室に窓 /TVモニタ付インターホン /通風良好 /全居室フローリング /ウッドデッキ /食器洗乾燥機 /浄水器 /全室2面採光 /高台に立地 /屋根裏収納 | Price 価格 | | 27,800,000 yen 2780万円 | Floor plan 間取り | | 4LDK 4LDK | Units sold 販売戸数 | | 1 units 1戸 | Total units 総戸数 | | 1 units 1戸 | Land area 土地面積 | | 181.75 sq m (54.97 tsubo) (measured) 181.75m2(54.97坪)(実測) | Building area 建物面積 | | 100.19 sq m (30.30 tsubo) (measured) 100.19m2(30.30坪)(実測) | Driveway burden-road 私道負担・道路 | | Road width: 4m, Asphaltic pavement, Alley-like portion Available: 25.54 square meters (14%) 道路幅:4m、アスファルト舗装、路地状部分有:25.54平米(14%) | Completion date 完成時期(築年月) | | Mid-scheduled February 2014 2014年2月中旬予定 | Address 住所 | | Machida, Tokyo Aihara-cho 東京都町田市相原町 | Traffic 交通 | | JR Yokohama Line "Aihara" walk 25 minutes JR横浜線「相原」歩25分
| Related links 関連リンク | | [Related Sites of this company] 【この会社の関連サイト】 | Person in charge 担当者より | | [Regarding this property.] Asahi Land and Building Co., Ltd. Hachioji [0120-57-6313] Sales of Lesson 3 is Yamakoshi. Attached to the south tiers, Good new construction condominiums views and per yang! Since Nantei is more than 10 square meters, BBQ and home garden with your family, Pets also Omoikkiri Hashirimaware. 【この物件について】朝日土地建物(株)八王子店【0120-57-6313】営業3課の山越です。南ひな壇に付、陽当たりと眺望良好な新築分譲住宅!南庭は10坪以上あるので、ご家族でBBQや家庭菜園、ペットも思いっきり走り回れます。 | Contact お問い合せ先 | | TEL: 0800-601-5986 [Toll free] mobile phone ・ Also available from PHS Caller ID is not notified Please contact the "saw SUUMO (Sumo)" If it does not lead, If the real estate company TEL:0800-601-5986【通話料無料】携帯電話・PHSからもご利用いただけます 発信者番号は通知されません 「SUUMO(スーモ)を見た」と問い合わせください つながらない方、不動産会社の方は
| Sale schedule 販売スケジュール | | Will be sold on a first come, first served basis. Please contact us for more details. 先着順での販売となります。詳細はお問い合わせください。 | Building coverage, floor area ratio 建ぺい率・容積率 | | Kenpei rate: 40% ・ 80% 建ペい率:40%・80% | Time residents 入居時期 | | February 2014 late schedule 2014年2月下旬予定 | Land of the right form 土地の権利形態 | | Ownership 所有権 | Structure and method of construction 構造・工法 | | Wooden 2-story 木造2階建 | Use district 用途地域 | | One low-rise 1種低層 | Land category 地目 | | Residential land 宅地 | Other limitations その他制限事項 | | Regulations have by the Landscape Act, Height district, Height ceiling Yes, Site area minimum Yes, Shade limit Yes, Irregular land, On-site step Yes 景観法による規制有、高度地区、高さ最高限度有、敷地面積最低限度有、日影制限有、不整形地、敷地内段差有 | Overview and notices その他概要・特記事項 | | Building confirmation number: the H25 building certification No. KBI05496 建築確認番号:第H25確認建築KBI05496号 | Company profile 会社概要 | | <Mediation> Minister of Land, Infrastructure and Transport (7) No. 003744 No. Asahi Land and Building Co., Ltd. Hachioji business Lesson 3 Yubinbango192-0083 Hachioji, Tokyo Asahi-cho, 10-3 <仲介>国土交通大臣(7)第003744号朝日土地建物(株)八王子店営業3課〒192-0083 東京都八王子市旭町10-3 |
Other localその他現地  Local (12 May 2013) Shooting
現地(2013年12月)撮影
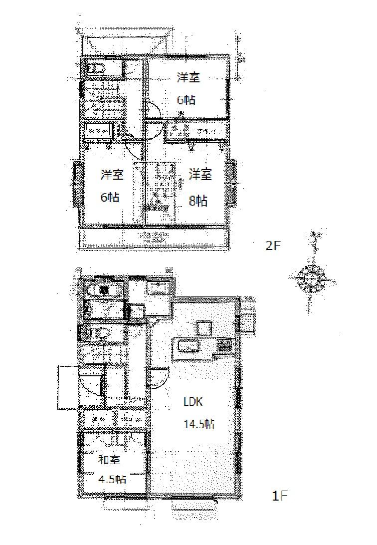
Floor plan間取り図  Price 27,800,000 yen, 4LDK, Land area 181.75 sq m , Building area 100.19 sq m
価格2780万円、4LDK、土地面積181.75m2、建物面積100.19m2
Otherその他  Children's Playground ・ Also equipped with crib. Please join us feel free to even small children.
キッズスペース・ベビーベッドも完備。小さなお子様連れでもお気軽にお越しください。
 Immediately out of the north exit of Hachioji Station ☆ Also equipped with tie-up parking lot ☆
八王子駅の北口を出てすぐ☆提携駐車場も完備☆
 Hachioji Bazaar venue
八王子店バザール会場
Junior high school中学校  1250m to Musashi Oka junior high school
武蔵岡中学校まで1250m
 The entire compartment Figure
全体区画図
Primary school小学校  Aihara until elementary school 1170m
相原小学校まで1170m
Hospital病院  Aihara 1330m to the hospital
相原病院まで1330m
Kindergarten ・ Nursery幼稚園・保育園  1690m to Clover nursery school
クローバー保育園まで1690m
Supermarketスーパー  Until Cupid store 840m
キューピットストアまで840m
Presentプレゼント  (For sale Support Campaign) The customers who got the request of the sale to the customer's wish "Asahi affection rice 2kg gift" is, It will be posted to your sale Listing to Sumo. ・ The customer contracts concluded "Asahi affection rice 5Kg gift" ・ soil ・ Day ・ In Bazaar venue for coming to the holiday "season of the bouquet" gift ※ The Bazaar venue, Ya baby bed We offer a Children's Playground. Even in young children, Please your coming in peace.
(ご売却応援キャンペーン) 売却のご依頼を頂いたお客様には『朝日あいじょう米2kgプレゼント』ご希望のお客様には、スーモにご売却物件を掲載いたします。・ご成約のお客様には『朝日あいじょう米5Kgプレゼント』・土・日・祝日にバザール会場ご来場で『季節の花束』プレゼント※バザール会場には、ベビーベッドや キッズスペースをご用意しております。 小さなお子様連れでも、安心してご来場ください。
Location
|