New Homes » Kanto » Tokyo » Machida
 
| | Machida, Tokyo 東京都町田市 |
| Keio Sagamihara Line "Tamasakai" walk 3 minutes 京王相模原線「多摩境」歩3分 |
| Siemens south road, Yang per good, Facing south, Flat to the station, A quiet residential area, It is close to the city, LDK20 tatami mats or more, System kitchen, Bathroom Dryerese-style room, Washbasin with shower, Toilet 2 places, 2-story, 南側道路面す、陽当り良好、南向き、駅まで平坦、閑静な住宅地、市街地が近い、LDK20畳以上、システムキッチン、浴室乾燥機、和室、シャワー付洗面台、トイレ2ヶ所、2階建、 |
| Siemens south road, Yang per good, Facing south, Flat to the station, A quiet residential area, It is close to the city, LDK20 tatami mats or more, System kitchen, Bathroom Dryerese-style room, Washbasin with shower, Toilet 2 places, 2-story, Double-glazing, Warm water washing toilet seat 南側道路面す、陽当り良好、南向き、駅まで平坦、閑静な住宅地、市街地が近い、LDK20畳以上、システムキッチン、浴室乾燥機、和室、シャワー付洗面台、トイレ2ヶ所、2階建、複層ガラス、温水洗浄便座 |
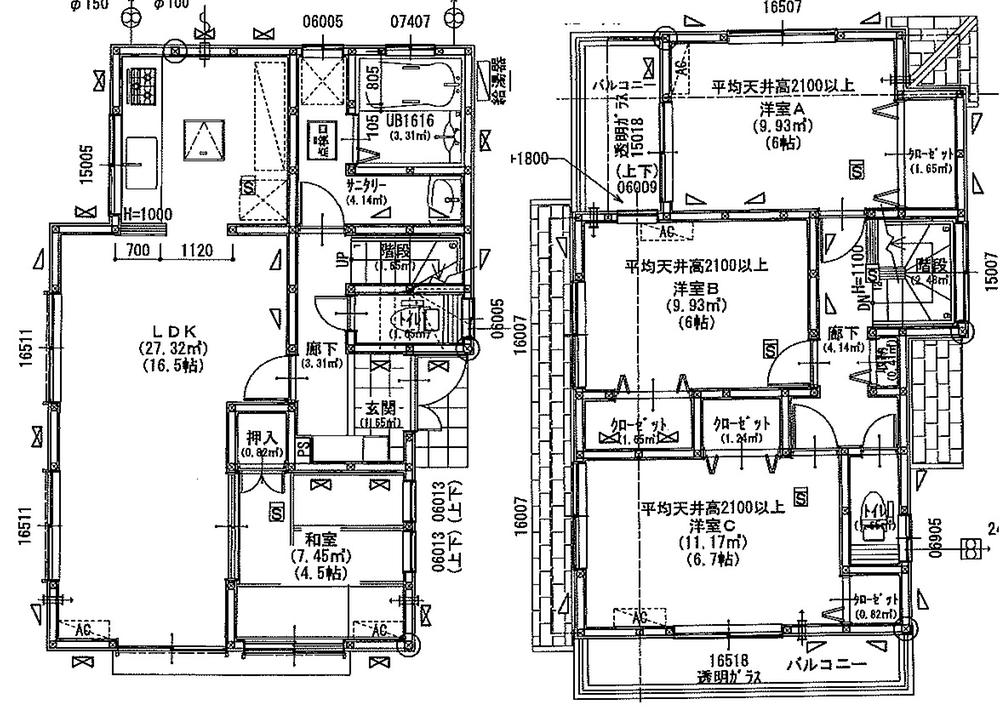
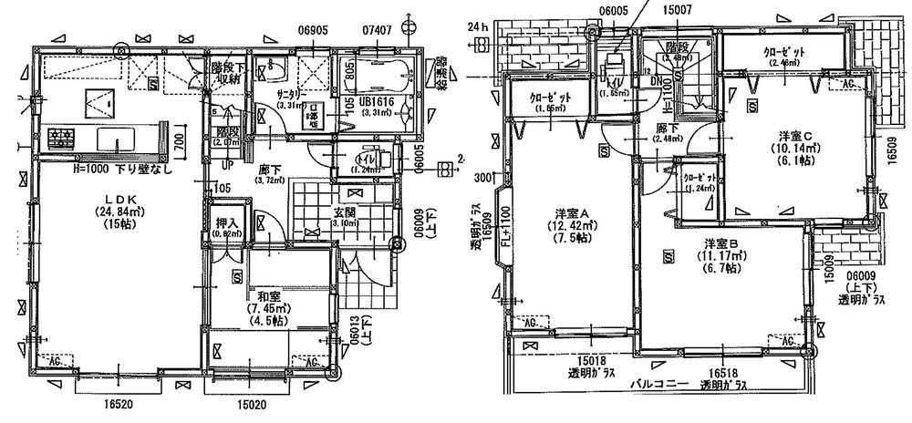
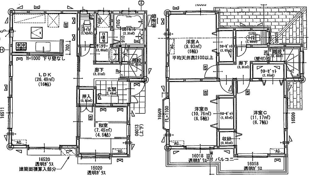
Features pickup 特徴ピックアップ | | Corresponding to the flat-35S / Pre-ground survey / LDK20 tatami mats or more / Fiscal year Available / Super close / It is close to the city / Facing south / System kitchen / Bathroom Dryer / Yang per good / Flat to the station / Siemens south road / A quiet residential area / Around traffic fewer / Corner lot / Japanese-style room / Shaping land / Washbasin with shower / Toilet 2 places / 2-story / South balcony / Double-glazing / Warm water washing toilet seat / Underfloor Storage / The window in the bathroom / TV monitor interphone / Ventilation good / City gas / Development subdivision in フラット35Sに対応 /地盤調査済 /LDK20畳以上 /年度内入居可 /スーパーが近い /市街地が近い /南向き /システムキッチン /浴室乾燥機 /陽当り良好 /駅まで平坦 /南側道路面す /閑静な住宅地 /周辺交通量少なめ /角地 /和室 /整形地 /シャワー付洗面台 /トイレ2ヶ所 /2階建 /南面バルコニー /複層ガラス /温水洗浄便座 /床下収納 /浴室に窓 /TVモニタ付インターホン /通風良好 /都市ガス /開発分譲地内 | Event information イベント情報 | | Local sales meetings (Please be sure to ask in advance) schedule / Every Saturday and Sunday 現地販売会(事前に必ずお問い合わせください)日程/毎週土日 | Price 価格 | | 43,800,000 yen ~ 46,800,000 yen 4380万円 ~ 4680万円 | Floor plan 間取り | | 4LDK 4LDK | Units sold 販売戸数 | | 5 units 5戸 | Total units 総戸数 | | 5 units 5戸 | Land area 土地面積 | | 125.21 sq m ~ 130 sq m (37.87 tsubo ~ 39.32 square meters) 125.21m2 ~ 130m2(37.87坪 ~ 39.32坪) | Building area 建物面積 | | 95.22 sq m ~ 96.88 sq m (28.80 tsubo ~ 29.30 square meters) 95.22m2 ~ 96.88m2(28.80坪 ~ 29.30坪) | Completion date 完成時期(築年月) | | March 2014 early schedule 2014年3月上旬予定 | Address 住所 | | Machida, Tokyo Oyama-cho 2583-5 東京都町田市小山町2583-5 | Traffic 交通 | | Keio Sagamihara Line "Tamasakai" walk 3 minutes Keio Sagamihara Line "Minami-Osawa" walk 30 minutes JR Yokohama Line "Sagamihara" walk 32 minutes 京王相模原線「多摩境」歩3分 京王相模原線「南大沢」歩30分 JR横浜線「相模原」歩32分
| Related links 関連リンク | | [Related Sites of this company] 【この会社の関連サイト】 | Person in charge 担当者より | | Rep Shimada Kenichi 担当者島田 憲一 | Contact お問い合せ先 | | Tester (Yes) TEL: 0800-805-6301 [Toll free] mobile phone ・ Also available from PHS Caller ID is not notified Please contact the "saw SUUMO (Sumo)" If it does not lead, If the real estate company テスタ(有)TEL:0800-805-6301【通話料無料】携帯電話・PHSからもご利用いただけます 発信者番号は通知されません 「SUUMO(スーモ)を見た」と問い合わせください つながらない方、不動産会社の方は
| Most price range 最多価格帯 | | 43,800,000 yen ・ 44,800,000 yen ・ 45,800,000 yen ・ 46,800,000 yen 4380万円台・4480万円台・4580万円台・4680万円台 | Building coverage, floor area ratio 建ぺい率・容積率 | | Building coverage 40%, Volume of 80% 建ぺい率40%、容積率80% | Time residents 入居時期 | | Consultation 相談 | Land of the right form 土地の権利形態 | | Ownership 所有権 | Structure and method of construction 構造・工法 | | Wooden 2-story 木造2階建 | Construction 施工 | | Tact Home Co., Ltd. タクトホーム(株) | Use district 用途地域 | | One low-rise 1種低層 | Land category 地目 | | Residential land 宅地 | Overview and notices その他概要・特記事項 | | Contact: Shimada Kenichi, Building confirmation number: TKK 確済 No. 13-1538, 1539 No., 1540 No., 1541 No., 1542 No. 担当者:島田 憲一、建築確認番号:TKK確済13-1538号、1539号、1540号、1541号、1542号 | Company profile 会社概要 | | <Marketing alliance (mediated)> Governor of Tokyo (2) No. 083005 tester (with) Yubinbango194-0031 Machida, Tokyo Minamioya 186-5 <販売提携(媒介)>東京都知事(2)第083005号テスタ(有)〒194-0031 東京都町田市南大谷186-5 |
Local appearance photo現地外観写真  Local (10 May 2013) Shooting
現地(2013年10月)撮影
 Local (10 May 2013) Shooting
現地(2013年10月)撮影
 Local (10 May 2013) Shooting
現地(2013年10月)撮影
 Local (10 May 2013) Shooting
現地(2013年10月)撮影
Station駅  Keio Sagamihara Line 200m until Tamasakai Station
京王相模原線 多摩境駅まで200m
Otherその他  1 Building
1号棟
Local appearance photo現地外観写真  Local (10 May 2013) Shooting
現地(2013年10月)撮影
Supermarketスーパー  750m to Super Alps Tamasakai shop
スーパーアルプス多摩境店まで750m
Otherその他  Building 2
2号棟
Local appearance photo現地外観写真  Local (10 May 2013) Shooting
現地(2013年10月)撮影
High school ・ College高校・高専  1200m until the Salesian Industrial Technical College
サレジオ工業高専まで1200m
Otherその他  Building 3
3号棟
Primary school小学校  400m Koyama until the hill elementary school
小山が丘小学校まで400m
Otherその他  4 Building
4号棟
Shopping centreショッピングセンター  Costco 950m until Tamasakai warehouse store
コストコ 多摩境倉庫店まで950m
Otherその他  5 Building
5号棟
Kindergarten ・ Nursery幼稚園・保育園  Tamasakai 300m until revered nursery
多摩境敬愛保育園まで300m
Hospital病院  290m to the clinic mall
クリニックモールまで290m
Streets around周辺の街並み  1600m to Starbucks Tamasakai shop
スターバックス多摩境店まで1600m
Location
|