New Homes » Kanto » Tokyo » Machida
 
| | Machida, Tokyo 東京都町田市 |
| Odakyu line "Tamagawa Gakuen before" walk 12 minutes 小田急線「玉川学園前」歩12分 |
| ☆ Land is about 59 square meters ・ 5LDK of building about 33.5 square meters ☆ Dish washing dryer ☆ Attic storage ☆ City gas ☆ Bathroom TV ☆ Mist sauna ☆ 3 Station Available ☆ South-facing balcony ☆ ☆土地が約59坪・建物約33.5坪の5LDK☆食器洗乾燥機☆小屋裏収納☆都市ガス☆浴室TV☆ミストサウナ☆3駅利用可能☆南向きバルコニー☆ |
| ☆ Land is about 59 square meters ・ 5LDK of building about 33.5 square meters ☆ Dish washing dryer ☆ Attic storage ☆ City gas ☆ Bathroom TV ☆ Mist sauna ☆ 3 Station Available ☆ South-facing balcony ☆ ☆土地が約59坪・建物約33.5坪の5LDK☆食器洗乾燥機☆小屋裏収納☆都市ガス☆浴室TV☆ミストサウナ☆3駅利用可能☆南向きバルコニー☆ |
Features pickup 特徴ピックアップ | | Corresponding to the flat-35S / 2 along the line more accessible / Land 50 square meters or more / LDK18 tatami mats or more / System kitchen / Bathroom Dryer / All room storage / A quiet residential area / Japanese-style room / Mist sauna / Washbasin with shower / Face-to-face kitchen / Wide balcony / Toilet 2 places / Bathroom 1 tsubo or more / 2-story / South balcony / Warm water washing toilet seat / TV with bathroom / Nantei / Underfloor Storage / The window in the bathroom / Leafy residential area / Dish washing dryer / Water filter / City gas / Attic storage フラット35Sに対応 /2沿線以上利用可 /土地50坪以上 /LDK18畳以上 /システムキッチン /浴室乾燥機 /全居室収納 /閑静な住宅地 /和室 /ミストサウナ /シャワー付洗面台 /対面式キッチン /ワイドバルコニー /トイレ2ヶ所 /浴室1坪以上 /2階建 /南面バルコニー /温水洗浄便座 /TV付浴室 /南庭 /床下収納 /浴室に窓 /緑豊かな住宅地 /食器洗乾燥機 /浄水器 /都市ガス /屋根裏収納 | Price 価格 | | 36.5 million yen 3650万円 | Floor plan 間取り | | 5LDK 5LDK | Units sold 販売戸数 | | 1 units 1戸 | Total units 総戸数 | | 1 units 1戸 | Land area 土地面積 | | 195.32 sq m (measured), Alley-like parts: 15% including, Inclined portion: 12.69% including 195.32m2(実測)、路地状部分:15%含、傾斜部分:12.69%含 | Building area 建物面積 | | 110.96 sq m (measured) 110.96m2(実測) | Driveway burden-road 私道負担・道路 | | Nothing, Southwest 5m width 無、南西5m幅 | Completion date 完成時期(築年月) | | July 2014 2014年7月 | Address 住所 | | Machida, Tokyo Higashitamagawagakuen 1 東京都町田市東玉川学園1 | Traffic 交通 | | Odakyu line "Tamagawa Gakuen before" walk 12 minutes Kodomonokunisen Tokyu "Children's World" walk 26 minutes JR Yokohama Line "Naruse" bus 9 minutes Higashitamagawagakuen 4-chome, walk 1 minute 小田急線「玉川学園前」歩12分 東急こどもの国線「こどもの国」歩26分 JR横浜線「成瀬」バス9分東玉川学園4丁目歩1分
| Related links 関連リンク | | [Related Sites of this company] 【この会社の関連サイト】 | Person in charge 担当者より | | Rep Murai Takeshi Age: 50 Daigyokai experience: the look for you live 25 years thoroughly ideal, It will help. It will help you find the ideal home together! 担当者村井 武年齢:50代業界経験:25年とことん理想のお住まいを探しを、お手伝い致します。一緒に理想の家を見つけましょう! | Contact お問い合せ先 | | TEL: 0800-603-0764 [Toll free] mobile phone ・ Also available from PHS Caller ID is not notified Please contact the "saw SUUMO (Sumo)" If it does not lead, If the real estate company TEL:0800-603-0764【通話料無料】携帯電話・PHSからもご利用いただけます 発信者番号は通知されません 「SUUMO(スーモ)を見た」と問い合わせください つながらない方、不動産会社の方は
| Building coverage, floor area ratio 建ぺい率・容積率 | | 40% ・ 80% 40%・80% | Time residents 入居時期 | | Consultation 相談 | Land of the right form 土地の権利形態 | | Ownership 所有権 | Structure and method of construction 構造・工法 | | Wooden 2-story 木造2階建 | Use district 用途地域 | | One low-rise 1種低層 | Other limitations その他制限事項 | | Regulations have by the Landscape Act, Residential land development construction regulation area, Height district, Height ceiling Yes, Site area minimum Yes, Shade limit Yes, Tamagawa Gakuen neighborhood association district construction agreement 景観法による規制有、宅地造成工事規制区域、高度地区、高さ最高限度有、敷地面積最低限度有、日影制限有、玉川学園町内会地区建築協約 | Overview and notices その他概要・特記事項 | | Contact: Murai Takeshi, Facilities: Public Water Supply, This sewage, City gas, Building confirmation number: 4029, Parking: car space 担当者:村井 武、設備:公営水道、本下水、都市ガス、建築確認番号:4029、駐車場:カースペース | Company profile 会社概要 | | <Mediation> Minister of Land, Infrastructure and Transport (7) No. 003744 (Corporation) Tokyo Metropolitan Government Building Lots and Buildings Transaction Business Association (Corporation) metropolitan area real estate Fair Trade Council member Asahi Land and Building Co., Ltd. Machida headquarters business Lesson 3 Yubinbango194-0013 Machida, Tokyo Haramachida 6-3-20 TK Machida building first floor <仲介>国土交通大臣(7)第003744号(公社)東京都宅地建物取引業協会会員 (公社)首都圏不動産公正取引協議会加盟朝日土地建物(株)町田本社営業3課〒194-0013 東京都町田市原町田6-3-20 TK町田ビル1階 |
Local appearance photo現地外観写真  appearance
外観
Otherその他  Neighborhood streets photo of the front road
前面道路の近隣街並み写真
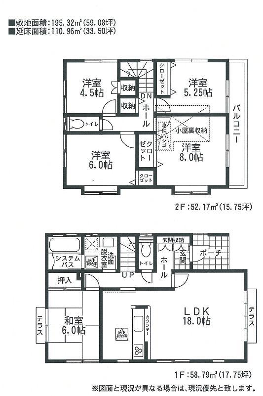
Floor plan間取り図  36.5 million yen, 5LDK, Land area 195.32 sq m , Building area 110.96 sq m 5LDK
3650万円、5LDK、土地面積195.32m2、建物面積110.96m2 5LDK
Station駅  Tamagawa Gakuenmae 960m to the Train Station
玉川学園前駅まで960m
Otherその他  There is our finest Bazaar venue to Machida Station 1-minute walk ☆ Please visit us feel free to contact in the middle after work or shopping
町田駅徒歩1分に当店自慢のバザール会場があります☆会社帰りやお買物途中にお気軽にお立ち寄り下さい
Primary school小学校  Narusedai until elementary school 1790m
成瀬台小学校まで1790m
Otherその他  It is equipped with a children's corner for the children do not get bored ☆ DVD also has a large number available
お子様が退屈しない為にキッズコーナーを完備しております☆DVDも多数ご用意してます
Junior high school中学校  Narusedai 1650m until junior high school
成瀬台中学校まで1650m
Otherその他  Please be assured that can be meeting while watching the children
お子様を見ながら打ち合わせ出来るのでご安心ください
 It is equipped with child seat for small children
小さいお子様用にチャイルドシートを完備しております
Location
|