|
|
Meguro-ku, Tokyo
東京都目黒区
|
|
Tokyu Toyoko Line "Metropolitan University" walk 9 minutes
東急東横線「都立大学」歩9分
|
|
Also out of sight Ordinance quasi-fireproof specifications, etc. is a jealousy housing. It also entered the finish interior. Can you because preview, Please feel free to contact us.
省令準耐火仕様等見えないところにも心配りのある住宅です。内装も仕上げに入っております。内見出来ますので、お気軽にお問い合わせ下さい。
|
|
Also out of sight Ordinance quasi-fireproof specifications, etc. is a jealousy housing. Terms and conditions, etc. Please feel free to contact us. There is an atmosphere that does not taste only in local. Can you because preview, Please feel free to contact us.
省令準耐火仕様等見えないところにも心配りのある住宅です。諸条件等お気軽にご相談下さい。現地でしか味わえない雰囲気がございます。内見出来ますので、お気軽にお問い合わせ下さい。
|
Features pickup 特徴ピックアップ | | Measures to conserve energy / Corresponding to the flat-35S / Vibration Control ・ Seismic isolation ・ Earthquake resistant / 2 along the line more accessible / LDK18 tatami mats or more / It is close to the city / System kitchen / Bathroom Dryer / Yang per good / All room storage / A quiet residential area / Face-to-face kitchen / Toilet 2 places / Bathroom 1 tsubo or more / 2-story / loft / All living room flooring / Dish washing dryer / All room 6 tatami mats or more / Water filter / Floor heating 省エネルギー対策 /フラット35Sに対応 /制震・免震・耐震 /2沿線以上利用可 /LDK18畳以上 /市街地が近い /システムキッチン /浴室乾燥機 /陽当り良好 /全居室収納 /閑静な住宅地 /対面式キッチン /トイレ2ヶ所 /浴室1坪以上 /2階建 /ロフト /全居室フローリング /食器洗乾燥機 /全居室6畳以上 /浄水器 /床暖房 |
Price 価格 | | 89,800,000 yen 8980万円 |
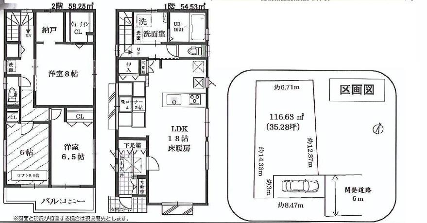
Floor plan 間取り | | 3LDK 3LDK |
Units sold 販売戸数 | | 1 units 1戸 |
Land area 土地面積 | | 116.63 sq m (registration) 116.63m2(登記) |
Building area 建物面積 | | 112.78 sq m (registration) 112.78m2(登記) |
Driveway burden-road 私道負担・道路 | | Nothing, East 6m width 無、東6m幅 |
Completion date 完成時期(築年月) | | December 2013 2013年12月 |
Address 住所 | | Meguro-ku, Tokyo Kakinokizaka 2 東京都目黒区柿の木坂2 |
Traffic 交通 | | Tokyu Toyoko Line "Metropolitan University" walk 9 minutes Tokyu Toyoko Line "liberal arts college" walk 15 minutes Denentoshi Tokyu "Komazawa" walk 26 minutes 東急東横線「都立大学」歩9分 東急東横線「学芸大学」歩15分 東急田園都市線「駒沢大学」歩26分
|
Related links 関連リンク | | [Related Sites of this company] 【この会社の関連サイト】 |
Person in charge 担当者より | | [Regarding this property.] Seismic Grade 3, It is the next-generation energy-saving housing. Because we do not do as well persistent sales, Please rest assured. We will correspond flexibly such terms and conditions. 【この物件について】耐震等級3、次世代省エネルギー住宅です。しつこい営業も致しておりませんので、ご安心下さい。諸条件等柔軟に対応させていただきます。 |
Contact お問い合せ先 | | TEL: 0800-602-6152 [Toll free] mobile phone ・ Also available from PHS Caller ID is not notified Please contact the "saw SUUMO (Sumo)" If it does not lead, If the real estate company TEL:0800-602-6152【通話料無料】携帯電話・PHSからもご利用いただけます 発信者番号は通知されません 「SUUMO(スーモ)を見た」と問い合わせください つながらない方、不動産会社の方は
|
Building coverage, floor area ratio 建ぺい率・容積率 | | Fifty percent ・ Hundred percent 50%・100% |
Time residents 入居時期 | | Consultation 相談 |
Land of the right form 土地の権利形態 | | Ownership 所有権 |
Structure and method of construction 構造・工法 | | Wooden 2-story 木造2階建 |
Use district 用途地域 | | One low-rise 1種低層 |
Other limitations その他制限事項 | | There is guaranteed under the line 線下保証あり |
Overview and notices その他概要・特記事項 | | Building confirmation number , Parking: car space 建築確認番号: 、駐車場:カースペース |
Company profile 会社概要 | | <Mediation> Governor of Tokyo (1) No. 093488 (Ltd.) K's home Yubinbango154-0011 Setagaya-ku, Tokyo excellent horse 1-15-3 <仲介>東京都知事(1)第093488号(株)ケーズホーム〒154-0011 東京都世田谷区上馬1-15-3 |