|
|
Meguro-ku, Tokyo
東京都目黒区
|
|
Tokyu Toyoko Line "Metropolitan University" walk 9 minutes
東急東横線「都立大学」歩9分
|
|
Next-generation energy-saving housing of seismic grade 3 acquisition
耐震等級3取得の次世代省エネルギー住宅
|
|
Yes Tokyu Toyoko Line "Metropolitan University" station 9 minute walk Yes seismic grade 3 acquisition Yes next-generation energy-saving housing Yes water purifier integrated faucet ・ System Kitchen Yes Tokyo Gas TES Shikiyuka system bus with a heating Yes ventilation drying heater of the dishwasher
〇東急東横線「都立大学」駅 徒歩9分〇耐震等級3取得〇次世代省エネルギー住宅〇浄水器一体型水栓・食洗機付のシステムキッチン〇東京ガスTES式床暖房〇換気乾燥暖房機付のシステムバス
|
Features pickup 特徴ピックアップ | | Measures to conserve energy / Corresponding to the flat-35S / Pre-ground survey / Vibration Control ・ Seismic isolation ・ Earthquake resistant / Seismic fit / 2 along the line more accessible / Super close / Facing south / Bathroom Dryer / Yang per good / Flat to the station / A quiet residential area / Around traffic fewer / Face-to-face kitchen / Wide balcony / Bathroom 1 tsubo or more / 2-story / South balcony / Double-glazing / loft / The window in the bathroom / Leafy residential area / Ventilation good / Dish washing dryer / Walk-in closet / All room 6 tatami mats or more / Water filter / City gas / All rooms are two-sided lighting / A large gap between the neighboring house / Flat terrain / Floor heating 省エネルギー対策 /フラット35Sに対応 /地盤調査済 /制震・免震・耐震 /耐震適合 /2沿線以上利用可 /スーパーが近い /南向き /浴室乾燥機 /陽当り良好 /駅まで平坦 /閑静な住宅地 /周辺交通量少なめ /対面式キッチン /ワイドバルコニー /浴室1坪以上 /2階建 /南面バルコニー /複層ガラス /ロフト /浴室に窓 /緑豊かな住宅地 /通風良好 /食器洗乾燥機 /ウォークインクロゼット /全居室6畳以上 /浄水器 /都市ガス /全室2面採光 /隣家との間隔が大きい /平坦地 /床暖房 |
Price 価格 | | 89,800,000 yen 8980万円 |
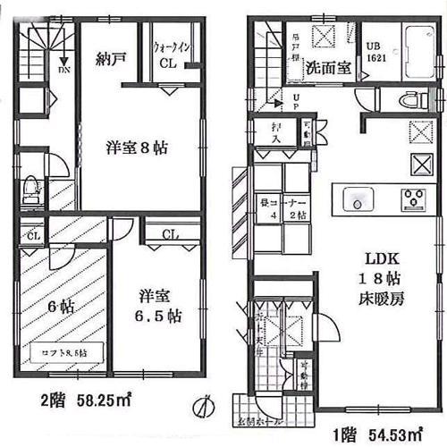
Floor plan 間取り | | 3LDK 3LDK |
Units sold 販売戸数 | | 1 units 1戸 |
Land area 土地面積 | | 116.63 sq m (35.28 tsubo) (measured) 116.63m2(35.28坪)(実測) |
Building area 建物面積 | | 112.78 sq m (34.11 tsubo) (Registration) 112.78m2(34.11坪)(登記) |
Driveway burden-road 私道負担・道路 | | Share interests 129 sq m × (1 / 8), East 6m width (contact the road width 3m) 共有持分129m2×(1/8)、東6m幅(接道幅3m) |
Completion date 完成時期(築年月) | | December 2013 2013年12月 |
Address 住所 | | Meguro-ku, Tokyo Kakinokizaka 2 東京都目黒区柿の木坂2 |
Traffic 交通 | | Tokyu Toyoko Line "Metropolitan University" walk 9 minutes Tokyu Toyoko Line "liberal arts college" walk 16 minutes Denentoshi Tokyu "Komazawa" walk 26 minutes 東急東横線「都立大学」歩9分 東急東横線「学芸大学」歩16分 東急田園都市線「駒沢大学」歩26分
|
Person in charge 担当者より | | Rep Takami Kurokawa 担当者黒川孝海 |
Contact お問い合せ先 | | TEL: 0800-603-3448 [Toll free] mobile phone ・ Also available from PHS Caller ID is not notified Please contact the "saw SUUMO (Sumo)" If it does not lead, If the real estate company TEL:0800-603-3448【通話料無料】携帯電話・PHSからもご利用いただけます 発信者番号は通知されません 「SUUMO(スーモ)を見た」と問い合わせください つながらない方、不動産会社の方は
|
Building coverage, floor area ratio 建ぺい率・容積率 | | Fifty percent ・ Hundred percent 50%・100% |
Time residents 入居時期 | | Immediate available 即入居可 |
Land of the right form 土地の権利形態 | | Ownership 所有権 |
Structure and method of construction 構造・工法 | | Wooden 2-story 木造2階建 |
Use district 用途地域 | | One low-rise 1種低層 |
Other limitations その他制限事項 | | Set-back: already, The first kind educational district セットバック:済、第1種文教地区 |
Overview and notices その他概要・特記事項 | | Contact: Takami Kurokawa, Facilities: Public Water Supply, This sewage, City gas, Building confirmation number: 12UDI3T Ken 01430, Parking: car space 担当者:黒川孝海、設備:公営水道、本下水、都市ガス、建築確認番号:12UDI3T建01430、駐車場:カースペース |
Company profile 会社概要 | | <Mediation> Governor of Tokyo (2) No. 082920 (Corporation) Tokyo Metropolitan Government Building Lots and Buildings Transaction Business Association (Corporation) metropolitan area real estate Fair Trade Council member am tick (Ltd.) Kichijoji headquarters sales department Yubinbango180-0002 Musashino-shi, Tokyo Kichijojihigashi cho 1-19-21 <仲介>東京都知事(2)第082920号(公社)東京都宅地建物取引業協会会員 (公社)首都圏不動産公正取引協議会加盟アムティック(株)吉祥寺本社営業部〒180-0002 東京都武蔵野市吉祥寺東町1-19-21 |