New Homes » Kanto » Tokyo » Mitaka City
 
| | Mitaka City, Tokyo 東京都三鷹市 |
| JR Chuo Line "Musashisakai" walk 20 minutes JR中央線「武蔵境」歩20分 |
| ~ ~ Space for relaxation ・ Building commitment ~ ~ Nordic House Jindaiji «easy-to-use floor plan ・ An atmosphere that does not taste only in stylish design »Nordic House ・ There is space ~ ~ くつろぎの空間・こだわりの建物 ~ ~ 北欧ハウス深大寺≪使いやすい間取り・おしゃれなデザイン≫北欧ハウスでしか味わえない雰囲気・空間がございます |
| A quiet residential area becomes a spacious grounds "of space relaxation" all seven buildings is equal to or greater than 33 square meters! And characteristics of the region, Your garden close to a are not local !! lawn and planting built condominiums and apartment ・ Holiday relaxation of space (wood deck) there is. "Floor plan a combined total of your favorite lifestyle choice!" Floor plan is, The same plan does not have one to one building 1 buildings devised. One by one point such as the location and living room of the position of the wood deck is a difference, You can choose better living favorite! "Hit sun is good! South road!" Nordic House Jindaiji the popular south road. Day ・ You can airy comfortably spend! 7 buildings clean and pure white cityscape lined of, It is very nice! Please refer to the Nordic House. 『くつろぎの空間』全7棟が33坪以上の広々した敷地になり閑静な住宅街!地域の特性とし、近くにマンションやアパートが建てられない地域!!芝生や植栽のあるお庭・休日にくつろぎのスペース(ウッドデッキ)がございます。『ライフスタイルに合わせてお好みの間取りが選べる!』間取りは、1棟1棟工夫をして同じプランは1つもありません。ウッドデッキの位置やリビングの位置など1つ1つポイントが違い、好みの暮らし方が選べます!『陽当たりがイイ!南道路!』北欧ハウス深大寺は人気の南道路。日当たり・風通しが良く快適に過ごすことができます!7棟の綺麗で真っ白な街並みが並んでいて、とってもステキです!北欧ハウスをご覧ください。 |
Features pickup 特徴ピックアップ | | Pre-ground survey / Year Available / Parking two Allowed / Immediate Available / 2 along the line more accessible / Energy-saving water heaters / Super close / It is close to the city / Facing south / System kitchen / Bathroom Dryer / Yang per good / All room storage / Siemens south road / A quiet residential area / LDK15 tatami mats or more / Corner lot / Shaping land / garden / Washbasin with shower / Face-to-face kitchen / Toilet 2 places / Bathroom 1 tsubo or more / 2-story / 2 or more sides balcony / South balcony / Warm water washing toilet seat / Nantei / Underfloor Storage / The window in the bathroom / TV monitor interphone / Leafy residential area / Ventilation good / All living room flooring / Wood deck / Dish washing dryer / Walk-in closet / Water filter / Living stairs / City gas / All rooms are two-sided lighting / A large gap between the neighboring house / Maintained sidewalk / Flat terrain 地盤調査済 /年内入居可 /駐車2台可 /即入居可 /2沿線以上利用可 /省エネ給湯器 /スーパーが近い /市街地が近い /南向き /システムキッチン /浴室乾燥機 /陽当り良好 /全居室収納 /南側道路面す /閑静な住宅地 /LDK15畳以上 /角地 /整形地 /庭 /シャワー付洗面台 /対面式キッチン /トイレ2ヶ所 /浴室1坪以上 /2階建 /2面以上バルコニー /南面バルコニー /温水洗浄便座 /南庭 /床下収納 /浴室に窓 /TVモニタ付インターホン /緑豊かな住宅地 /通風良好 /全居室フローリング /ウッドデッキ /食器洗乾燥機 /ウォークインクロゼット /浄水器 /リビング階段 /都市ガス /全室2面採光 /隣家との間隔が大きい /整備された歩道 /平坦地 | Property name 物件名 | | Nordic House - an easy-to-use Mato. Stylish interior - Mitaka City Jindaiji second term 北欧ハウス-使いやすい間取。お洒落な内装-三鷹市深大寺2期 | Price 価格 | | 55,800,000 yen 5580万円 | Floor plan 間取り | | 2LDK 2LDK | Units sold 販売戸数 | | 1 units 1戸 | Total units 総戸数 | | 4 units 4戸 | Land area 土地面積 | | 111.75 sq m (registration) 111.75m2(登記) | Building area 建物面積 | | 88.6 sq m 88.6m2 | Driveway burden-road 私道負担・道路 | | None なし | Completion date 完成時期(築年月) | | August 1, 2013 2013年8月1日 | Address 住所 | | Mitaka City, Tokyo Jindaiji 3-3912-26 東京都三鷹市深大寺3-3912-26 | Traffic 交通 | | JR Chuo Line "Musashisakai" walk 20 minutes JR Chuo Line "Kichijoji" bus 27 minutes the second housing step 2 minutes JR Chuo Line "Higashikoganei" walk 22 minutes JR中央線「武蔵境」歩20分 JR中央線「吉祥寺」バス27分第二住宅歩2分 JR中央線「東小金井」歩22分
| Related links 関連リンク | | [Related Sites of this company] 【この会社の関連サイト】 | Person in charge 担当者より | | Rep Sato Yuya 担当者佐藤 裕哉 | Contact お問い合せ先 | | TEL: 0800-808-9935 [Toll free] mobile phone ・ Also available from PHS Caller ID is not notified Please contact the "saw SUUMO (Sumo)" If it does not lead, If the real estate company TEL:0800-808-9935【通話料無料】携帯電話・PHSからもご利用いただけます 発信者番号は通知されません 「SUUMO(スーモ)を見た」と問い合わせください つながらない方、不動産会社の方は
| Sale schedule 販売スケジュール | | First-come-first-served basis application being accepted 先着順申込受付中 | Building coverage, floor area ratio 建ぺい率・容積率 | | Building coverage 40% volume of 80% 建ぺい率40% 容積率80% | Time residents 入居時期 | | Immediate available 即入居可 | Land of the right form 土地の権利形態 | | Ownership 所有権 | Structure and method of construction 構造・工法 | | Wooden 2-story (conventional method) 木造2階建(在来工法) | Construction 施工 | | KI Star Real Estate Co., Ltd. ケイアイスター不動産株式会社 | Use district 用途地域 | | One low-rise 1種低層 | Land category 地目 | | Residential land 宅地 | Other limitations その他制限事項 | | ※ The first kind altitude district ※第1種高度地区 | Overview and notices その他概要・特記事項 | | Contact: Sato Yuya, Building confirmation number: the H building certification No. KBI06749 (2012 December 19, 2009) 担当者:佐藤 裕哉、建築確認番号:第H確認建築KBI06749号(平成24年12月19日) | Company profile 会社概要 | | <Seller> Minister of Land, Infrastructure and Transport (4) The 005,508 No. KI Star Real Estate Co., Ltd. Ogikubo store Yubinbango167-0043 Suginami-ku, Tokyo Kamiogi 1-20-6 star field second floor -d <売主>国土交通大臣(4)第005508号ケイアイスター不動産(株)荻窪店〒167-0043 東京都杉並区上荻1-20-6 スターフィールド2階-d |
Otherその他  Housing that was to form a happy life essence of the Nordic is the "Nordic House". Cozy space to be healed functionality and heart that is suitable for the city of Tokyo. Why do not you feel the happiness of Northern Europe in Tokyo.
北欧のしあわせな暮らしのエッセンスを形にした住まいが「北欧ハウス」です。東京の都市に適した機能性と心癒される居心地のいい空間。北欧のしあわせを東京で感じてみませんか。
Rendering (appearance) ※ Perth is the only image. The house that was to form a happy life essence of the Nordic, It is "Nordic House". Timeless even after the time, Beautiful design.完成予想図(外観) ※パースはあくまでイメージです。北欧のしあわせな暮らしのエッセンスを形にした住まいが、『北欧ハウス』です。時を経ても飽きのこない、美しいデザイン。  Rendering (appearance) ※ Perth is the only image.
完成予想図(外観) ※パースはあくまでイメージです。
 Entrance mirror that can check before going out Ya, Indoor clothes that Hoseru the laundry even on rainy days, Such as a hook, which is multiplied by such as school bags, Big attraction devised to comfort the living as well as easy-to-use floor plan is "Nordic House"
お出かけ前のチェックができるエントランスミラーや、雨の日でも洗濯物を干せる室内物干し、ランドセルなどをかけられるフックなど、使いやすい間取りだけでなく暮らしを快適にする工夫が「北欧ハウス」の大きな魅力
Kitchenキッチン  It stuck to the functional beauty and ease of use, Kitchen storage all of all sliding. In face-to-face a living overlooking, During dishes also momentum is natural and conversation
機能美と使い勝手にこだわった、収納すべてがオールスライド式のキッチン。リビングが見渡せる対面式で、お料理中も自然と会話がはずみます
Livingリビング  Study counter is not put quite as well as you to put later. Everyday use of PC Ya, Audio class. Study desk for children Ya, This is useful item that can use to meet the TPO, etc. instead ironing board of wife.
後から置こうとしてもなかなか置けないのがスタディーカウンター。 普段使いのPCや、オーディオ類。お子様の勉強机や、奥様のアイロン台変わりなどTPOに合わせた使い方ができる便利アイテムです。
Bathroom浴室 ![Bathroom. In thermos bathtub, You can comfortably bathe even coming home dad slowed. Bathroom ventilation heating dryer [San'inuio] is, heating, Clothes dryer, Cool breeze, ventilation. Excellent stuff of one 4 roles!](/images/tokyo/mitaka/640a5a0005.jpg) In thermos bathtub, You can comfortably bathe even coming home dad slowed. Bathroom ventilation heating dryer [San'inuio] is, heating, Clothes dryer, Cool breeze, ventilation. Excellent stuff of one 4 roles!
魔法びん浴槽で、パパの帰宅が遅くなっても快適に入浴できます。浴室換気暖房乾燥機[三乾王]は、暖房、衣類乾燥、涼風、換気。1台4役のスグレもの!
 The entrance mirror that can check before going out, High thermal insulation Waidodoa!
お出かけ前のチェックができるエントランスミラーに、断熱性の高いワイドドア!
 It reduces the cloudy instantly without the use of electricity. Since suppress cloudy skies with surface coating, There is no waiting time compared to Heater, Forgetting to turn off and does not have. Accent Cross, Playful also plus.
電気を使わず瞬時にくもりを抑えます。表面コーティングでくもりをおさえるので、ヒーター式に比べ待ち時間がなく、消し忘れもありません。アクセントクロスで、遊び心もプラス。
Toiletトイレ  Easy to clean because there is no "border".
「フチ」がないからお手入れ簡単。
Local appearance photo現地外観写真  Local (12 May 2013) Shooting
現地(2013年12月)撮影
Floor plan間取り図  Easy-to-use floor plan. Stylish interior. "Nordic House" - Mitaka City Jindaiji Phase 2 Building 3
使いやすい間取り。おしゃれな内装。『北欧ハウス』-三鷹市深大寺2期3号棟
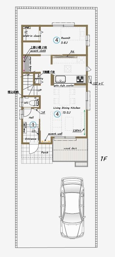
 1F floor plan In the storage capacity of large capacity rich walk-in closet, The rooms are always clean, spacious in.
1F間取図 大容量の収納力が豊富なウォークインクローゼットで、お部屋はいつもでスッキリ広々。
 2F floor plan
2F間取図
 Attic storage
小屋裏収納
The entire compartment Figure全体区画図  All building layout plan
全棟配置図
Construction ・ Construction method ・ specification構造・工法・仕様  It has adopted a high-best wood with a moisture generated in the wall easily discharged into the outdoor performance. Also, Plywood it has about twice the intensity compared to the (softwood 9mm)! So, Do not lose to something earthquakes and typhoons ☆ Please try to make sure by all means look at the building site in the eye! !
壁内に発生した湿気を屋外に排出しやすい性能を持つハイベストウッドを採用しています。また、合板(針葉樹9mm)に比べて約2倍の強度があるんです!だから、地震や台風なんかに負けません☆是非建築現場を目で見て確かめてみてください!!
Other Equipmentその他設備  Yes system kitchen, With plenty of storage, Be closed to the back adopts the sliding of peace of mind is the "Nordic House". Also, Because your water is also a water purifier integrated faucet, It is safe. And, Stove wife is anxious, Of course, cleaning the space to enjoy the dishes the whole family to the glass top stove that can be easy is the "Nordic House".
〇システムキッチンは、たっぷり収納で、奥までしまっても安心のスライド式を採用している『北欧ハウス』です。また、お水も浄水器一体型水栓なので、安全です。そして、奥様が気になるコンロは、もちろんお掃除が簡単にできるガラストップコンロにご家族みんなでお料理を楽しめる空間な『北欧ハウス』です。
 Okay Yes return is late husband ☆ At any time warm bath, Heals tired of the day. Also, I will also like wife, Because with bathroom heating dryer, To wash clothes lot of peace of mind even in the rain! further, Since you are using a dry joints Even walls and floors, Cleaning is a breeze
〇帰りが遅い旦那様でも大丈夫☆いつでも温かなお風呂で、1日の疲れを癒してくれます。また、奥様も好きになる、浴室暖房乾燥機付なので、雨でも安心の洗濯物干し場に!さらに、壁や床だって乾式目地を使用しているので、お掃除楽々です
 Do not succumb to the cold Yes! That small children can be neatly hand-washing gargle, It adopted a nozzle extending. Also, On the rear surface of the convenient three-sided mirror, Please come in plenty of seeing all means storage space.
〇風邪に負けるな!小さなお子様もきちんと手洗いうがいができるように、伸びるノズルを採用しました。また、便利な三面鏡の裏面には、収納スペースがたっぷりと是非見に来て下さい。
 Precious memories Even 〇 scratch! but, I'm sorry everyone. "Nordic House" is, Strong beauty has adopted the flooring to be long-lasting scratches. Also, Home also much youthful ☆ for, Use the eco-carat will protect from moisture and harmful substances. Eco-carat? , Come to the "Nordic House". Smile nice staff will answer anything ☆
〇傷だって大切な思い出!ですが、皆様すみません。『北欧ハウス』は、キズに強く美しさが長持ちするフローリングを採用しています。また、お家もずっと若々しく☆の為に、エコカラットを使用し湿気や有害物質から守ってくれます。エコカラット?って何?と思った方は、是非『北欧ハウス』へ。笑顔ステキなスタッフがなんでもお答え致します☆
 A wonderful home even in winter in 〇 summer ☆ Not pair glass only, Even us with insulation entrance door. further, Energy-saving effect, such as water-saving toilets and eco Jaws also a full is the "Nordic House". Also, It has adopted a high-crime prevention card type Pitatto key. Peace of mind ・ Please come to see us in a safe "Nordic House".
〇夏でも冬でもステキなお家に☆ペアガラスのみならず、玄関ドアも断熱してくれます。さらに、節水型トイレやエコジョーズ等の省エネ効果もいっぱいな『北欧ハウス』です。また、防犯性の高いカード式ピタットキーを採用しました。安心・安全な『北欧ハウス』に是非会いに来て下さい。
|